Как правильно составить проект дома самостоятельно: Проект дома своими руками — 98 фото процесса проектирования от А до Я
Проект дома своими руками — 98 фото процесса проектирования от А до Я
Строительство даже самого маленького домика начинается с проектирования. Подготовленный на бумаге проект позволит спланировать площадь постройки, количество комнат, окон и дверей, а также просчитать стоимость работ и количество необходимых материалов.
Собираясь строить дом, можно обратиться за помощью в специализированные компании заказать проект, выбрать подходящий из числа готовых или самостоятельно разработать план нового жилища.
Создавать проект дома своими руками рациональнее тогда, когда все строительные работы планируется выполнять без посторонней помощи.
Содержимое обзора:
Первый этап – планирование
Первая стадия разработки проекта предполагает общее планирование будущего дома, его размеров, предназначения, наличия гаража или других дополнительных построек, а также географических особенностей участка, наличия или отсутствия системы канализации и водоснабжения.
Второй этап – эскизы
На втором шаге все условия и желания учитываются и собираются в некую модель дома с уже определенным количеством этажей и комнат.
Эскизный проект имеет характер наброска и изображает будущее здания с разных сторон: фасада, сбоку, сзади и в разрезе (поперечном и продольном).
Здесь же приводится перечень используемых материалов, а также отмечаются особенности конструкции дома: вид кровли, толщина стен и перекрытий.
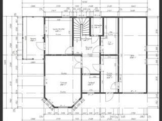
Перед тем, как приступить к собственному проекту дома, лучше внимательно изучить фото готовых планов, чтобы почерпнуть идеи и опыт.
Третий этап – рабочий план
Рабочий вариант проекта служит руководством для строительной бригады и предполагает полное описание всех предусмотренных работ по строительству дома: архитектурных, конструктивных, инженерно-технических и дизайнерских.
В проекте архитектурного типа намечаются и прорисовываются местоположение всех помещений, их площадь, наличие балконов или террас, размерность окон и дверей, уклон крыши, толщина стен.
Важно! Остекление и отделку балконов можно заказать по низким ценам на сайте viploggias.ru. «Современный Балкон» — это компания с многолетним опытом.
Конструктивный тип проекта предполагает детальное рассмотрение каждого элемента дома от фундамента, стен и перекрытий до дымохода, лестниц и стропил. Например, прикладывается полная расшифровка характеристик к окнам, где отмечается ширина профиля, тип накладки, количество слоев стеклопакета, наличие подоконника.
Инженерно-техническое проектирование направлено на составление подробного плана выполнения работ по налаживанию канализации, водоснабжения, вентиляции, отопления, электропроводки, системы заземления и охраны.
Дизайн-проект вносит заключительные коррективы в строительство дома. На данной стадии окончательно определяются с цветовой гаммой фасада, стен, кровли и внутренней отделки помещения.
Проект дома из бруса
Чаще всего в качестве основного материала для постройки выбирается экономичное, прочное и долговечное дерево.
Однако проект частного дома из бруса требует соблюдения некоторых условий:
- Если для строительства необходимы брусья более 6 м, то потребуется дополнительное утепление стыков бревен;
Стыки размещаются в шахматном порядке;- Число углов должно быть четным;
- Особое внимание необходимо уделить грамотному распределению нагрузки;
- Бревенчатые перегородки размещаются только над несущими стенами или на дополнительных столбах.
Проект кирпичного дома
Проект дома из кирпича должен обязательно включать в себя оценку финансовых возможностей, так как этот тип постройки отличается дороговизной и необходимостью создания крепкого и затратного фундамента.
Обратите внимание!
При строительстве кирпичных домов следует учитывать и другие особенности материала: использование глиняного кирпича на нижних этажах, двойная гидроизоляция в ванной комнате, армирование стены для большей прочности, строгое соблюдение горизонтальности кладки, выкладывание оконных и дверных проемов с четвертью.
Проект с террасой
Правильная и грамотная пристройка к дому террасы тоже требует отдельного проекта. При его составлении необходимо учесть ее устройство, расположение, степень открытости, форму и наличие ступенек.
Чаще всего терраса размещается около одной из стен дома или окольцовывает всю постройку, реже устанавливается отдельно от жилого здания или примыкает к бассейну.
Как и в проекте дома, в плане террасы обязательно указываются площадь, размеры, материалы, масса конструкции и тип фундамента.
Как выполнить проект дома своими руками?
Необходимо запастись бумагой, линейкой и карандашом и постараться детально изобразить свой будущий дом.
Ориентирами и помощниками станут размещенные в интернете готовые типовые проекты, дополнив и расширив которые можно получить идеальный план нового здания.
Обратите внимание!
Фото проекта дома своими руками
Обратите внимание!
выбор программы, пошаговая инструкция, советы и рекомендации
Перед тем как начать строительство дома, необходимо произвести четкие расчеты и составить карту будущего помещения. Для этого многие специалисты и профессиональные строители сначала создают план. Он помогает сформировать будущее помещение и грамотно распределить свободное место. Проектирование и планирование любого жилищного объекта — ответственный этап. Если этого не сделать, то при возведении стен или закладке фундамента начнут появляться первые проблемы.
Общие сведения
Строительство любого дома происходит поэтапно. Это позволяет сформировать правильно все работы и точно рассчитать затраты на необходимый материал. Те, кто начинают строительство любого типа недвижимости самостоятельно, также должны придерживаться четкого плана.
Это позволит не только быстро и правильно возводить нужные объекты на земле, но и точно рассчитывать траты на выполнение этих действий.
В Сети и на различных форумах часто можно встретить вопрос, как нарисовать план дома на компьютере самому. Это довольно сложная задача. Однако, разработчики постоянно улучшают приложения и вводят новые инструменты для проектирования, которые позволяют справляться с такой задачей быстро и без сложного уровня подготовки.
Стоит понимать, что любой проект — это не только проявление собственной фантазии. Важно рассчитывать высоту стен, этажность, правильно составлять крышу и мансарду. Необходимо перед началом столь интересного занятия ознакомиться с азами строительства и подобрать для себя несколько подходящих вариантов.
О проекте дома
Нарисовать план дома на компьютере можно даже через стандартный графический редактор. Однако точность внесенных параметров будет практически отсутствовать. Кроме того, важно рассматривать проект дома в нескольких плоскостях.
Для этого есть специальные инструменты в приложениях, которые позволяют создавать изображения будущей постройки в трехмерном и двухмерном пространстве.
Боковой вид дает возможность рассчитать высоту стен и посмотреть на будущий дом с каждой стороны. При этом будет понятно, как правильно располагать окна и все выходы в таком типе помещения. Вид сверху необходим для проектирования внутренних помещений. Особенно это полезно, если разрабатывается план дома, который будет состоять из нескольких этажей.
Тогда план на двухмерной плоскости будет описывать ряд помещений на каждом уровне в доме. Внутри такого проекта обычно изображаются дверные и оконные проемы. После этого основную площадь используют для заполнения необходимыми на этаже комнатами, для чего устанавливаются перегородки в виде стен.
Как сделать планировку дома самостоятельно на компьютере, если нет четкого представления, какие именно комнаты нужны?
Здесь важно опираться на следующие базовые показатели:
- Составление плана начинается с установки вертикальной оси по несущим стенам относительно земли (фундамента).

- Этажность дома для семьи до 8 человек не более 2.
- Высота внешних стен составляет 2,7 – 3 метра.
- Толщина пола — до 45 см.
- Толщина стен — до 0,75 метра (в зависимости от того, будет ли использоваться утеплитель).
- Дверной проем высотой 1,9 и шириной 1,5 метра.
- Стандартный оконный проем на 2 створки высотой 1,5 метра и шириной до 1,8 метра.
- Высота крыши до 2 – 2,5 метра.
Этих данных на начальном этапе будет достаточно для оставления проекта с помощью ПО.
Внутренняя планировка
Как нарисовать план дома на компьютере самому так, чтобы проставить точные разметки под окна и двери? Эта задача не из простых. Представленные выше параметры помогут определиться с внешними размерами здания. Однако нужно учитывать, что некоторые параметры могут быть изменены. Это в большой мере касается окон. По желанию их можно установить любой формы. Поэтому следует сначала определиться с их типом. Узнать точные размеры можно в компании, где они будут закупаться.
Внутренняя планировка формируется по следующему принципу:
- Определяются места для парадного и дополнительного входов.
- Отмечается место под санитарный узел. Площадь ванной комнаты обычно принимается до 5 кв. метров. Площадь туалета — до 3 кв. метров.
- Определяется место под размещение котельного и бойлерного оборудования. Для них нужна комната площадью до 10 кв. метров.
- Выделяется пространство под кухню (до 15 кв. метров). Часто в жилых домах кухня совмещается с гостиной, поэтому площадь может вырасти до 30- 50 кв. метров.
- Оставшееся место отводится под зал до 50 кв. метров и гостевую спальню до 15 кв. метров.
- Остальное пространство — это коридор, холл и лестница на второй этаж.
Стоит обратить внимание на то, что рассматривается пример проекта дома на 2 этажа общей площадью до 180 кв. метров.
Внутренняя планировка на втором этаже следующая:
- Разметка спален. Для семьи из 4 человек количество комнат может быть 2 или 3.
Родительская спальня площадью до 20 кв. метров. Детская — до 40 кв. метров либо каждая по 20 метров квадратных. - Обязательно предусматривается санузел (3-5 кв. метров) и ванная комната (5-7 кв. метров).
- Остальное место оборудуется под зону свободного назначения. При желании можно выделить гардеробную до 15 кв. метров или личный кабинет.
Стоит также подчеркнуть, что толщина внутренних стен обычно не превышает 30-35 см. Если необходимо сделать план одноэтажного дома, то его площадь сокращается до 160 кв. метров. Добавляется 2-3 жилые комнаты, которые соединяются при помощи коридора. Дверные проемы внутри по параметрам идентичны входным.
Самостоятельное составление плана
Решив самостоятельно составить план дома на компьютере, пользователь должен быть готов к тому, что это процесс достаточно долгий по времени. Это не связанно со сложностью проекта, а зависит от того, что для технических расчетов потребуется вводить каждые параметры вручную. Не все из представленного списка программ имеют возможность составления точной инженерной проектировки.
Общий план действий по работе в программе будет выглядеть следующим образом:
- Обозначается земельный участок, на котором будет стоять дом, и вводится его площадь.
- Устанавливаются вертикальные оси (перпендикулярно плоскости участка). Желательно иметь преставление на схеме о расположении сторон света, чтобы знать, где будет солнечная сторона. Это необходимо при планировании внутренних комнат.
- При создании проекта дома на 2 этажа общая площадь будет примерно до 180 кв. метров. Поэтому на земельном участке располагается основной короб из внешних стен в форме прямоугольника либо квадрата.
- Зная, что этажа будет 2, и руководствуясь представленными выше параметрами, задается высота дома по стенам и полу (2,7 + 0,45 + 2,7).
- Обозначатся центральный и дополнительный вход.
- На первом этаже выделяется место под котельную и бойлерную.
- Далее выделяются комнаты сантехнического назначения и кухня.
- Формируется остальная площадь исходя из пожеланий составителя.
Обязательно выделяется место для входа (не менее 5 кв. метров) и лестничный пролет на второй этаж до 3 кв. метров. - Дверные проемы подбираются, исходя из предпочтений и внутреннего дизайна помещения.
- На втором этаже формируется выход с лестничного пролета до 3 метров.
- Выделяются комнаты сантехнического назначения 3 и 5 кв. метров.
- Оставшаяся площадь отводится под спальные комнаты родителей и детей, а также бытовые помещения.
- Устанавливаются оконные проемы на двух этажах, согласно расположению каждой комнаты.
Крыша оформляется в последний момент. Ее наклон должен быть не менее 45 градусов, чтобы обеспечить плавный скат попадающих на нее объектов.
Как нарисовать план дома на компьютере самому и перенести его в натуральную величину? Этот вопрос также актуальный. Однако не стоит забывать, что составляемая схема нужна для оценки будущей недвижимости в качестве квадратуры и затрат на материалы. Без должного уровня знаний в строительной сфере возведение дома стоит доверить профессионалам.
Основные рекомендации
Решив самостоятельно начертить план дома на компьютере, важно придерживаться основных советов и рекомендаций, которыми всегда делятся проектировщики и инженеры на тематических форумах, посвященных строительству жилых помещений.
Основные из них выглядят следующим образом:
- При составлении плана объекта необходимо опираться на бюджет, чтобы избежать его дефицита на середине возведения дома.
- Количество этажей должно быть не более трех.
- В каждом помещении должны быть оконные проемы. Это повышает функциональность комнат.
- Количество комнат должно быть не более 4-5 на каждом этаже (это зависит от площади самого дома).
Кроме того, важно точно спроектировать крышу. Она должна быть функциональной в использовании.
Программы на ПК
Ответить на вопрос пользователей, как рисовать план дома на компьютере, поможет современное и многофункциональное программное обеспечение. Существует много различных цифровых проектов, которые помогут даже неопытному владельцу ПК быстро составить схему и план дома.
Каждое из приложений имеет свой уровень сложности и набор инструментов для создания схем вычислений объекта. Ниже будут представлены самые популярные программы для создания домов в двухмерной и трехмерной плоскостях.
Google Sketchup
Как начертить план дома самому на компьютере, не имея достаточного уровня подготовки и опыта, знает эта программа. Разработчики сделали ПО доступным и адаптировали работу с ним для простых пользователей. Программное обеспечение больше относится к дизайнерскому проекту. Здесь можно продумать внешний вид и тип оформления будущей жилой недвижимости.
Из основных плюсов программы можно выделить удобное меню и возможность создавать стены и другие объекты в доме из различных материалов. База приложения насчитывает более 1000 различных комбинаций. Можно сделать план не только внутренней части дома, но и наружной. Поддерживается загрузка в программу дополнительных элементов для различных модификаций строения.
Минусом программы является то, что в ней нет возможности произвести точные расчеты.
Начертить все блоки, стены и проемы типового назначения и получить точный расчет по площади через ПО не выйдет.
AutoCAD
Как начертить план дома самому на компьютере и рассчитать все необходимые инженерные параметры, можно посмотреть в программе AutoCAD. Это популярное во всем мире приложение, которым пользуются как любители, так и профессионалы. Связанно это с тем, что программное обеспечение имеет тысячи различных фильтров и инструментов. Есть разные версии, что зависит от того, какой тип проекта необходимо создать.
Еще одно преимущество заключается в том, что приложение может созданный в двухмерной плоскости объект сразу перенести на трехмерное пространство. Есть фильтры, позволяющие создавать постройки и различные типы помещений, в соответствии с установленными параметрами в ГОСТах.
Однако есть и один нюанс – все версии программы являются полностью платными. Еще одной важной особенность в программе является наличие возможности создавать объекты произвольной формы и при этом получать их точные параметры.
Это будет удобно, если необходимо создать проект нестандартного дома.
Floor Plan 3D
Если интересует вопрос, как составить план дома самому на компьютере в двухмерной плоскости, то это приложение позволит сделать его всего за пару часов. Есть также дополнение в программе, которое дает возможность при внесении необходимых параметров в план дома получить его изображение в трехмерном поле.
Из особенностей программного обеспечения выделяется:
- Возможность проектирования фасада здания.
- Оформление внутренних помещений.
- Полный дизайн интерьера.
- Возможность расчета объема материалов и их стоимость.
Дополнительно в базе данных программы есть много интерактивных советов по планированию. Стоит отметить, что данной программой пользуются многие строительные компании.
ArCon
Составить план дома на компьютере через программу можно в режиме конструктора. Весь проект собирается по блокам при помощи фиксации каждой детали.
Это вполне просто делается. При необходимости можно получить итоговый расчет по каждому из показателей.
Чаще всего приложение применяется при детальном планировании участка и стоящего на нем объекта. В базе ПО заложено более 3000 наименований строительных материалов и более 1000 готовых решений.
Меню для работы понятное и простое. Каждый элемент на рабочей панели имеет графическое отображение. При необходимости появляются подсказки и короткие уроки по проектированию и расчету необходимого объекта.
Envisioneer Express
Программа на профессиональном уровне позволяет оформить проект дома. Для этого есть несколько режимов работы в различных плоскостях. Действует полная система просмотра помещения и внешнего вида здания под разными углами.
Все объекты выглядят довольно реалистично. При установке стен и других основных конструкций дома нужно вводить точные параметры. Это позволяет сразу получить дом по необходимым расчетам. В базе есть различные варианты интерьерной отделки и предметы мебели.
При помощи строительных материалов можно рассчитать затраты на возведение здания и посмотреть, как оно будет выглядеть.
Вывод
Рассматривая вопрос, как нарисовать план дома на компьютере самому, стоит соблюдать основные требования, связанные с расчетами. Важно понимать, что каждый тип внутреннего помещения имеет уже заложенные размеры. Устанавливая стену или перегородку, проектируется новое помещение.
При планировании цокольного этажа, важно рассчитать точную нагрузку. Если дом будет в два либо три этажа, для укрепления конструкции необходимо устанавливать в подвальном помещении дополнительные колонны и балки. Остальные параметры могут быть вычислены автоматически при внешнем планировании объекта, исходя из заложенных показателей.
Как самостоятельно составить проект дома
Мечтая о собственном доме, многие люди уже имеют представление о том, как он будет выглядеть. Если это видение не совпадает с предлагаемыми готовыми проектами, то придется заказывать индивидуальный проект.
Сегодня можно выбрать готовые проекты домов из профилированного бруса. Это значительно ускорит строительство, и позволит быстрее переехать в собственный дом.
С чего начать проектирование
Индивидуальные проекты чаще всего заказывают тогда, когда участок имеет некоторые особенности, не позволяющие вести типовое строительство. В этом случае лучше всего обратиться к профессионалам, которые разработают проект, учитывающий все сложности участка и пожелания собственников.
Если вы хотите сэкономить на оплате архитекторам, то можно попробовать составить проект самостоятельно. Для этого необходимо воспользоваться специальной компьютерной программой или чертить проект на обычной бумаге.
Проектирование включает в себя несколько основных этапов:
- ознакомление с геодезическими сложностями участка, а также технической документацией, которая позволит подключиться к электросети и другим имеющимся коммуникациям;
- планировка строения начинается с подвального помещения, необходимо определиться с типом фундамента;
- проектирование дома подразумевает не только разметку комнат, также необходимо рассчитать количество материалов, определить места прохождения инженерных сетей;
- заключительным этапом является проектирование крыши.

Проект должен содержать много технических деталей, которые позволят строителям возвести надежный и красивый дом.
Проект дома из бруса
Если в качестве строительного материала для дома был выбран профилированный брус, то проект дома должен учитывать его особенности:
- длина бруса составляет 6 метров, если стена будет длиннее, то необходимо продумать как будут стыковаться бревна, а также дополнительное утепление места стыка;
- стыки бревен должны располагаться в шахматном порядке, это обеспечит правильную усадку дома и жесткость всей конструкции;
- в домах, возведенных из бревен, может быть только четное количество углов;
- важно составить проект таким образом, чтобы сократить количество отходов;
- необходимо правильно распределить нагрузку на несущие элементы.
Кроме того, в бревенчатых домах все перегородки второго этажа обустраиваются только над несущими стенами. Если по вашей задумке это невозможно, то для возведения межкомнатных стен следует выбрать более легкий материал, например, обрезную доску.
Смотрите также:
Как утеплить деревянный дом http://domkrat.org/kak-uteplit-derevyannyiy-dom/.
Интересное по теме: Что такое спецодежда
Советы в статье «Как заменить смеситель » здесь.
Ошибки при выборе проекта дома из бруса смотрим в видео:
Как правильно проектировать дом — Статья
Строительство практически любого сооружения начинается с создания плана. Данный документ включает зачастую расположение всех помещений и примерные их габариты.
Проектирование домов в Подольске производится с учетом современных технологий и потребностей человека. Это позволяет создавать очень красивые и качественные конструкции с длительным периодом эксплуатации.
Как написать проект в школе
Все начинается с выбора темы и понимания конечной цели.
Она должна быть понятной, четкой и ясной. Чтобы работа продвигалась быстро, ученику тема должна быть интересна. Иначе никакой пользы от проектной деятельности не будет. Не получится успешно защитить проект, который не интересен даже ее создателю.
Этапы работы:
- Подготовительный. Определяемся с темой и целью.
- Планирование. Выясняем, что нужно для проекта в школе, с какими источниками информации будем работать, как будем ее собирать и анализировать. Решаем, в каком виде будем представлять результаты работы.
- Исследование. Собираем и уточняем информацию, выполняем исследовательские задачи.
- Выводы. Анализируем информацию, формулируем выводы.
- Оформление. Учителя каждого конкретного образовательного учреждения выдвигают свои требования, как составлять проекты в школе, и выдают образцы оформления.
На этапе планирования решают, в каком виде представить информацию. Тогда же и определяются, какая нужна программа для создания школьного проекта на компьютере.
В школе для проектов в рамках учебного класса достаточно использовать графический редактор Word. В нем набирают текст, дополняют его картинками.
Проведение изысканий
На первоначальном этапе – перед разработкой проектной документации, необходимо провести геологоразведку на участке, который отведен под застройку. Она позволит тщательно изучить основные параметры ландшафта, грунта, подземных вод, учесть их особенности. Проводимые изыскания подразделяют на два основных типа: инженерно-геологический анализ и топографическая съемка.
Чтобы сэкономить, некоторые владельцы земли отказываются от проведения изыскательных работ. Такое решение может привести к неприятным последствиям и внушительным материальным затратам, которые понадобятся на реконструкцию или ремонт объекта. Специалисты выделяют две распространенных проблемы при отказе от геологической разведки:
- Неравномерная просадка строения, которая даёт предпосылки к началу разрушения объекта, далее приводит деформациям, возникновению трещин.

- Высокий показатель влажности внутри дома, сырость стен и подтопление подвальных помещений.
Избежать такие перспективы просто – следует понимать, что геологоразведка – это не «грабительская» прихоть. От неё выиграют все стороны: и создатели проекта – они будут опираться на реальные данные, и собственники – получат гарантии правильности проектных решений.
Без результатов топографической съёмки и геологоразведки, для надёжности в проект будут заложены излишние перестраховочные решения – их совокупная цена реализации обычно многократно превышает стоимость исследовательских работ. Причём – это «удачное» развитие событий. А в реальности велика вероятность множества критических ошибок.
Результаты геологоразведки позволяют проектировщикам произвести верные расчеты, сделать выводы и создать правильные проектные решения:
- выбрать конкретное место на земельном участке, где будет возведен дом;
- подобрать оптимальный вид фундамента;
- разработать проектную документацию с учетом особенностей рельефа и других факторов;
- создать комплекс мер по оптимизации гидрологических условий: система дренажа и другие виды;
- разработать план размещения других построек на участке.

Только на основании результатов изысканий проектировщики смогут создать качественный и полноценный проект.
Личные требования, предпочтения и другие факторы
При разработке документации учитываются не только итоги геологической разведки, но и пожелания будущего владельца дома – рекомендуемые условия эксплуатации и прочие, даже «житейские» моменты:
- количество членов семьи;
- основное предназначение объекта: постоянное или сезонное проживание;
- этажность;
- наличие дополнительных построек;
- требования к системе освещенности, ландшафтному дизайну и другие запросы.
Причём на готовом плане: в «бумажном» или «экранном» виде, удобнее и проще отразить индивидуальные пожелания будущего владельца объекта.
Как оформить проект
Оформление проекта в младших классах
Чем младше класс, тем меньше текста и больше картинок. Ведь ребенок не только сдает распечатанный проект, но и должен уметь рассказать, о чем в нем написано, ответить на вопросы.
Структура проекта:
- Титульный лист. В самом верху пишут полное название образовательного учреждения. В середине листа, по . Ниже жирным крупным шрифтом пишут название проекта. Под ним, в правом углу указывают, кто выполнил: имя и фамилию ученика, класс. Затем руководителя: фамилию, имя и отчество. Внизу посередине листа пишут город и год выполнения проекта.
- На втором листе размещают оглавление.
- Затем идет введение. Здесь прописывают цели и задачи.
- Основная часть. В этой части раскрывают тему, можно писать пошагово: «Свою работу я начал с…», «Затем я приступил к…», «В своей работе я столкнулся с такими проблемами…».
- Заключение.
Оформление проекта в старших классах
Чем старше ученик, тем более строгие требования выдвигают к содержанию, качеству, количеству информации, отображенной в проекте, и к его оформлению.
Как сделать проект дома на компьютере и не ошибиться (обзор программ)
В последнее время многие задаются вопросом «как сделать проект дома»? И это понятно.
Информация по строительству жилых домов доступна как никогда, строительные технологии известны, а строительные материалы можно купить в любом объеме хоть завтра. Но когда речь заходит о строительстве, становится ясно, что без чертежей дом не построить.
О чем нужно позаботиться перед разработкой проекта
Даже самому опытному строителю требуются планы с размерами, фасады, разрезы и т.д. Совокупность чертежей и называется «проект». Сделать проект дома в программе можно и самому. Для этого надо знать 3 вещи:
- Программу для создания проекта.
- Понимание того, какой дом проектировать.
- Основы архитектурного проектирования.
Это 3 успешных составляющих любого проекта. Без знания программы его не сделать. Без представления о том, каким будет дом — то же. А без основ архитектурного проектирования вы рискуете сделать проект, по которому ничего не построишь.
Почему знание компьютерной программы стоит перед пониманием того, каким будет дом? Потому что часто в программе и рождается идея загородного дома.
Поэтому насколько удобной и понятной будет программа, настолько лучшим получится результат работы в ней. Эта статья будет посвящена самым востребованным компьютерным программам для создания проектов загородных домов.
Программы для создания проекта
Сегодня вы, особо не напрягаясь, сможете найти несколько вариантов программ, в чем можно сделать проект. Условно я разделю их на 2 группы: онлайн и оффлайн. Онлайн — где можно создать проект прямо в браузере. Оффлайн — где нужно устанавливать программу на свой ПК.
Онлайн программы
Скажу сразу, что полноценных проектных программ в таком формате нет. Есть сайты, на которых можно сделать планировку дома, и даже посмотреть на нее в 3Д. Но все, что касается объемного моделирования дома, пока еще, не доступно. Я считаю, что в скором времени такие программы обязательно появятся. Тем более, что попытки создать подобное уже есть. Они примитивны, и позволяют создавать лишь однообразные «скворечники». Там нет моделирования формы крыши, окон, декоративных элементов фасадов и т.
д.
Если вам требуется лишь планировка вашего будущего дома, то помогут следующие онлайн-программы:
floorplanner — пионеры онлайн проектирования. Этот стартап появился раньше раскрученного Autodesk Homestyler и быстро завоевал популярность в интернете. Программа выгодно отличается удобным и красивым интерфейсом. Есть версия «демо» и «про». Про-версия позволяет добавлять описание, фото и видео в проект, делать многоэтажные планировки и, в целом, предназначена больше для риэлтеров, которые создают презентации домов. Также программу можно скачать и установить на свой ПК для оффлайн работы над проектом.
Autodesk Homestyler — самая известная программа из серии программ для онлайн-проектирования от Autodesk. Представляет собой не только программу для планировок, но и интернет-магазин отделочных материалов и мебели, а также возможность сделать 3Д-визуализацию полученного интерьера. Homestyler мне нравится больше, чем floorplanner своими возможностями.
Например, в ней можно вводить размеры с клавиатуры и настраивать толщину стен будущего дома.
Остальные программы, такие как Roomsketcher или Planner 5D не предлагают ничего нового, а просто копируют лидеров этого рынка.
Непрофессиональные оффлайн программы
Основное отличие от онлайн-версии заключается в установке таких программ на жесткий диск компьютера. Т.е. вам не нужен интернет, чтобы сделать проект своего дома. Такой вариант является немного устаревшим, потому что вы, например, не сможете проектировать на мобильном устройстве (смартфоне или планшете).
FloorPlan 3D — наверное, самое удобное программное обеспечение на любительском уровне. После открытия программы вы сразу попадаете в несложный и понятный интерфейс. Кстати, на текущий момент, графика немного устарела. Но это не портит общего впечатления от этого софта. Рабочая среда полностью интерактивна. Присутсвуют 2Д и 3Д виды. Подойдет неподготовленным пользователям, которые проектируют свой дом и участок.
В программе можно посчитать площади помещений, сконструировать лестницу, наложить текстуры и подобрать мебель из немаленькой библиотеки. Есть неплохие архитектурные возможности в плане проектирования ломаных крыш и выступающих элементов. Так же в пакете присутствуют примеры проектов загородных домов и неплохой блок с 3Д-визуализацией.
Home Plan Pro — программа более высокого инженерного уровня. Ориентация на инженерную графику сразу бросится вам в глаза. Поэтому в программе можно создавать планы загородных домов для строительства на качественном уровне. Этому способствуют различные метрические системы, сохранение в несколько востребованных форматов, а также широкая библиотека элементов для создания проектов.
Envisioneer Express — программа, больше рассчитанная на создание дизайн-проектов интерьера. Однако, не исключает возможности моделировать и архитектурные объекты. Несложная в освоении не требует высоких системных требований вашего ПК.
Авторы этого программного обеспечения позиционируют его как простейший BIM-инструмент. Кроме того, программа обладает неплохой 3Д-визуализацией 3D Home Architect — популярная долгое время программа, когда -то задала тон любительскому проектированию интерьеров и частных жилых домов. Помимо всего того, что есть в предыдущих программах, отмечу следующие моменты. Встроенная система распознания и предупреждения об ошибках в проектировании. Мощное ядро CAD, позволяющее быстро чертить планы с мебелью и переводить их в 3Д. При это корректировка возможна, как из 2Д, так и из 3Д режимов. Возможность работы с элементами произвольной формы. Автоматизированное создание крыши загородного дома. Автоматизированное создание планов и разрезов с 3Д-модели. Не могу ни отметить сильную сторону программы для создания ландшафта вокруг загородного дома.Наверное, это одна из самых успешных программ любительского уровня, приближающая результат работы каждого к уровню профессиональных программ.

ArCon (Аркон) — практически полноценная программа для CAD-проектирования. Мы приближаемся к блоку профессиональных программ и заканчиваем обзор этого блока сильной программой для проектирования. Программное обеспечение можно скачать с официального сайта бесплатно в виде учебной версии. На текущий момент выпущено более 15 версий. История программы насчитывает длительный срок доработки и совершенствования.
Мощный пакет программы включает в себя все от создания планировок и 3Д-моделирования до обсчета ведомостей расхода материалов. Ассистенты местности, помещений и крыш помогут быстро справиться со сложными задачами. Возможность проектирования многоэтажных построек значительно расширяет круг проектируемых объектов.
Детали проекта, такие как мансардные окна, перила, балконы, балки, колонны, окна и двери — все они обладают индивидуальными параметрами, которые можно настраивать. Кроме того, программа позволяет создавать видео на основе проекта, а также работать с форматами других проектных программ.
В общем, это доступная мощная программа для создания эскизных проектов загородных домов с элементами рабочего проекта.
SketchUP — эта программа стоит особняком. За последнее время она стала настолько удобной, что завоевала любовь многочисленных поклонников по всему миру. Удобное скачивание с официального сайта и установка, интеграция с многочисленными сервисами Google, простой интерфейс и миллионы библиотечных элементов, доступных на официальном сайте — все это привлекло внимание даже профессиональных проектировщиков. Ну а наличие многочисленных видео уроков в интернете способствуют чуть ли не моментальному изучению этой программы.
Существует версия SketchUP Pro для профессиональной работы над проектами. Так, известный плагин VRay, разработанный болгарской Chaos Group специально для SketchUP Pro, потряс аудиторию своим высоким качеством. Теперь, даже из простой 3Д-модели мдожно было сделать фотореалистичную картинку с тенями и отраженным светом. А благодаря широкой библиотеке элементов добавить в нее живописное и реалистичное окружение.
Скажу честно, в нашем бюро эта программа используется для создания эскизных проектов. Это сделано по ряду причин, но главные из них — скорость проектирования и импорт/экспорт во все необходимые рабочие форматы. Я бы рекомендовал именно эту программу для самостоятельного проектирования своего дома. По этой же причине в учебном центре Проектируй.рф ей посвящен мини-курс Как сделать проект дома, а также главный учебный курс Пошаговое обучение проектированию загородных домов.
Посмотрите, как создается модель загородного дома,
И как выглядит результат после работы с плагином VRay.
Профессиональные оффлайн программы
Graphisoft ArchiCAD — это «наше все» или самый подходящий инструмент для создания полного проекта под строительство загородного дома с ноля. Он долгое время был лидером рынка BIM-проектирования, пока Autodesk не раскрутила программу Revit, которая значительно потеснила ArchiCAD. BIM расшифровывается как «Building Information Model» (Информационная модель здания).
Говоря проще, это цифровая 3Д-модель здания, с которой в автоматическом режиме «снимаются» планы, разрезы и фасады. Такой подход избавляет от необходимости создания каждого чертежа отдельно, а также ускоряет процесс внесения корректировок в проект.
В отличие от всех предыдущих программ ArchiCAD является проектным комплексом, в котором можно делать абсолютно все части проекта. Нет необходимости в использования дополнительных программ для визуализации, обсчета смет или оформления проекта. Это мощный профессиональный инструмент. В отличие, например, от Autocad он прост в освоении и сопровождается большим количеством обучающих уроков в открытом доступе. Но для полноценной работы в этой программе необходимо пройти специальный курс, а для создания проекта загородного дома — пройти обучение под руководством опытного наставника. Все это есть в основном учебном курсе на нашем сайте Пошаговое обучение проектированию загородных домов. В процессе обучения каждый из учеников получает примеры проектов в этой программе и альбомы технических решений с необходимыми узлами «на все случаи жизни».
Ежегодно наше проектное бюро выпускает более 20 полных проектов для строительства загородных домов. Все они делаются в программе ArchiCAD. Часть из них выложена на этой странице.
Посмотрите на возможности этой программы (нажмите для увеличения).
Также посмотрите работы наших учеников в Graphisoft ArchiCAD по этой ссылке.
Autodesk Revit — та самая программа, потеснившая ArchiCAD. Ее главным преимуществом является хорошая интеграция с другими продуктами компании Autodesk, успевшим завоевать многие стороны проектной деятельности. На сегодняшний день это самая перспективная программа для BIM-проектирования, позволяющая полностью заменить громоздкий инструментарий проектировщика. Ведь в одной информационной модели можно объединить архитектуру, конструкции и все инженерные сети.
Хорошая инженерная графика, автоматизация большинства процессов, настраиваемая стандартизация проектов, автоматический обсчет всех требуемых проектом показателей и т.
д. — такие мощные возможности, скорее всего, любителю не потребуются. Но, если есть желание углубиться в тему проектирования и стать в ней профессионалом, то изучение Revit станет хорошим заделом на будущее.
Кроме того, многие западные проектные бюро уже давно перешли на эту программу. Поэтому в ней собраны самые последние наработки из сфер энергосбережения и западных инженерных стандартов. Ее ценят и уважают в профессиональном сообществе. Ходят слухи, что и в России скоро введут BIM-стандарт разработки и согласования проектной документации. Если это произойдет, то, скорее всего, за основу будет взят Autodesk Revit.
В учебном центре Проектируй.рф находится в разработке курс «Autodesk Revit для создания проектов загородных домов». Уже скоро вы сможете не только изучить эту мощную программу, но и сразу же сделать в ней проект загородного дома.
Этапы проектирования загородного дома
После завершения подготовительных работ наступает следующий важный этап – проектирование.
Рекомендуется отказаться от идеи самостоятельной разработки, в крайнем случае – под постоянным контролем специалиста.
Недочеты и ошибки в проекте могут привести к большим проблемам: разрушение здания, непригодности проживания в доме, деформация объекта и другим неприятностям, что сопровождается большими финансовыми затратами. Такая работа требует профильных знаний и опыта. В идеальном варианте следует обратиться к опытным проектировщикам: для адаптации под конкретные требования типового или заказа индивидуального проекта.
Разработка решения специалистами проходит в несколько этапов:
- Эскизный проект.
- Создание рабочей документации.
- Разработка планов по ландшафту и вспомогательным постройкам по желанию заказчика.
- Подготовка разрешительных документов при необходимости.
Эскизный проект включает схемы и планы организации земельного участка, каждого этажа дома, разрезов объекта, фасада, основных конструктивных элементов, а также визуализацию будущего жилого строения.
Он демонстрирует основные решения, которые дают конкретное представление об устройстве и внешнем виде здания. Эскизный проект – техническое задание для создания рабочей документации. Он создается на основе требований заказчика и результатов геологоразведки.
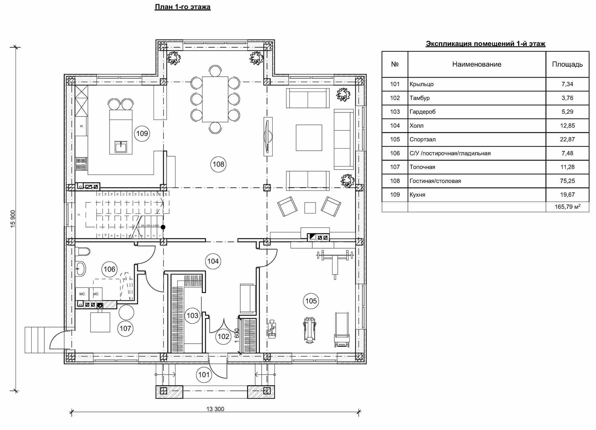
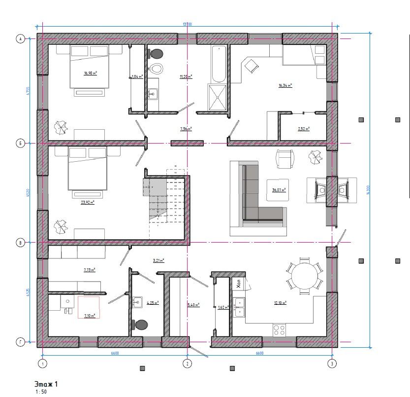
Создание рабочей документации – заключительный этап проектирования. На основании её, осуществляются строительные и монтажные работы. Рабочая документация включает три раздела:
- Архитектурный (АР). В него входят планы фундамента, этажей, балок, проемов, крыши, стропильной системы, разрезы дома, кровли, стен и сводная записка.
- Конструктивный. (КР). Он включает в себя сводную информацию по проектному решению, схемы фундамента и перекрытий, развернутый план и схемы расположения лестниц, стропильной конструкции.
- Инженерные. Разделы содержат расчеты и схемы инженерных коммуникаций: водоснабжения, канализации, вентиляции и других сетей.
По желанию заказчика специалисты разработают подробные планы ландшафта и дополнительных построек на участке: гаража, ангара и других строений.
Это поможет организовать небольшой архитектурный комплекс, который будет отличаться гармоничным и привлекательным внешним видом. Ландшафтный дизайн также играет немаловажную роль, поэтому его разработку тоже рекомендуется доверить специалистам.
Подготовка разрешительных документов на проведение строительства нужна, если земельный участок предназначен для садоводства и ведения дачного хозяйства согласно ст. 51 Градостроительного кодекса России. В этой ситуации следует подготовить следующий пакет:
- заявление;
- документация, которая подтверждает право собственности на участок;
- градостроительный план;
- схема планировочной организации земли с обозначением месторасположения дома.
Если назначение земли – индивидуальное строительство жилья, то разрешительные документы не требуются.
Читать также: «Правила проектирования домов».
Утверждение проекта для начала строительства
Необходимость корректировки проекта. Даже в том случае, если вы сами смогли изобразить на бумаге дом своей мечты, необходимо будет перед началом строительства дома все-таки проконсультироваться со специалистами – мнение грамотного прораба или же архитектора лишним не будет.
Как минимум, необходимо будет согласовать следующие моменты:
Проведение собственной канализации;
Необходимо понимать, что все указанные выше вопросы не являются художественной или архитектурной частью проекта. Это все — самые рутинные вопросы, грамотный подход к решению которых обеспечивается только профессионалами своего дела. В крайнем случае, любой недосмотр при самостоятельном составлении проекта дома, который допустил человек, не имеющий профильного образования, может быть подкорректирован грамотным прорабом, который практическую сторону любой идеи понимает намного лучше. Хотя даже в том случае, если проект составляется профессиональными архитекторами, то также не исключаются чисто практические недочеты.
Архитектурно-строительные решения (АС)
Проектная документация предоставляется на бумажном носителе формата А3, в одном экземпляре, заверенная синей печатью. В состав проекта входят два раздела: АР (архитектурные решения) и КР (конструктивные решения).
Рабочие чертежи марки АР (Архитектурные решения)
Этот раздел состоит из нескольких частей:
- общие данные об объекте и пояснительная записка;
- генплан;
- разбивочный план осей;
- кладочные и маркировочные планы;
- каждый из фасадов дома с указанием высотных отметок;
- план кровли;
- основные разрезы по дому;
- экспликация полов, особенности заполнения проемов окон и дверей;
- вентиляционные каналы и дымоходы.

В архитектурных чертежах указано расположение всех окон, дверей, шахт вентиляции, каминов с дымоходами, высота этажей, толщина стен; показаны основные конструктивные узлы.
Проект дома, прежде всего, поможет Вам представить себе, как будет выглядеть ваш будущий дом на ландшафте. А эскизы этажей помогут вам понять, что будет представлять Ваш будущий дом изнутри.
Все наши проекты проходят полный цикл проектирования и готовы для строительства частного дома. Чертежи высокого уровня и предназначены для работы с профессиональными строителями.
В составе наших проектов мы не предоставляем сметы. Мы делаем это сознательно, так как цены меняются, в зависимости от специфики местного рынка материалов и услуг, транспортной доступности и участка застройки. Даже климатические условия могут влиять на цены. Поэтому точных цен мы не сможем указать. Но Вы можете рассчитать все цены сами, потому как проект дает полное представление об объемах и количестве материала для строительства.
Компания ТопДом предоставляет проекты домов, которые включают в себя полный комплект чертежей, состоящих из трех разделов:
AutoCAD
Как начертить план дома самому на компьютере и рассчитать все необходимые инженерные параметры, можно посмотреть в программе AutoCAD. Это популярное во всем мире приложение, которым пользуются как любители, так и профессионалы. Связанно это с тем, что программное обеспечение имеет тысячи различных фильтров и инструментов. Есть разные версии, что зависит от того, какой тип проекта необходимо создать.
Еще одно преимущество заключается в том, что приложение может созданный в двухмерной плоскости объект сразу перенести на трехмерное пространство. Есть фильтры, позволяющие создавать постройки и различные типы помещений, в соответствии с установленными параметрами в ГОСТах.
Однако есть и один нюанс – все версии программы являются полностью платными. Еще одной важной особенность в программе является наличие возможности создавать объекты произвольной формы и при этом получать их точные параметры.
Это будет удобно, если необходимо создать проект нестандартного дома.
Как составить план дома самостоятельно
- При составлении проекта дома, в первую очередь, правильно будет узнать о свойствах грунтов на территории будущего жилья, а также высоту, на которой залегают грунтовые воды. Особенно важна эта информация при планировке фундамента с подвалом. Такие работы лучше проводить к концу осени или началу весны, когда грунтовые воды подняты максимально.
- Когда инженерно-геологические исследования закончены и получено заключение, нарисуйте план для строительства подвала. Если грунтовые воды на слишком высоком уровне, а площадь позволяет, то подвал рекомендуется заменить дополнительным помещением в доме.
- Далее выберите материал, который будет использоваться в строении. После этого принимайтесь за проект дома и работайте над чертежами. В целях экономии выбирайте простые проекты. Любое усложнение модели строения повлияет на стоимость готового проекта. Это же касается и крыши: количество стыков, изгибов повлияет на её стоимость.
Крыши сложной формы менее надёжны, ведь через некоторое время в таких местах может образоваться течь. - Чтобы энергосбережение было более эффективным, для нежилых помещений окна располагайте с северной стороны, а для жилых комнат – с южной. Учитывайте и то, что на энергозатратность постройки повлияют материалы теплоизоляции, расположение и размеры окон. Также выберите толщину стен дома.
- В план первого этажа желательно внести тамбур, гостиную, кухню (столовую), санитарные комнаты, котельную. Второй этаж обычно предназначен для спальных комнат, санузла, а если позволяет площадь строения, то для ещё одной гостиной.
- Общие и гостиные комнаты по площади не должны быть менее 16 кв.м., кухни и другие жилые помещения – от 9 кв. м. В зависимости от количества и площади помещений будут зависеть общие габариты дома.
Важно, чтобы расположенные объекты не препятствовали свободному перемещению по территории дома.
Проектирование мансарды и крыши
Решили создать проект дома сами – не нужно будет пытаться нарисовать какую-то слишком «заумную» крышу с большим количеством изгибов.
Запомните – крыша является одним из самых важных структурных компонентов в доме, и пытаться создавать дополнительную эстетичность, поставив под вопрос надежность, уж точно не стоит. Это все приведет к тому, что местах изгибов возникнут течи. Рисуете проект – будьте добры, исповедуйте принципы минимализма в архитектуре.
Для проектирования подобной крыши без архитектора не обойтись
Зависимость проектировки дома с изоляцией
Есть одно очень важное правило – все вспомогательные помещения необходимо строить с северной стороны. Несмотря на то, что теплоизоляция, выполняемая при помощи строительных материалов, имеет первостепенное значение, взаимное расположение комнат также нельзя выпускать из виду – хотя бы из-за экономии расхода энергии на обогрев дома.
Методы проектирования
Читаемость и визуальная иерархия
Выбор шрифтов для заголовков и цвет фона должен проходить очень строгие исследования и тестирование, поскольку аспект читаемости в заголовке играет жизненно важную роль.
Пользователь должен иметь возможность сканировать и воспринимать эту базовую информацию как можно быстрее без каких-либо дополнительных усилий. В противном случае вы рискуете предоставить недружественный интерфейс.
Гамбургер-меню
Гамбургер-меню – еще одно довольно популярное решение для дизайна функциональности хедера.
Эта кнопка обычно помещается в заголовок, и в настоящее время это типичный элемент взаимодействия. Большинство пользователей, которые регулярно посещают и используют веб-сайты, знают, что эта кнопка скрывает основные категории данных, поэтому этот трюк не требует дополнительных объяснений и подсказок.
Гамбургер-меню освобождает пространство, делая интерфейс более минималистичным и свободным, а также сохраняет место для других важных элементов макета. Эта технология проектирования также дает дополнительные преимущества для адаптивного дизайна, скрывающего навигационные элементы и делая интерфейс гармоничным на разных устройствах.
Представленная концепция веб-дизайна показывает версию меню гамбургеров. Поскольку меню веб-сайта содержит много позиций, дизайнер использует эту технику, помещая кнопку гамбургера в область начального взаимодействия — верхний левый угол. Это позволяет создать заголовок, поддерживающий общий минималистичный стиль веб-сайта.
Фиксированный хедер
Представляет собой еще одну тенденцию, способную повысить удобство использования. Фактически, он позволяет предоставлять пользователям зону навигации, доступную в любой точке взаимодействия, что может быть полезно с точки зрения содержания страниц с длинным скроллингом.
Двойное меню
Двойное меню в хедере помогает создать два «уровня» навигации.
Как вы можете видеть, на веб-сайте также используется фикированный заголовок, который состоит из двух уровней навигации.
В верхнем меню отображаются ссылки на социальные сети, логотип, поиск, корзина покупок и кнопка гамбургера, скрывающая расширенное меню.
Вторая линия навигации обеспечивает мгновенное подключение к основным областям взаимодействия: каталог продуктов, местоположение точек продаж, новости и специальные предложения, информацию об услуге и разделе контактов.
Визуальная иерархия делает все элементы понятными и легко читаемыми, обеспечивая прочную основу для положительного пользовательского опыта.
Примеры использования крупных, баннерных шрифтов в веб-дизайне
Cамостоятельное проектирование
Программы для самостоятельного проектирования домов
Популярная поговорка утверждает, что дом построить на самом деле легко: нарисуем, мол, и будем жить. И это правильно: прежде, чем воплощать столь масштабную мечту, её нужно для начала визуализировать, изобразив эскизный проект коттеджа на бумаге. А поскольку на дворе всё-таки XXI век, и у каждого мечтателя под рукой найдётся компьютер, то удобнее и проще заниматься проектированием в электронном виде. Для этого сегодня существует немало удобных и простых программ, которыми архитектор-любитель может воспользоваться бесплатно.
Как и большинство продуктов Google, эта программа проста в освоении, а основные функции интерфейса можно освоить буквально за один день. Существует профессиональная платная версия SketckUp, которая предоставляет разработчику проектов широкий инструментарий. Для тех же, кто собирается всего лишь нарисовать эскизный проект дома, цена равна нулю, так как упрощённая версия распространяется бесплатно. В качестве бонуса стоит упомянуть встроенный русификатор, изрядно упрощающий жизнь отечественным пользователям.
Используйте все функции Google SketckUp:- рисуйте эскизный план, пользуясь знакомым каждому набором инструментов, «перекочевавшим» из популярных графических редакторов;
- создавайте образец эскизного проекта дома в 3D формате, вносите в него исправления и дополнения, какие считаете нужными;
- сохраняйте созданные варианты проекта в распространённых форматах изображений PNG, JPG и других;
- обучайтесь работе с программой с помощью доступных пособий и справочных материалов;
- составляйте статистику расхода стройматериалов, необходимых для реализации проекта.

Последний пункт списка выглядит наиболее привлекательно для начинающего застройщика. Программа поможет составить смету по материалам, в которую останется подставить текущие цены и рассчитать итоговую сумму.
При всех своих достоинствах Google SketckUp нельзя назвать полноценным инструментом для проектирования. Она предназначена, в первую очередь, для создания 3D моделей зданий, интерьеров и ландшафтов. Для изготовления строительных чертежей понадобятся другие программные продукты.
SweetHome: для профи и для дилетантовКаждый, кому довелось работать с этой программой, отмечает её простоту и функциональность. Удобный инструмент для домашнего проектирования позволяет даже человеку, не отягчённому специальными знаниями, изобразить эскизный план дома на плоскости либо в объёмном формате. Расширенная версия рассчитана на профессиональных проектировщиков и дизайнеров. Если вы уже обладаете минимальным багажом навыков, то можно обойтись без видеоуроков по использованию SweetHome.
Впрочем, обучение не займёт много времени, одного-двух дней для освоения основных инструментов будет вполне достаточно.
В пользу выбора SweetHome говорят следующие аргументы:
- русскоязычные обучающие материалы в свободном доступе;
- функция одновременной работы с планом и трёхмерной моделью проектируемого объекта;
- настройки, позволяющие регулировать размеры помещения, цвета и текстуры поверхностей, а также другие параметры;
- обширные библиотеки предметов и элементов для интерьерного дизайна, включающие мебель, бытовую технику, двери, аксессуары;
- режимы просмотра в 3D формате, в том числе осмотр помещений сверху и из любой выбранной точки, виртуальная прогулка по дому и т.д.
Результаты своих трудов можно экспортировать в один из наиболее распространённых графических форматов и в таком виде предъявить менеджеру строительной компании, прорабу, дизайнеру, чтобы исключить недопонимание. Ещё одна интересная функция: после того, как 3D эскиз проекта дома будет готов, вы сможете сделать видеоролик с осмотром комнат и даже выставить его для всеобщего одобрения в соцсетях.
Если вы являетесь сторонником серьёзного и вдумчивого подхода к делу, то имеет смысл освоить программу Дом-3D. Обилие функций, заложенных разработчиками, потребует определённых усилий по их освоению, но потраченное время окупится сторицей. С помощью этой программы вы:
- разработаете подробный эскизный проект частного дома или перепланировки квартиры;
- создадите интерьер, в котором найдётся место любимому креслу-качалке, «навороченному» мультимедийному центру и другим вещам, создающим ваш персональный уют;
- спроектируете недостающую мебель, которая после изготовления идеально встанет на предназначенные места.
Архитектурный модуль программы предусматривает подробную разработку отдельных элементов здания, в том числе стен, перекрытий, конструкций крыши и т.д. Одним словом, он обеспечивает практически все этапы проектирования дома. Другие функции нужны для выбора оттенков и фактур отделки, расчёта деталей корпусной мебели и даже для выбора раскладки керамической плитки.
Разумеется, в перечень функций входит 3D визуализация и виртуальное путешествие по комнатам. Кроме того, разработчики предусмотрели интересную опцию – разработкe шаблонов цветовых схем для смены цветовых решений интерьера. Как видим, Дом-3D предоставляет весьма обширный функционал, которым стоит овладеть для создания собственных интересных проектов.
Ещё одна программа, которая делает эскизное проектирование домов доступным для широкой публики — FloorPlan 3D. Она ориентирована, в первую очередь, на разработку внутреннего и наружного дизайна, но и возможности планирования тоже неплохи. Продукт привлекает яркостью и реалистичностью 3D-визуализации, позволяющей оценить взаимное расположение помещений или предметов обстановки и найти для них оптимальное цветовое решение.
Функциональные возможности программы:
- Изготовление точного плана. Эскизный проект жилого дома или отдельной комнаты будет отрисован с точностью до сантиметра.

- Этажность. Программа не замыкает вас в единственной плоскости: дом можно сделать двухэтажным, оборудовать романтичной мансардой или просторным подвалом для хозяйственных нужд.
- Реалистичные размеры. Создавая интерьер будущего жилища, можно использовать образцы мебели, бытовой техники и утвари из соответствующих библиотек. Если размеры предметов не совпадают с реальными, используйте функцию корректировки габаритов. Благодаря этому при переносе результатов «в натуру» не придётся ломать голову, как втиснуть слишком длинный диван в предназначенный для него проём.
- Объёмная визуализация. Эскизный проект дома (пример на картинке) сначала создаётся как плоский чертёж – так удобнее. Затем вы расставляете мебель и переходите в режим 3D визуализации, чтобы оценить обстановку и исправить огрехи. Объёмное изображение позволяет не только смотреть на комнаты сверху, но и бродить по ним, рассматривая интерьер с разных ракурсов.
- Красивые текстуры.
К программе, помимо прочих функций, прилагается обширная библиотека текстур, позволяющая визуализировать всевозможные варианты отделки. Например, на пол можно постелить ламинат, уложить ковровое покрытие или мраморную плитку, между этажами установить деревянную или бетонную лестницу и т.д. - Ландшафт. Функционал программы позволяет заранее подумать о том, как будет выглядеть участок после окончания строительства. Вы сможете заранее распланировать будущий сад, разметить, как пролягут дорожки, где будет клумба с кустами роз и где раскинутся плантации помидоров.
- Фото на память. Во время виртуальных прогулок по дому можно снимать видео и делать эффектные фото с наиболее впечатляющих ракурсов. Картинки и ролики легко экспортировать в любой из популярных форматов, чтобы сохранить на память или выставить на своей страничке в соцсети.
FloorPlan 3D – удобная программа для тех, кто собирается строить дом или делать ремонт в городской квартире.
В ней предусмотрена функция, позволяющая быстро рассчитать приблизительную смету. Программа формирует список строительных и отделочных материалов после того, как вы закончите проектирование загородного дома. Цена каждой позиции легко уточняется в ближайшем строймаркете, после чего подсчёт затрат не составляет никакого труда.
Остаётся добавить, что для профессионального дизайна предусмотрена расширенная версия с богатым набором сложных функций. Лайт-вариант существенно проще в освоении, к тому же предлагается на общедоступной основе.
Профессиональные программы для архитектурного проектирования
Разница между простыми инструментами любительского архитектурного дизайна и специальным программным обеспечением достаточно велика. Наиболее заметный критерий, разграничивающий домашнее и профессиональное проектирование дома – цена программ: чем она выше, тем более сложен и функционален продукт. Как правило, суммы в ценниках фигурируют немаленькие, поэтому для дилетантов покупка такого ПО не имеет большого смысла.
Но всё же иметь общее представление об этих программах не помешает.
Один из наиболее популярных программных продуктов в профессиональной среде содержит множество функций, необходимых каждому серьёзному разработчику и позволяющих готовить полноценные строительные чертежи, делать расчёты, формировать спецификации. Разумеется, нарисовать эскизный проект дома с помощью Ревита не составит никакого труда. Но прежде, чем приступить к проектированию, придётся приложить немало усилий для освоения сложного интерфейса.
Архитекторы ценят Ревит за высокую производительность, возможность создания собственных библиотек архитектурных элементов и наличие функции группового доступа к материалам проекта. Однако тем, кто мало дружит с английским языком, будет сложно освоить разнообразный функционал программы, а русскоязычная адаптация, судя по многочисленным отзывам, получилась не слишком удачной. Чтобы легче было принять решение о покупке, производитель выделяет целый месяц бесплатного пользования продуктом.
Самая известная программа для проектирования чего угодно, AutoCad предназначен для разработки профессиональных чертежей, в том числе архитектурно-строительных. Многолетние доработки и отладки снабдили АвтоКад удобными и функциональными инструментами для решения любых задач. Интерфейс полностью адаптирован для 18 наиболее популярных языков мира, причём русскоязычная версия избавлена от багов и работает как часы. Архитектурный модуль предлагает 2D и 3D проектирование, визуализацию чертежей и множество не менее приятных функций, причём для пользователей любого уровня. Мощный расчётный модуль позволяет выполнять математическую часть проекта. Демо-версия на определённый срок доступна для бесплатного пользования.
ArchiCADПрограмма предназначена специально для архитектурного проектирования и содержит всё необходимое для создания полноценного строительного проекта любой сложности. Чертежи, спецификации, расчётная часть, стандарты, свойства материалов – всё это и многое другое присутствует в её обширном инструментарии.
Разумеется, не обошлось без объёмной визуализации чертежей, которая выполняется с поразительной реалистичностью.
Если на каком-либо этапе в проект вносятся изменения – например, вам захотелось установить панорамные окна вместо обычных – пересчёт остальных конструкций выполняется автоматически. ArchiCAD оберегает проектировщика от досадных ошибок и берёт на себя рутинную часть проектных работ. Однако при таком подходе усложняется работа над нестандартными архитектурными решениями, для которых приходится вручную разрабатывать новые шаблоны.
ArconС помощью этой программы можно быстро изобразить эскизный проект частного дома или в деталях разработать пакет документации для возведения промышленного цеха, офисной многоэтажки, масштабной рекламной конструкции. Что характерно, самые сложные и многоплановые задачи решаются исключительно внутренними средствами. Это многофункциональное программное обеспечение, которое высоко ценится профессионалами, в том числе с финансовой точки зрения.
Оплачивать придётся не только полную версию Arcon, но и демонстрационный вариант, хотя во втором случае стоимость будет гораздо более низкой.
Выводы
Хотя существующие сегодня программы позволяют выполнять собственными силами проектирование дома, цена качественного программного продукта довольно высока, а функционал простых бесплатных продуктов не решает необходимые задачи.
Возможности программ, которые отсутствуют в наших проектах:
- Мебель и аксессуары. Программы для создания домашних проектов позволяют заранее продумать расстановку мебели и определиться с габаритами комнат. Размеры помещений в наших проектах обозначены на каждом чертеже. А габариты комнат в наших проектах вы найдете в линейных размерах.
- 3D визуализация и виртуальные прогулки по комнатам. Все дизайнерские просчёты можно обнаружить и исправить заранее, ведь в 3D режиме они будут заметны намного сильнее, чем на обычном чертеже или рисунке.
Плюсы наших проектов, которые сложно получить при самостоятельном проектировании:
- Расчёт нагрузок и прочности.
Чтобы правильно выполнить эти расчёты, нужны профессиональные знания и справочная литература. Конечно, всё это можно изучить самостоятельно, однако есть ли у вас время и желание погружаться в сложную теорию? Прочные знания и солидный опыт позволяют нашим конструкторам проектировать красивые, надёжные и достаточно недорогие в строительстве дома. Вряд ли на любительском уровне можно рассчитывать на такие результаты. - Сложные узлы и элементы. Чем изящнее и необычные конструкция, тем больше знаний и труда должен вложить в неё проектировщик. Чтобы рассчитать, к примеру, панорамное двухсветное окно в холле, необходимо учесть прочностные характеристики стекла, бетона, конструкционной стали, древесины и т.д., учесть особенности напряжений в этих материалах и множество других нюансов. Справиться с этой задачей под силу только опытному специалисту.
Наиболее реалистичный путь: с помощью одной из вышеперечисленных программ вы создаёте эскизный проект дома и передаёте его профессионалам, которые выполняют окончательные расчёты и разрабатывают полный пакет документов по всем действующим стандартам.
Как сделать индивидуальный проект дома, с чего начать?
Индивидуальный проект дома. Сейчас, существует очень много типовых проектов домов, коттеджей, удовлетворяющих по всем пожеланиям и параметрам своих будущих хозяев, но что делать, если типовые проекты домов, коттеджей вам не подходят? Что если вы хотите сделать индивидуальный проект дома, у вас есть желание самостоятельно принять участие в проектировании своего будущего дома. В этой статье предложим основные этапы создания своего индивидуального проекта дома.
Индивидуальный проект дома, как сделать, с чего начать?
И так что нужно вам для начала работы. Посчитать всех проживающих людей и питомцев в доме постоянных и временных. Индивидуальный проект дома, коттеджа будет рассчитываться из количества всех жителей в нем и соответственно от этого параметра будет зависеть общая площадь проекта и количество помещений.
Оптимальным для проживания 1-ого человека считается приблизительно 30 метров квадратных. Соответственно эту цифру вы будете умножать на количество членов вашей семьи. Следует учесть общие пожелания всех участников вашего будущего проекта дома, все пожелания лучше записать в блокнот.
Что вам понадобится при планировании
При создании индивидуального проекта дома, коттеджа, вам понадобится: Основные пожелания и количество будущих жильцов дома. Выбрать будет ли у вас подвальное помещение, определить его назначение. Спланировать первый этаж, сделать зонирование помещений. Определить где будет располагаться камин, лестница, входные группы. Спланировать последующие этажи с учетом пожеланий всех членов семьи. Не забыть про дополнительные «полезные» помещения: кладовые и т.п.
Далее, возьмите листок бумаги и начните рисовать ваш будущий индивидуальный проект дома в линейных размерах, постоянно усовершенствуя его до нужных вам мелочей перелистывая похожие проекты домов, коттеджей в интернете или журнале.
С полученными результатами обратиться в архитектурную компанию для корректировки и внесения изменений в проекте с профессиональной точки зрения.
Зонирование пространства
Традиционно площадь разбивают следующим образом:
Подвальное помещение
Если есть подвальные помещения, то туда подводят все коммуникации, бытовые помещения, различного рода хранилища, спортзал, сауну, комнаты развлечений и т.п. Подвал это очень функциональное и удобное помещение.
Первый этаж
На первом этаже обычно располагаются комнаты общего пользования: гостиные, кухни,холлы, ванные комнаты, уборные. В проекте можно предусмотреть выходы в гараж, террасу, задний двор.
Второй этаж
На верхних этажах располагают комнаты отдыха: спальни, детские комнаты, гостевые комнаты, рабочие кабинеты, если у вас несколько детей, то обязательно нужно учесть, что каждому ребенку понадобится отдельная комната, желательно с гардеробной, так как в процессе накопится много вещей и их нужно куда-то будет разместить.
Все будущие комнаты в вашем индивидуальном проекте дома стремитесь проектировать ближе к квадратной «правильной» форме и у вас не возникнет вопросов с расстановкой мебели.
Гардеробные, ниши
Интересно сочетаются стены закругленной формы у оконных проёмов как бы выступающие наружу дома. Некие арки дают дополнительное пространство и создают необычность комнат и их уют. При создании индивидуального проекта дома или коттеджа нельзя забывать об отдельных подсобных помещениях, где вы будете хранить не используемые временно вещи. К таким комнатам относят: гардеробные шкафы, прихожие, ниши, располагать их можно там, где это будет удобно вам и вашей семье в процессе эксплуатации дома, если ваш дом будет располагаться в месте с переменным климатом то обязательно учтите входную группу тамбур, он будет защищать ваш дом уличной грязи осенью, а зимой от холодного потока ветра.
При индивидуальном проектировании дома, коттеджа нельзя забывать и о домашних питомцах, позаботьтесь о них заранее и подумайте как правильно зонировать для них пространство на стадии проекта.
|
Совет: Важным элементом при индивидуальном проектировании дома , коттеджа является подъем на верхние этажи — лестница. Тщательно подумайте, где она будет находиться и в какой технике исполнения она будет выполнена, лестничный пролет при не правильной организации «съест» большое количество квадратных метров и принесет массу неудобств. |
|---|
И напоследок, не забудьте про расположение камина – важный элемент для дома. Центр семейного очага, создающего тепло и уют.
НаверхCustom на вашем участке в Огайо, Пенсильвании, Мичигане и Западной Вирджинии
В Wayne Homes мы стремимся создать выдающийся опыт строительства дома для наших клиентов. Чтобы достичь этого, мы с вами на каждом этапе пути — до и после продажи, во время строительства и после того, как вы переехали в свой новый дом.
В Wayne Homes мы делаем заказ на вашем участке. За прошедшие годы мы обнаружили, что строительство индивидуального дома на выбранном вами участке имеет много преимуществ по сравнению со строительством на участке или покупкой существующего дома.
Но эти преимущества сопряжены с различными проблемами. К счастью, мы можем помочь со всеми из них. От размещения вашего дома, чтобы максимизировать виды и конфиденциальность, до координации установки систем электроснабжения, водоснабжения и септика.
Если вам нужна земля для вашего нового дома, мы можем помочь.
У нас есть доступ к земле в этом районе и отношения с риелторами, которые могут помочь найти землю. Если у вас уже есть земля, свяжитесь с нами сегодня, чтобы мы могли начать. Просто скажите нам, как вы хотели бы работать вместе.Мы назначим вам вашего собственного полевого менеджера, который позаботится о том, чтобы все ваши потребности были учтены на протяжении всего процесса строительства. Вместе вы просмотрите планы, прогуляетесь по своему домашнему участку, назначите дату завершения, решите любые вопросы и построите дом своей мечты. Подробнее об этой временной шкале смотрите здесь. В настоящее время мы обслуживаем Огайо, Индиану, Мичиган, Западную Вирджинию и Пенсильванию.
Найдите ближайший к вам центр моделей (и ваш домашний сайт), если вас интересуют более подробные сведения о нашем процессе. Мы считаем, что это помогает увидеть, прежде чем купить.
Что мы подразумеваем под заказными домами? Мы строим индивидуальный дом, который вы хотите, именно там, где вы хотите.
Мы сделаем наш дом полностью вашим. Мы строим новые дома по всему диапазону цен. Но даже с самой доступной коллекцией домов вы не только получаете длинный список планов на выбор, но также получаете всевозможные возможности для настройки. И вы получаете такое же обслуживание клиентов и лучшую в отрасли гарантию.
Посетите наши дизайнерские центры, где вы можете настроить полы, шкафы, столешницы, фурнитуру, освещение, отделку, цвета и многое другое.
Конечно, при таком большом выборе может быть трудно точно знать, что вы хотите в своем индивидуальном доме. Первое, что мы делаем, — это помогаем вам составить приоритетный список всего, что вам может понравиться в вашем доме, и всего, без чего вы не можете жить.
Ознакомьтесь с нашими планами этажей, чтобы получить представление о том, что вам нравится (или не нравится). Если вы уже нашли план своей мечты или у вас есть вопросы, свяжитесь с Джули сегодня. Обязательно следите за кнопкой добавить в избранное , когда вы найдете планы, которые вам действительно нравятся.Это просто простой способ сохранить все ваши любимые в одном месте.
Знаете ли вы?
Wayne Homes была основана в 1973 году и названа в честь округа Уэйн, штат Огайо, где наши первые дома были построены с использованием простой философии Строительство лучше за меньшие деньги . Сочетая высокое качество и низкие цены, неизменно обеспечивая отличное качество обслуживания клиентов, Wayne Homes построила более 18 000 домов за прошедшие десятилетия. Мы получили множество местных, государственных и национальных наград за качество, энергоэффективность, цену и дизайн.Узнайте, что именно мы выиграли.
Создайте собственный дом — онлайн-руководство
Добро пожаловать в бесплатный онлайн-учебник «Создай собственный дом».
Этот простой для понимания курс проведет вас через полный процесс, начиная с анализа вашей собственности, затем планируя ваши внутренние и наружные пространства в соответствии с потребностями (и желаниями) вашего домохозяйства, изучая основные принципы построения жилых домов (что держит дом) и заканчивая создание полного комплекта планов этажей и строительных чертежей.
Процесс проектирования нашего дома
Когда наша семья решила разработать собственные планы домов, я прочитал все, что мог найти о проектировании домов, и повсюду искал какое-нибудь учебное пособие или учебный курс, чтобы провести нас через процесс, начиная с необработанной земли и заканчивая планами дома, которые будет и функционально и красиво.
После исчерпывающих поисков я отказался от методической книги, и мы приступили к изучению того, как спроектировать новый дом методом проб и ошибок.
Мы создали много планов этажей и даже несколько наборов полных структурных проектов, прежде чем завершить наши планы дома и затем построить дом.
Имея инженерное образование, я легко понимал многие структурные принципы. У меня также есть опыт создания образовательных учебных курсов, и эта часть меня постоянно хотела создать учебник, чтобы предоставить другим четкий метод проектирования своих домов.
Краткое содержание курса
Исходя из своего опыта, я создал это бесплатное онлайн-руководство.Этот курс проведет вас через подробный пошаговый процесс. Во время этого урока вы:
- Проанализируйте месторасположение вашего дома с учетом таких факторов, как форма участка, уклон, вид, направление ветра и шума.
д.Также подумайте, как вы будете идеально подходить к земле на машине, пешком, на лодке, велосипеде или любым другим способом. Это важный шаг в расположении ваших входов в дома и в том, как они взаимодействуют с вашими открытыми пространствами.

Этот сайт также содержит справочные материалы, которые помогут вам при проектировании различных других элементов вашего дома. Для получения информации о кухнях, дизайне освещения, методах отопления, о том, как читать чертежи и многом другом, ознакомьтесь с нашим навигационным меню в левой части этой страницы.
Начните свой новый дом сейчас
Чтобы приступить к проектированию дома, перейдите к Модулю 1 учебника: Анализ участка.
Никакая часть этого веб-сайта не может быть воспроизведена или скопирована без письменного разрешения.
Нелегальные интернет-копии будут обнаружены Copyscape.
Самостоятельное строительство: Как спроектировать и построить собственный дом — 2-е издание
Описание книги
Если вы когда-нибудь мечтали спроектировать и построить собственный дом, эта книга для вас.
Стать «самостроителем» не обязательно означает научиться физически строить дом с нуля.Каждый может быть самостоятельным строителем — вы можете сделать это, даже не кладя кирпичи самостоятельно. Самостоятельно построенные дома также могут быть более индивидуальными, лучше спроектированными и более экономичными, чем покупка у застройщика.
Эта книга предназначена для домовладельцев и самостоятельных строителей, начинающих или находящихся на грани начала проекта. Он представляет собой пошаговое руководство по процессу проектирования и строительства собственного дома без профессионального жаргона, содержащее всю практическую информацию, необходимую для воплощения дома вашей мечты в реальность.
Тщательно составленный, чтобы предложить дружественное, легкое для понимания практическое руководство и наполненный точками наблюдения, советами и подсказками, он также выделяет потенциальные ловушки и предлагает способы их избежать.
Включая указания затрат и сроков, Самостоятельное строительство демистифицирует процесс составления бюджета, поиска участка, получения разрешения на строительство, проектирования вашего дома и всех сопутствующих вопросов, связанных с устойчивостью, планированием, правилами, закупками и использованием строительных контрактов. .Красиво иллюстрированный более чем 230 цветными фотографиями, схемами и планами, он содержит все вдохновение и идеи, необходимые для воплощения вашего собственного проекта в жизнь.
Рекомендуемые дома включают в себя:
- Дом-амфибия от Baca Architects
- Corten Courtyard House от Barefoot Architects
- Кирпичный дом Haringey от Satish Jassal Architects
- Shawm House от Mawson Kerr Architects
- Sussex House от Wilkinson King Architects
- Карманный дом от Tikari Works Architects.

Содержание
1. Зачем самостоятельно строить
2. Подготовка проекта
3. Поиск и оценка участка
4. Назначение архитектора
5. Влияние дизайна
6. Помещения и планировка
7. Получение разрешения на планирование
8. Строительные нормы
9. Методы закупок и строительства
10. Подготовка к строительству
11. Строительство дома
12.Тематические исследования
Полезные контакты
Дизайн пристройки к дому — Создайте свой собственный пристрой к дому
Марк Дж. Донован
| Принятие решения о постройке пристройки к дому — серьезное дело, и оно не для слабонервных. Это говорит о том, что многие люди выбирают маршрут пристройки дома вместо продажи существующего дома и переезда в более просторный. Как и в любом крупном проекте, планирование имеет решающее значение, поэтому проектирование пристройки к дому является обязательным по ряду причин, включая получение точных оценок пристройки к дому. |
- Насколько велика ваша пристройка к дому?
- Сколько будет стоить дизайн пристройки к дому и пристройка к дому?
- Какие инструменты использовать для создания дизайна пристройки к дому?
- Как найти надежного и квалифицированного генерального подрядчика по ремонту дома?
- Как финансировать пристройку к дому?
Прежде чем приступить к разработке планов пристройки к дому, важно понять, зачем вам нужна дополнительная жилая площадь, чтобы вы могли соответствующим образом разработать собственные планы пристройки к дому.Таким образом, вам нужно начать с составления списка того, что вы хотите / нужно в своем будущем пристройке дома, а затем разработать набор основных планов пристройки дома своими руками и приблизительную смету расходов или бюджет пристройки дома своими руками для проекта.![]()
Важно убедиться, что пристройка к дому не затмит ваш дом. В целом пристройка к дому не должна составлять более одной трети площади всего дома. Чем больше, тем больше пристройка к дому будет выглядеть несоразмерно основному дому, особенно если вы не привлекали архитектора для разработки планов дизайна пристройки к дому.
Стоимость пристройки к дому и затраты на проектирование пристройки к домуПростое дополнение к семейному номеру будет стоить вам в среднем от 80 до 130 долларов за квадратный фут. Если ванная комната или кухня являются частью вашего плана дизайна пристройки к дому, ожидайте, что затраты на пристройку дома будут на 25–50% выше стоимости квадратного фута. Узнайте больше о оценке стоимости пристройки к дому здесь.
Если вы нанимаете архитектора для создания планов проектирования пристройки к дому, его/ее гонорар составит от 5% до 10% от общей стоимости проекта строительства пристройки к дому. Опять же, первый шаг в разработке ваших собственных планов дизайна пристройки к дому — это определить, зачем вам нужно дополнительное пространство. Большинство домовладельцев решают построить пристройку к дому, потому что семья растет, и они не хотят покидать свой район или тратить больше денег на расходы по закрытию недвижимости. В других случаях домовладельцы просто хотят построить главную спальню по индивидуальному заказу или семейную пристройку к дому, чтобы сделать свой дом более комфортным. | Мой Лист заявок на пристройку комнаты , показанный ниже, является идеальным инструментом для оценки затрат на пристройку дома, а также помогает вам узнать, как выбрать правильного подрядчика по реконструкции для планов пристройки вашего дома. |
После того, как вы наметите, что вам нужно в дизайне пристройки к дому, начните проектировать пристройку к дому, набросав несколько планов этажей на миллиметровой бумаге.
| В идеале вы должны сделать эскизы дизайна пристройки к дому в масштабе, чтобы вы могли лучше оценить, будет ли размер пристройки к дому соответствовать вашим потребностям. После того, как вы достаточно удовлетворены планами дизайна пристройки к дому, вы можете перейти к следующему этапу проектирования пристройки к дому. Инвестируйте в пакет программного обеспечения для проектирования дома, который превратит ваши эскизы в реальные планы пристроек к дому, которым смогут следовать подрядчики и инспекторы по строительству. | Воспользуйтесь одним из этих контрольных списков по реконструкции дома и сэкономьте время и деньги на проекте строительства дома. |
Компания Chief Architect предлагает пакет программного обеспечения под названием « Chief Architect Home Designer Suite 10 », который является отличным и доступным для проектирования пристроек к дому.
Он предоставляет все виды в поперечном сечении и высоте, а также информацию, которая может понадобиться подрядчику для расчета вашего проекта пристройки к дому. Кроме того, это может помочь вам оценить фактические затраты на пристройку дома.
| При переносе ваших эскизов в пакет программного обеспечения для домашнего дизайна обратите особое внимание на то, как пристройка к дому будет связана с вашим существующим домом. Важно, чтобы пристройка к дому имела правильные размеры и вписывалась в существующий дом, чтобы она была одновременно эстетически привлекательной снаружи и функциональной внутри дома. |
После того, как вы завершили свои собственные планы проектирования пристройки к дому, и прежде чем предоставить планы каким-либо подрядчикам для участия в торгах, отнесите их местному инспектору по строительству, чтобы убедиться, что пристройка к дому соответствует всем местным строительным нормам и законам о зонировании .
Нет смысла тратить свое время и время подрядчика на участие в торгах по проекту, пока строительный инспектор не подтвердит, что проект пристройки вашего дома соответствует всем муниципальным строительным нормам.
Получение предложений подрядчика по достройке домаПосле того, как вы получите одобрение инспектора по строительству ваших планов пристройки к дому, отправьте свои планы нескольким генеральным подрядчикам по реконструкции дома, чтобы получить предложения по строительству. Опять же, используйте мой Лист заявок на пристройку комнаты , чтобы помочь найти и нанять подходящего генерального подрядчика для вашего проекта пристройки к дому.
Наконец, после получения от вашего подрядчика точной сметы расходов на пристройку дома определите, как вы будете платить за пристройку дома.
В большинстве случаев домовладельцы занимают деньги , а также частично расплачиваются наличными. В других случаях, если процентные ставки ниже, чем у вашей существующей ипотеки, может иметь смысл рефинансировать всю ипотеку за счет дополнительных средств для строительства пристройки к дому. |
Если у вас есть ипотечный кредит, обратитесь в банк, чтобы узнать, можете ли вы рефинансировать кредит на дополнительные средства, необходимые для строительства пристройки к дому.
Также обсудите с ними ссуду на строительство, чтобы вы могли платить подрядчику, пока идет строительство пристройки к дому.
Банк захочет ознакомиться с планами пристроек к вашему дому, поэтому не забудьте взять их с собой, когда пойдете в банк.
Для получения дополнительной помощи по проектам пристройки к дому и строительству пристройки к комнате см.
Лист предложений по добавлению комнаты на сайте HomeAdditionPlus.com. Лист заявок на добавление комнаты поможет гарантировать, что ваш проект по добавлению комнаты пройдет гладко и будет завершен в срок и в соответствии с бюджетом.
Заполните нашу простую и быструю форму, которая займет 3-5 минут, и получите бесплатное ценовое предложение по пристройке дома от одного из наших предварительно проверенных и лицензированных подрядчиков по пристройке дома. Этот процесс является бесплатным, и вы не обязаны продолжать его после того, как получите смету стоимости пристройки к дому.
Могу ли я спроектировать свой дом без архитектора?
Многие люди мечтают построить собственный дом. Однако, несмотря на то , что построить собственный дом может быть дешевле , процесс сложный и трудоемкий.Первым шагом является планирование дома, который вы хотите, затем вы сможете посмотреть на различные места и решить, что вы можете себе позволить. Конечно, при условии, что вы получили разрешение на планирование, вам придется строить, контролировать или платить кому-то, кто позаботится об этом за вас.
Даже когда строительство завершено, вам все равно может понадобиться отделка внутри вашего нового дома.
Конечно, это займет больше времени, чем покупка готового. Тем не менее, вы можете упростить этот процесс, воспользовавшись услугами специалиста по индивидуальному строительству домов .
Этап проектирования
Часто это самая сложная часть, поскольку вам нужно знать, какой макет лучше всего подходит для вас сегодня и в будущем. Проектированием дома традиционно занимаются архитекторы. Они обучены следить за тем, чтобы все нагрузки были правильными, а опорные стены находились в нужных местах. Архитекторы могут сделать несколько отличных предложений, поскольку они знают о последних тенденциях и строительных материалах.
  Но вы можете быть удивлены, узнав, что Австралия — одно из немногих мест, где по закону вам не нужен архитектор для проектирования вашего дома! На самом деле только 3% домов, строящихся каждый год, создаются совместно с архитектором.
Если коротко, то да! Вы можете спроектировать свой собственный дом без архитектора.
На что следует обратить внимание
Однако, если вы собираетесь спроектировать собственный дом, вам необходимо знать несколько вещей.
Ваш дом должен течь. Это может выглядеть великолепно с открытой планировкой, но удобно ли вам идти через гостиную, чтобы попасть из спальни с одной стороны в душ с другой? Очень важно, чтобы вы учитывали, как протекает ваш дом, чтобы в нем было комфортно жить.
Это поможет повысить его привлекательность и ценность и даже облегчит продажу, если вы когда-нибудь захотите.
Сейчас вы можете быть одинокими или парой, но планируете ли вы иметь детей в будущем или иметь обширную коллекцию автомобилей. Если вы проектируете свой собственный дом, вам нужно подумать, сколько спален вам действительно нужно. Гораздо проще включить их в первоначальный проект, чем потом добавлять комнаты в свой дом.
Одним из факторов, на который многие не обращают внимания, является изоляция и использование современных материалов.
Чем лучше утеплен ваш дом и чем больше экологичных технологий вы используете, тем дешевле будет его эксплуатация. Небольшие дополнительные затраты сегодня окупятся в будущем.
Не забывайте думать о солнце и о том, когда оно вам нужно в вашем доме и во дворе. Если вам нравится утреннее солнце, ваш дом должен быть обращен к солнцу. Это означает знать, где он поднимается и садится на вашем участке и какие препятствия создают тень. Это может иметь большое значение для количества света в вашем доме и вашего комфорта.
 Как мне начать проектировать собственный дом? Руководство из 10 шагов
30 июл Как начать проектировать собственный дом? Руководство из 10 шагов
Опубликовано в 14:31 в домашнем дизайне Мэтт МакВильямс Решение спроектировать свой собственный дом может быть чрезвычайно захватывающим и освобождающим опытом после того, как весь проект будет завершен, но есть много вещей, которые жизненно важно учитывать, когда вы вступаете в процесс проектирования дома.
Как мне начать проектировать собственный дом? 10 шагов, которые помогут вам начать работу над дизайном нового дома:
- Вам необходимо определиться с размером поэтажного плана в вашем доме.
- Подсчитайте, сколько спален понадобится вашему дому.
- Подумайте, как вы хотите расположить главную спальню.
- Выберите желаемый стиль дома.
- Сколько уровней вы хотели бы видеть в своем новом доме?
- Подумайте, как должен функционировать новый дом
- Вам нужны дополнительные комнаты?
- В каком месте вы бы хотели построить дом? Общая область будет работать.
- Какой стиль кухни вы бы хотели?
- Сколько ванных комнат вы хотели бы иметь в своем новом доме?
Теперь, когда у вас есть общее представление о вопросах, которые вы должны задавать, давайте подробнее рассмотрим каждый из них, чтобы у вас были практические выводы для работы.
Насколько большой дом вы хотите? Начните с размера плана этажа.
Что-то, о чем чрезвычайно важно подумать, когда вы начинаете проектировать мой собственный дом, это план этажа вашего дома.Как будут выглядеть ваши будни в новом доме? Как вы будете проводить большую часть своего времени? Поскольку люди не знакомы с измерением размеров комнат, они иногда сильно разочаровываются в размерах комнат после завершения проекта. Не забудьте оставить место для дополнительных вещей, о которых люди забудут, например, где будет находиться ваш мусор и отходы, где будут храниться ваши чистящие средства и чистящие средства, а также дополнительное хранилище для таких вещей, как старые записи и сувениры.
Попробуйте взять с собой измерительную ленту в дома друзей и членов семьи, чтобы лучше понять, насколько большими должны быть ваши комнаты.
Сколько спален будет в доме? Чтобы решить, сколько спален будет в вашем новом доме, нужно подумать о долгосрочной перспективе.
Сейчас у вас может быть один ребенок, но хотите ли вы еще в будущем? Вы также должны учитывать, сколько кроватей у вас есть в настоящее время и сколько мебели для спальни у вас есть или потребуется, чтобы заполнить пространство.
Члены семьи будут часто навещать вас? Будет ли у вас много посетителей? Продумав эти вещи, вы избавите себя от многих разочарований в будущем.Вы также можете использовать спальню в качестве офисного помещения.
Какова планировка главной спальни в доме? Простой способ повысить ценность вашего дома — убедиться, что главная спальня хорошо продумана. Такие дополнения, как отдельная ванная комната с глубокой ванной, двойной туалетный столик, душевая кабина и большой шкаф с большим количеством места, определенно увеличат общую стоимость вашего дома в будущем. Именно здесь люди, принимающие решения, которые будут покупать ваш новый дом, будут проводить большую часть своего времени.Хороший макет в мастере может помочь с будущей стоимостью перепродажи.
На начальном этапе проектирования дома лучше всего рассмотреть вопрос о том, каким будет общий стиль вашего дома. Это решение будет иметь эффект домино для всех других решений, которые необходимо будет принять позже, поэтому имеет смысл начать именно с этого.
Подумайте, хотите ли вы традиционный стиль или современный стиль.Вы хотите, чтобы ваша мебель соответствовала остальной обстановке вашего интерьера? Возможно, вы захотите придумать варианты для обсуждения со всей семьей, потому что предпочтения в этих областях обычно различаются.
Сколько этажей будет в доме?
Решение иметь один уровень или несколько уровней зависит от предпочтений. Подобно стилю вашего дома, хорошо подумать о последствиях наличия одно- или многоуровневого дома в долгосрочной перспективе.
Если вы планируете выйти на пенсию в этом доме, то один уровень может быть более идеальным.
Другая ситуация может заключаться в том, что у вас меньше места, поэтому вам нужно максимально использовать свое имущество, увеличив площадь в квадратных футах за счет нескольких уровней. В любом случае, знание того, сколько уровней должно быть в вашем доме, имеет решающее значение для принятия решения заранее.
От того, насколько функционален ваш новый дом, зависит мир, когда дело доходит до повседневной жизни в вашем новом доме. Если вам приходится неуклюже ходить по комнатам по пути в столовую или ванная комната находится слишком далеко от спальни, это может быть довольно неудобно.
Потратьте некоторое время на планирование близости комнат, путешествуя из одной комнаты в другую, убедившись, что расстояние и поток кажутся плавными.
Будут ли в доме дополнительные комнаты? Тенденция, довольно популярная среди новостроек, — использование дополнительных комнат в доме.
Если у вас много детей, игровая комната может стать идеальным дополнением.
Если член семьи работает из дома, домашний офис сделает его более комфортным и поможет отделить рабочее время от семейного.
Наличие прачечной, в которой приятно находиться, также будет огромным плюсом для тех, кто проводит в ней больше всего времени. Подумайте над другими комнатами, которые могут быть хорошими дополнениями!
Где будет построен дом?Это может показаться очевидным, но планирование места, где будет построен ваш новый дом, часто упускается из виду.Это решение повлияет на все остальные решения в доме.
Ваш дом построен на холме или в зоне затопления? Известно ли, что почва в этом районе смещается и вызывает проблемы с целостностью конструкции? Дом находится в оживленном районе или в сельской местности?
Это все важные вопросы, которые следует задать при поиске различных мест для начала строительства дома.
Если вы когда-нибудь планируете продать дом, я рекомендую обратиться к специалисту за помощью в выборе оптимального места, так как это может значительно увеличить стоимость дома при перепродаже.
Было бы очень легко взять очень простой план кухни и двигаться дальше, но что-то, что может помочь вам в долгосрочной перспективе, — это найти стиль кухни, который вам нравится, а затем скорректировать его.
Кухонные стили, которые следует учитывать
- Современный
- Французский кантри
- Фермерский дом
- Очарование коттеджа
- Современный
- Реберный
- Средиземное море
Многие магазины расходных материалов даже помогут вам придумать индивидуальный дизайн для вашей кухни, которым вы будете гордиться долгие годы.Приложите усилия к созданию кухни мечты, которой вы будете гордиться!
Сколько будет ванных комнат? Если вы все еще задаетесь вопросом, как мне начать проектировать свой собственный дом? Нужно смотреть на количество санузлов.
Несмотря на то, что количество ванных комнат в среднем доме за последние несколько лет увеличилось с 2,5 до 3, иногда качество лучше количества.
Уделите время поиску идеальной планировки ванной комнаты и не бойтесь задавать вопросы! Если вы и ваш супруг делите ванную комнату, рассмотрите возможность добавления дополнительных функций, которые подойдут вам обоим.
Если ваши дети большую часть времени пользуются половинной ванной, рассмотрите возможность приспособления ее к их особым потребностям. Когда дело доходит до ванных комнат, существует так много вариантов, поэтому обязательно изучите их заранее!
Дополнительные вещи, которые легко забыть:
Будет ли установлена система полива? Установка ирригационной системы для вашего двора может иметь большое значение, когда дело доходит до снижения привлекательности, но об этом легко забыть в процессе проектирования дома..jpg)
Для такого рода установки необходимо многое, например, знать, следует ли устанавливать большой трубопровод из ПВХ под подъездной дорожкой, помнить о том, чтобы сохранить схему ирригационной системы для будущего использования, или даже сделать снимок или видео, как именно трубы выложены. Все это поможет вам в будущем, и вы будете благодарны за потраченное время.
Где будут установлены телевизоры?В наши дни в большинстве домов в Америке много телевизоров.Вы должны отметить каждое место, где вы хотите установить телевизор, и убедиться, что в этом месте есть розетки. Если вы сделаете это заранее, вам не придется думать, как спрятать уродливые кабели HDMI и питания.
В каком направлении будут открываться двери? Убедитесь и перепроверьте, в какую сторону будут открываться все ваши двери. Как бы мы ни хотели, чтобы все получилось с первого раза, планы строителей не всегда абсолютно точны, когда речь идет о таких мелких деталях.
Продумайте, где ваши стены будут находиться по отношению к дверям, и убедитесь, что нет дверей, которые будут ударяться друг о друга, когда обе открываются одновременно. Это небольшая деталь, но над ней стоит поработать дополнительно.
Вам понадобится система безопасности?
Наличие системы безопасности может снизить сумму страхового взноса, а также повысить уровень комфорта для вас и вашей семьи. Есть много доступных типов, использующих систему видеонаблюдения, более рентабельную, чем когда-либо.Вы можете следить за своим имуществом и семьей, даже когда вы в отъезде.
Где будет установлен водонагреватель?Простой лайфхак по дизайну дома, который вы можете использовать при установке водонагревателя, заключается в том, чтобы узнать у своего строителя, можно ли установить его над вами на чердаке, а не занимать ценное место в гараже.
Строители обычно могут приспособиться к этому, пока не возникнут другие непредвиденные проблемы.
Кроме того, убедитесь, что вы запрашиваете лучшие фитинги для водопровода, потому что, если произойдет авария или что-то разорвется, ущерб на чердаке будет значительно хуже, чем если бы он был установлен в гараже.
Знание того, где будут находиться все ваши выключатели и светильники, является действительно важной частью проектирования вашего дома. Очень легко случайно запланировать выключатель света там, где у вас уже есть кладовая или полка, и это становится крайне неудобным, если его поймать слишком поздно.
Еще один момент, на который следует обратить внимание, — это место размещения наружных розеток. Такие вещи, как наличие дополнительной морозильной камеры в гараже, размещение розетки рядом с подъездной дорожкой для целей полива, освещение для вашего ландшафта, уличное праздничное освещение на Рождество или Хэллоуин и, если вы хотите, чтобы эти светильники были на дополнительном отдельном выключателе.
Как видите, при проектировании собственного дома необходимо учитывать множество важных моментов.
Разговор с квалифицированным архитектором может помочь составить планы еще до того, как вы встретитесь со строителем.Мы надеемся, что эта информация окажется вам полезной, когда вы начнете проектировать свой новый дом!
10 шагов для проектирования собственного дома
Задумывались ли вы, каково это спроектировать дом? Только подумайте о том, как замечательно было бы жить в новом доме, который вы построили. Дом, построенный с учетом вашей семьи и образа жизни. От получения вдохновения до выбора строителя мы разбили его на десять простых шагов, чтобы построить дом. Читайте дальше, чтобы узнать, как построить дом своей мечты.
1. Вдохновение
Кто не любит вдохновляться? Будь то начало нового бизнеса, переезд по стране или строительство дома, всегда интересно мечтать и создавать светлое будущее. А когда дело доходит до проектирования дома, у вас под рукой так много вдохновения. От HGTV до таких журналов, как House Beautiful и Better Homes & Gardens, вдохновение может исходить из самых разных областей, включая дома ваших друзей и семьи.
2.Посетите модели домов
Одно из лучших предложений по проектированию собственного дома — посетить модели домов. Известные строители, такие как Pulte Homes, знают, как спроектировать дом, и лучшие дизайнеры создают последние тенденции в новом строительстве. Вы увидите такие проекты, как большие открытые комнаты для собраний и апартаменты владельцев, а также гибкие пространства для домашнего офиса или комнаты для гостей. И если в вашем списке есть готовый подвал, подумайте, как спроектировать свой собственный.
3. Просмотр сообществ
Строительство дома связано не только с планом этажа и внешними фасадами; это также имеет отношение к району и городу.Вам нужно выбрать место, где всегда есть хорошо построенные дома. Когда вы едете по улицам, почувствуйте, каково было бы жить там. Это приятное вождение? Ухожены ли дома? Это важные вещи, которые следует учитывать.
4. Установите бюджет
.
После того, как вы посетили модели домов и проверили нескольких строителей, вы можете установить свой бюджет. Даже если вы, возможно, посетили дни открытых дверей с более высокой ценой, чем вы можете себе позволить, все равно было приятно увидеть, что там есть.Кроме того, часто вы можете получить несколько отличных идей более дорогих дизайнов, которые вы можете изменить, чтобы они соответствовали вашему бюджету.
5. Установите приоритеты
Сядьте вместе со своей семьей и составьте список самых важных комнат и предметов первой необходимости. Возможно, домашний офис стоит на первом месте в вашем списке, а если у вас дома есть дети или даже вы посещаете внуков, домашний кинотеатр может быть захватывающим вариантом. Без сомнения, у вас будут идеи о том, что вы хотите для проектирования идеальной кухни. Если вы повар-гурман, подумайте о большой встроенной кладовой.
6. Выберите конструктор
Когда у вас есть список и вы посетили дни открытых дверей, вы можете быть уверены в выборе строителя.
Убедитесь, что у них хорошая репутация и они поддерживают свою работу. Прежде чем принять окончательное решение, спросите их о гарантии их строителя.
7. Выберите лот
Если вы еще не выбрали именно тот лот, который вам нужен, пришло время отправиться в еще один тур, чтобы узнать, что есть в наличии у вашего строителя.Вы хотите угловой участок, участок у воды или таунхаус в конце? Убедитесь, что вы рассмотрели все возможности, чтобы вы могли быть уверены, что выбрали идеальное место для строительства дома.
8. Проверка проекта плана этажа
Вы добились больших успехов, и теперь вы можете проверить все планы этажей. Поскольку вы посетили типовые дома и у вас есть свой участок, у вас будет представление о том, хотите ли вы одноуровневый стиль ранчо или двухэтажный дом.Убедитесь, что вы выбрали план, который включает размер гаража, который вы хотите. И с любым застройщиком они более чем рады внести изменения в базовый план этажа, если есть что-то еще, что вы хотите.
Например, если вам нужна большая суперпрачечная наверху или дополнительное хранилище в гараже или подвале.
9. Список обновлений
После того, как вы выбрали основы, вы можете принять решение о любых изменениях, которые вам понадобятся для проектирования дома вашей мечты. Более крупные конструкторы включают в себя множество предметов, которые, по вашему мнению, можно было бы считать обновлениями.Это потому, что они обладают огромной покупательной способностью и могут передать вам сбережения. Принимая решение, вы можете обсудить варианты, которые повысят энергоэффективность вашего дома, потому что это будет экономить ваши деньги каждый месяц. И обязательно ознакомьтесь с любыми функциями Умного дома.
10. Довести до конца
Вы близки к завершению первых шагов по строительству дома. Но умные покупатели жилья следят за процессом на каждом этапе, чтобы убедиться, что конечный продукт соответствует их ожиданиям.И время от времени вы можете вносить некоторые изменения — например, вы можете решить перейти на гранитные столешницы вместо того, чтобы добавлять другие оконные покрытия.
На протяжении всего процесса очень важно поддерживать тесную связь со своим застройщиком, чтобы вы получили дом своей мечты.
Теперь, когда вы знаете десять шагов проектирования дома, вы, вероятно, готовы приступить к покупкам. Чтобы получить больше вдохновения, взгляните на некоторые из наших лучших дизайнов кухонь.
В блоге Your Home автор Кэрол Юманс
Ищете дополнительные советы, идеи или вдохновение? Вернуться домой здесь.
Опубликовано 29.01.2020
.


Родительская спальня площадью до 20 кв. метров. Детская — до 40 кв. метров либо каждая по 20 метров квадратных.
Обязательно выделяется место для входа (не менее 5 кв. метров) и лестничный пролет на второй этаж до 3 кв. метров.



Крыши сложной формы менее надёжны, ведь через некоторое время в таких местах может образоваться течь.

К программе, помимо прочих функций, прилагается обширная библиотека текстур, позволяющая визуализировать всевозможные варианты отделки. Например, на пол можно постелить ламинат, уложить ковровое покрытие или мраморную плитку, между этажами установить деревянную или бетонную лестницу и т.д.
Чтобы правильно выполнить эти расчёты, нужны профессиональные знания и справочная литература. Конечно, всё это можно изучить самостоятельно, однако есть ли у вас время и желание погружаться в сложную теорию? Прочные знания и солидный опыт позволяют нашим конструкторам проектировать красивые, надёжные и достаточно недорогие в строительстве дома. Вряд ли на любительском уровне можно рассчитывать на такие результаты.


В некоторых случаях может быть более целесообразно взять кредит под залог собственного капитала под существующую ипотеку.