Проект дома на 2 семьи с одним входом и одной гостиной: планировка на две семьи с отдельными входами, двухквартирный вариант, экономия при постройке на двух хозяев
планировка на две семьи с отдельными входами, двухквартирный вариант, экономия при постройке на двух хозяев
Любая постройка на сегодняшний день отличается своей неповторимостью и уникальностью. Однако кроме обычных домов с одним входом, имеются еще и дома на два входа, в которых могут с комфортом проживать две семьи. Для многих людей разделение земли и частного дома на две части является актуальным вопросом, ведь не всем удается приобрести отдельный дом или разделить существующее имущество.
Особенности
Дом на два хозяина с двумя входами и двойным количеством комнат приходится строить и перестраивать по многим причинам.
Семьи, сталкивающиеся с вопросом обустройства дома с парой выходов, должны обратить внимание на то, что нужно заниматься не только физической стороной ремонта, но и юридической.

Если нет никакого опыта в этих вопросах, стоит обратиться к юристам, которые специализируются в таких делах. Чаще всего это происходит в том случае, когда имущество делится наследниками. Как правило, при отсутствии завещания, имущество делится между всеми поровну. И каждый может пользоваться своей половиной. Для того чтобы все было официально, необходимо оформить все нужные документы, выделить часть каждого хозяина и оформить проект перестройки дома, который отныне будет рассчитан на два входа.
При этом делить землю, на которой расположен дом, нельзя. Участок разделяют по тем же правилам, что и дом.
Очень часто раздел домов на две полноценные части происходит после развода супругов. Таким образом, делится имущество, нажитое в браке. И поэтому у дома появляется сразу два собственника.
Оформляя дуплекс дома, каждый новый хозяин получает свидетельство о праве на владение домом и отдельно к нему право на собственность земли под ним. Это дает возможность каждому из совладельцев распоряжаться доступной ему частью имущества по своему усмотрению.
Часто совладельцы, чтобы избежать конфликтов между собой, стараются оформить свою часть недвижимости как отдельное помещение. Для этого необходимо заключить соглашение, где будет указано, что жилой дом и земля под ним, находится в эксплуатации.
Многие частные дома, которые стоят отдельно на земельном участке, могут по проекту иметь только один вход.
И разделить их на две полноценные части просто невозможно. Поэтому в таких случаях нужно делать перепланировку дома.
Утверждение плана делается в разных инстанциях. Это очень трудная и долгая процедура. И даже после того, как получены все письменные разрешения и закончена перепланировка, необходимо подать дополнительное заявление в органы местного самоуправления. Это делается для того, чтобы можно было собрать комиссию, которая посетит дом и проверит, все ли соответствует нормам и законам. После этого собственнику выдается разрешение на право эксплуатации обновленного дома.
Виды конструкций
И также помещение может быть дополнено различными пристройками, например, гаражом или баней. И, наконец, конструкции различаются и своей функциональностью – в них может жить и одна семья, и две.Если в доме проживают сразу две семьи, то у них должен быть отдельный вход с крыльцом, отдельные коммуникации и отдельные комнаты. Бывают такие постройки, где комнаты разделены, но кухни и ванные комнаты являются совмещенными.
Одноэтажные
Если рассматривать одноэтажные постройки, то самым используемым проектом будет дом на двоих хозяев, где комнаты расположены в зеркальном отображении. То есть являются точной копией друг друга. Каждая семья может иметь две спальные комнаты, гостиную, кухню или столовую, санузел, а также отдельный выход с наличием крыльца.
Объединяющей в таком помещении является только одна общая стена, которая имеет хорошую звукоизоляцию.
Обычно в таких домах наружная отделка делается в едином стиле, чтобы не испортить общее впечатление от дома. А внутри помещения каждый хозяин создает тот интерьер, который придется ему по душе.
Двухэтажные
Наличие двух этажей во многом облегчает работу над проектом. Это может быть как полноценная двухэтажная постройка, так и дом с мансардным этажом. Второй вариант обойдется дешевле, при этом не будет иметь никаких существенных недостатков.
Если выбор сделан именно в пользу постройки с мансардой, рассчитанной на две семьи, можно расположить там спальни, детские или функциональные комнаты. Например, при желании там можно разместить игровую или кабинет. Первый же этаж отводится под основные комнаты – гостиную, кухню и так далее. Это удобно и в том случае, если в доме живет одна семья, и если их несколько.
Полноценный двухэтажный дом обходится дороже, да и воплощение творческой задумки в реальность стоит дороже. Но для больших семей такой вариант очень хорош.
С гаражом
Очень удобно, если в доме на две семьи, имеется гараж. Его можно расположить на первом этаже. Это очень удобно, ведь при плохой погоде не нужно будет идти в другое помещение под дождем или снегом.
Материалы постройки
Современный коттедж на два выхода можно построить из следующих материалов:
- бруса;
- пеноблоков;
- газобетона;
- ракушечника;
- кирпича;
- деревянного каркаса.

Выбрать можно любой из предложенных вариантов. Все они одинаково хороши и обладают большой прочностью и долговечностью. Используя их, можно соорудить дом, имеющий любую этажность. При этом у каждого из них есть и свои преимущества, и свои недостатки.
Кирпич
Одним из самых дорогих материалов является кирпич. Но, несмотря на это, именно кирпичные постройки встречаются намного чаще. Дело в том, что они максимально прочные, долговечные, и не подвергаются влиянию негативных погодных условий. Несущие стены кладутся в два кирпича, а для межкомнатных перегородок достаточно будет и полкирпича. Но перед этим обязательно необходимо сделать планировку постройки, чтобы убедиться в том, что стены и перегородки будут довольно прочными.
Ракушечник
Экономичным вариантом считается строительство дома из ракушечника. Ведь этот материал имеет блоки крупного размера, поэтому складываются они очень быстро и легко. К тому же ракушечник обладает экологичностью, так что постройка не вредит природе. Единственный минус – данный материал быстро разрушается под воздействием влаги. Поэтому если климат слишком влажный, и часто идут дожди, то дом в этой местности из ракушечника лучше не строить.
Каркасные дома
Но также можно встретить проект монолитной постройки. Его планировку нужно определить еще до того, как начнется строительство. Это делается потому, что все стены: и несущие, и межкомнатные – делаются по особой технологии, и потом ничего уже нельзя будет изменить.
Каркас-опалубка возводится из натуральной древесины.
Далее делается раствор из бетона, в состав которого входит портландцемент. Затем в него добавляют керамзит и щебенка. И также в опалубку ставится арматурная сетка, она служит связующим и укрепляющим звеном. Такая постройка стоит дешевле кирпичной, при этом выдержит даже сложные погодные условия и испытание временем.
Блоки
Но также можно строить дом из шлакоблока или пенобетона. Но в этом случае профессионалы не рекомендуют возводить и этого материала двухэтажные дома. Ведь они могут деформироваться даже под своим весом. Для одноэтажного дома такой вариант очень даже подходит. Строительство обойдется недорого и закончится в короткие сроки.
Брус
Этот материал тоже очень хорош. Постройки из бруса выглядят красиво и отличаются повышенной прочностью. Дерево натурально, экологично и позволяет создать в доме уютную атмосферу.
Запах натуральной древесины положительно влияет на состояние здоровья, да и просто умиротворяет.
При выборе такого материала, как брус, для постройки дома на две семьи необходимо знать, что перед началом работы его обязательно нужно хорошо просушить и сделать обработку с помощью специальных составов. Обработка делается для защиты от плесени и от разных насекомых. Это позволяет продлить срок службы материала на несколько десятилетий. А всю поверхность здания нужно покрыть толстым слоем грунтовки.
Правильно обработанная древесина и сохраняется дольше, и выглядит привлекательно. При желании основу домов из бруса можно дополнительно декорировать. Например, покрыть резьбой. Это смотрится хорошо во многих стилистических направлениях.
Планировка
Самым большим преимуществом двухквартирных домов является то, что, хотя все родственники и находятся под одной крышей, при этом каждый из них имеет свое пространство.
План дома на два хозяина с наличием отдельных входов очень удобен для того, чтобы в нем проживали большие семьи. К тому же такая планировка позволяет сэкономить на строительстве. Это происходит из-за того, что у домов общий фундамент и общие коммуникации, а значит, не приходится тратить дополнительно деньги и время. Это, кстати, относится и к подсобным постройкам, которые могут располагаться как в одной части дома, так и в двух сразу.
Зеркальная планировка
Чаще всего застройщики выбирают такой вариант, как зеркальная планировка. В этом случае входы располагаются на разных сторонах постройки ровно друг напротив друга. Расположение комнат в одной части дома полностью повторяет расположение помещений в другой половине. Это же касается и размеров комнат и расположения окон.
С выходом на одну сторону
Некоторым кажется более удобным вариант, в котором двери выходят на одну сторону.
Выглядит это не совсем привычно для наших городов и поселков. Двери располагаются на небольшом расстоянии друг от друга. Каждое из них дополнено крыльцом. При желании можно попробовать объединить два крыльца в одно большое или же переоборудовать его в веранду.
Для одной семьи
Другой популярный вариант планировки подойдет либо для большой семьи, либо для тех, кто не против делить свободное пространство со своими соседями по дому. В этом случае один из входов становится основным, а второй – запасным. Это удобно и практично.
Выбор планировки в итоге зависит от совместного решения двух семей, которые будут делить дом.
Красивые примеры
Дом на две семьи хорош тем, что он очень большой, а значит, тут есть, где разгуляться.
В такой постройке можно разместить все нужные помещения и с комфортом жить даже очень большой семьей. Очень важно, чтобы постройка максимально подходила семье, то есть была удобной и рассчитанной на нужное количество людей. К счастью, создать продуманный и идеально подходящий проект не так уж сложно, ведь есть много готовых построек, на которые можно ориентироваться.
Классический одноэтажный дом
Первый вариант – это именно та постройка, которая лучше всего подходит для комфортного сосуществования двух семей в одном доме. С виду такой дом кажется совсем обычным, и единственное, что его выделяет – это два входа, расположенные рядом друг с другом. Каждый из них дополнен небольшим крылечком с парой ступенек.
Чтобы не нарушать гармонию, хозяева выкрасили дом в светлый цвет, не деля его на две части.
Проявить индивидуальность можно и внутри дома, экспериментируя с оформлением комнат.
Крыша у постройки контрастного темного оттенка, как и фундамент. Классическое сочетание цветов выглядит просто и по-домашнему.
Внутри дома найдется место для всего самого необходимого, и никто не будет чувствовать себя ущемленным. Нужно просто позаботиться о том, чтобы перегородка была и прочной, и обладающей достаточным уровням звукоизоляции. Так личная жизнь одной семьи не будет мешать соседям. В таком доме идеально сделать зеркальную планировку. Получается, что у каждой семьи будет своя кухня, столовая, гостиная и нужное количество спален и санузлов. Поэтому никто не будет чувствовать себя обделенным.
Дополнительно можно украсить прилегающую территорию клумбами или другими зелеными насаждениями, которые помогут «оживить» участок.
Двухэтажное здание
Но также можно построить дом на две семьи с мансардным этажом, который будет иметь два полноценных входа.
На первом этаже можно разместить довольно большую гостиную, имеющую два окна. На каждой половине дома легко обустроить свою кухню также с наличием двух окон.
Лестница, ведущая на второй этаж, как правило, располагается именно в гостиной. Это удобнее всего. В этом случае она никому не мешает, и не занимает свободного пространства. А также не стоит забывать и о небольшом санузле, который можно разместить на первом этаже. Хотя он и не будет отличаться большими размерами, окошко все же можно в нем сделать. А для экономии пространства можно ванну совместить с туалетом или вовсе заменить компактной душевой кабиной.
Снаружи дом выглядит тоже очень хорошо. Постройка, как и предыдущая, выполнена в классических бежево-коричневых тонах. Массивная крыша сочетается с дополнительными колоннами, поддерживающими балкон на втором этаже, и темным забором. Каждый вход имеет отдельное крыльцо, с козырьком, защищающим от дождя и полноценными ступенями.
Дом большой и добротный. Места в нем хватит на всех, а ухоженная прилегающая территория будет радовать глаз всех, кто там живет.
В целом дом, рассчитанный на то, что в нем будут жить две семьи – это отличный вариант и для тех, кто хочет разделить имущество, и для тех, кто не хочет после свадьбы уезжать далеко от родителей. Если грамотно разделить пространство, то места в таком доме хватит на всех, и никто не будет чувствовать себя стесненным.
Обзор дома на две семьи смотрите в следующем видео.
Дом на нескольких хозяев. Проекты домов на две семьи
Один большой дом занимает меньший участок земли, чем два небольших.
Исходя из этого, для двух семей, обладающих общей собственностью, выгоднее построить двухквартирный особняк и сэкономить земельный участок (См. ). Дом может быть одно или двухэтажным, кирпичным, деревянным либо блочным. Даже размеры квартир могут различаться между собой.
Одноэтажный дом
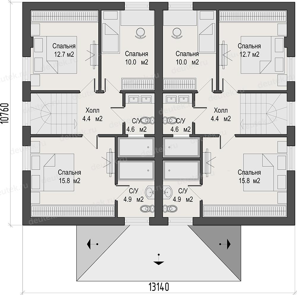
Самый распространенный проект дома на двух хозяев, когда квартиры распланированы в зеркальном отображении и как бы копируют друг друга. На фото представлен проект одноэтажного дома, в котором каждая из семей располагает двумя спальнями, гостиной, кухней со столовой, санузлом и отдельным входом с крыльцом.
Объединяет квартиры только общая стена, усиленная конструкция которой обеспечивает надежную звукоизоляцию. Благодаря этому семьи не чувствуют себя как в многоэтажных строениях с высокой звукопроницаемостью. Через гостиную каждой из квартир предусмотрен еще один выход на террасу, находящуюся на заднем дворе дома. Стены дома возводятся из кирпича или газобетона, но при выборе второго варианта, конструкция облицовывается сайдингом.
Чтобы не портить внешнего вида строения, наружная отделка дома делается общей, а вот внутреннее пространство каждая семья вольна выполнить в собственном вкусе, вплоть до изменения расположения перегородок.
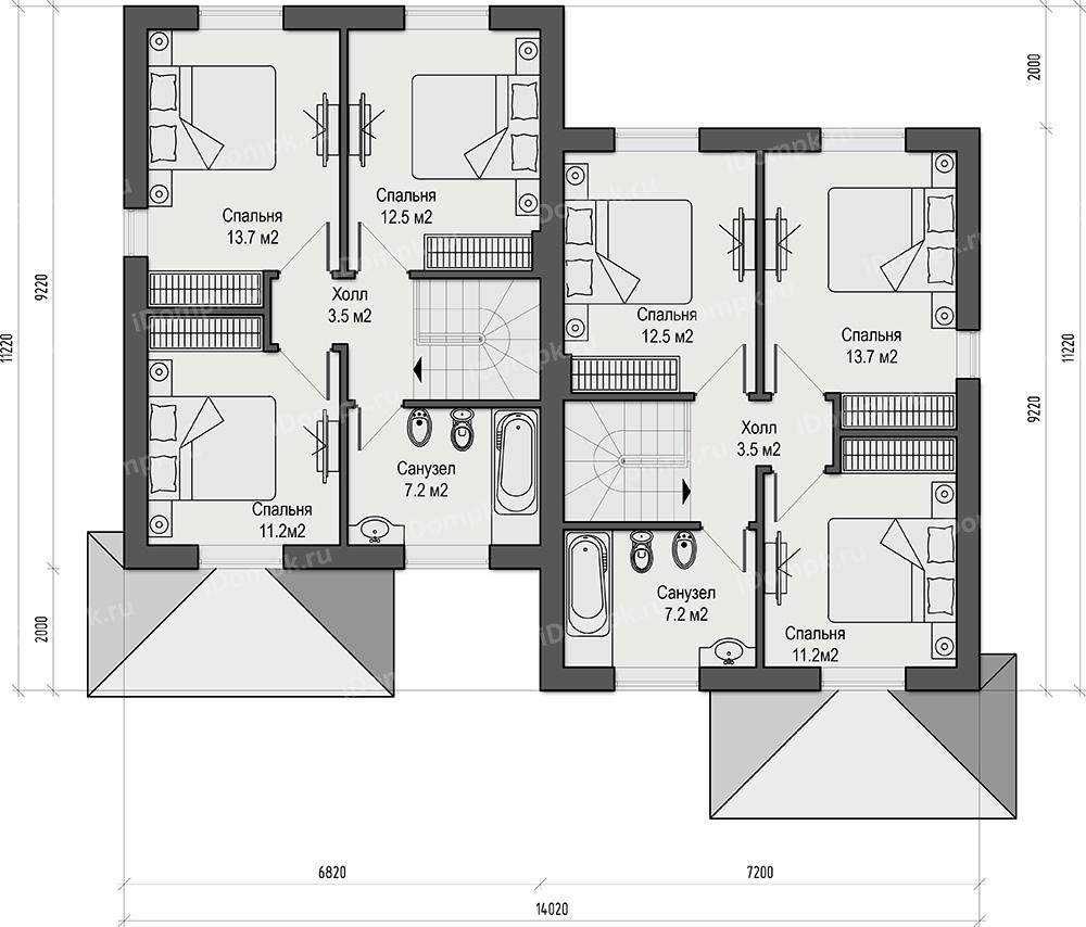
Двухэтажное здание
Компактно сконструированный дом на две семьи с мансардой и с двумя отдельными входами. Основное помещение первого этажа — просторная гостиная с двумя окнами. В каждой половине дома находится кухня, по площади не уступающая гостиной, также на два окна. Из кухни лестница ведет на второй, мансардный этаж, где расположены две спальни. Примечательно, что находящийся на первом этаже санузел, хотя и имеет небольшие размеры, оборудован окном, а над крыльцом каждой из квартир есть навес, защищающий от дождя.
Наружные стены коттеджа собираются из бруса, а внутренние перегородки из каркасных панелей, но простой проект дома имеет свою особенность. Так как строение не обременено архитектурными дополнениями, внешние стены здания можно возвести из сип панелей.
Если будет возводиться каркасный вариант коттеджа, стоимость строительства дома уменьшится.
Проект с гаражом
Дополнительный комфорт при эксплуатации дома — гараж, расположенный на первом этаже. Для того, чтобы выехать, не нужно выходить из квартиры в ненастную погоду и открывать дверь гаража под дождем или снегом. Выбрав проект двухэтажного дома с гаражом, можно выиграть не только на удобстве пользования автомашиной, но и сэкономить средства на постройке гаражного помещения.
Планировка квартиры рассчитана так, что шум заводящегося автомобиля не проникает в жилые помещения. Современному внешнему виду здания соответствует и внутреннее расположение комнат.
Первый этаж:
- Кухня.
- Прихожая с лестницей.
- Санузел.
- Подсобное помещение.
- Гостиная.
- Второй этаж:
- Две спальни.
- Кабинет.
- Туалет.
- Джакузи с выходом на большой балкон и в спальню.
- Ванная комната.

Кроме этого, под домом находится цокольный этаж, который используется как подсобное помещение, мастерская, или обустраивается как дополнительная жилая площадь.
Общая стена может разделять не только строение: земельный участок разделяется забором, по стилю соответствующему коттеджу.
Преимущества двухквартирных коттеджей
Типовые проекты домов на двух хозяев удобны для проживания больших семей, состоящих из нескольких поколений: родители, дети и внуки. Пожилые родители, нуждающиеся в помощи, всегда могут рассчитывать на поддержку детей, и в свою очередь помогут присмотреть за внуками. Выгодно построить такой дом и из экономических соображений: один дом всегда дешевле двух.
На чем можно сэкономить при строительстве дома на две семьи:
- Заливка общего фундамента.
- Общая капитальная перегородка.
- Общее подведение коммуникаций: водоснабжение, газ, канализация, электричество.
- Строительство общего гаража и подсобных помещений.

Но наибольшее преимущество двухквартирных особняков в том, что, находясь под одной крышей, связанные родственными узами семьи имеют свое жизненное пространство.
Наша компания качественно и в срок выполняет проекты домов на два хозяина для заказчиков в Москве и регионах России. При этом мы учитываем все индивидуальные пожелания клиента, касающиеся планировки, материала стен, формы и площади помещений и т.д. В ассортименте имеется большой выбор готовых эскизов, под различные нужды. Их доступная цена порадует Вас. Дома на этих эскизах выполнены из современных материалов и соответствуют всем нормам качества. Четко налаженная система менеджмента позволяет предоставлять Вам обслуживание высокого класса.
Проект дома с двумя входами необходим, если молодая семья решила проживать вместе со старшим поколением. Эти случаи нередки, когда у молодоженов рождается ребенок и требуется помощь родителей в уходе за ним, воспитании. Отдельные входы и разделение стеной дают обеим сторонам ощутимые выгоды, главным образом, в обозначении личного пространства.
Это способствует предотвращению многих конфликтных ситуаций в быту. Еще одной особенностью проекта дома с отдельным входом является неравнозначность площади жилых половин. Одна из них комплектуется из минимального количества помещений, другая — напротив, состоит из отдельных спален, гостевых комнат. В ней предусмотрено все для комфортного проживания и воспитания маленького ребенка. Есть варианты эскизов, где две половины объединены одним холлом. Чтобы найти нужный, воспользуйтесь электронной формой поиска оптимального варианта проекта дома на два хозяина. Благодаря набору фильтров все это займет не более пары минут. Необходимо лишь определиться с:
- общей жилой площадью;
- количеством этажей;
- материалом стен;
- количеством комнат;
- наличием подвала и мансарды;
- наличием и размером гаража.
После выбора подходящего эскиза совершите заказ. Если Вы решили купить проект коттеджей на две семьи по персональным параметрам, следует определить стоимость выполнения работ.
Мы рассчитываем ее на основании сложности эскиза, в соответствии с действующим прейскурантом.
Сделайте заказ прямо сейчас!
Чтобы совершить заказ на проект дома на 2 входа, заполните форму и укажите контактные данные. В ближайшее время с Вами свяжется менеджер.. Наши сотрудники помогут подобрать проекты домов на 2 семьи и рассчитают предварительную стоимость индивидуальных заказов.
На сегодняшний день любое строение имеет свой уникальный и неповторимый внутренний и внешний дизайн. Существуют не только стандартные здания, которые имеют один вход. Есть еще и дом на два входа. Он может иметь различную функциональность.
Проект дома на два входа
Проект такого дома может быть различным. В основном встречаются строения:
- одноэтажные;
- двухэтажные.
Как правило, большая этажность у таких домов не предусмотрена. Все это по причине оптимальной функциональности каждого помещения.
Дом имеет разную функциональность:
- на две семьи;
- для одной семьи.

Первый вариант характеризуется тем, что в строении проживают две семьи и для каждой из них будет свой отдельный вход. Жители такого дома не пересекаются внутри никаким образом. У них отдельные коммуникации и комнаты для проживания. В некоторых случаях планировка дома может иметь только совместные санитарные помещения или кухонную зону. Но они являются отдельно стоящими зданиями. Как правило, для каждой семьи все обустраивается внутри дома.
Интерьер дома на два входа
Чаще всего такие постройки представляют собой коттедж с двумя входами разной этажности. Территория возле дома также разделена на двух хозяев и ограждена по возможности.
Дома для одной семьи характеризуются большей функциональностью. Они имеют два входа для эффективного использования строения. Есть вход:
- основной;
- дополнительный (задний).
Первый тип может использоваться для входа в жилище в любое время. А второй уже используется для выхода на задний двор.
Важно.
Очень хорошо строить коттедж на два входа в том случае, если здание имеет довольно большие параметры и неудобно обходить дом для выхода в сад или огород.
Проектирование домов с двумя входами
Составляют проект дома на два входа:
- самостоятельно;
- при помощи профессиональных архитекторов.
Изначально определяется функциональность строения. Будет ли или для одной.
Проект дома на две семьи
В первом случае коттедж предусматривает задний вход. Во втором – вход может быть расположен в любом месте.
Примечание. В большинстве случаев в строении, которое предназначено для проживания двух семей входы располагаются рядом.
Самостоятельное проектирование домов
Допустим, есть участок, на котором нужно построить дом для двух семей. Изначально составляется план. В нем указывается точное количество комнат и других функциональных помещений. Для каждой семьи такие параметры должны быть аналогичными, чтобы им досталось одинаковое количество жилой площади.
В них заносят определенные параметры строения:
- необходимая площадь;
- длина дома;
- ширина;
- этажность;
- высота;
- количество входов и их рациональное расположение.
программа для проектирования домов и коттеджей
То есть, делается планировка пространства. Она выполняется с учетом всех несущих конструкций.
Важно. Коттедж на две семьи может иметь проект с такими несущими стенами:
- внешними;
- одной совместной.
Читайте также
Проекты дачных домов с мансардой и верандой
Причем, если дом двухэтажный, то несущая конструкция располагается в центре жилой половины каждой семьи.
Учитывается также, будет ли коттедж иметь мансардную крышу. От этого зависят нагрузки на фундамент строения и его несущие стены.
Составление проекта с помощью профессионального архитектора
Можно с уверенностью сказать, что если проект такого строения составляет высококвалифицированный архитектор, то будет не только функциональной, но и оптимально подходящей.
Специалист, оценив пожелания заказчика и его финансовые возможности, сможет точно распределить комнаты в доме и обустроить коттедж. Стоимость таких работ не слишком высокая, по сравнению с тем, что можно сразу после того, как утвержден проект, приступать к строительству. Визуально оценить будущее строение можно на экране монитора. Далее, все документы распечатываются и отдаются на согласование в соответствующие инстанции.
Как правило, у архитекторов в своем каталоге есть уже масса различной стоимости в разработке и строительстве. Можно просто купить их и уже после утверждать в государственных организациях. Планировка таких строений довольно разнообразна. В некоторых случаях она «свободная» и собственнику жилища предоставляется возможность распределить пространство самостоятельно.
Профессиональные характеристики строений с двумя входами
Проект здания, имеющего несколько входов, может быть любым. Все зависит от технических характеристик строения, которое подразделяется на:
Планировка также отличается.
Строительство выполняется по различным технологиям. Можно купить уже готовое жилище такого типа или же возвести его самостоятельно.
Дома на два входа
Дома с двумя входами — это фундаментальное строение, которое обладает высокой прочностью и долговечностью. Проект составляется с учетом всех технических характеристик несущих конструкций и межкомнатных перегородок.
Возводят дома из:
- кирпича;
- ракушняка;
- монолитом.
Эти материалы и средства обладают достаточной прочностью, чтобы из них можно было построить дом любой этажности.
Примечание. Более дорогостоящим является строение из кирпича. Обусловлено это размерами камня, которые небольшие.
Коттедж построенный из кирпича
Кладка несущих стенок выполняется в 2 или 3 кирпича, межкомнатных перегородок – в 1 или 0,5. Предварительно определяется планировка строения.
Более экономичным в строительстве является ракушняк. Этот материал обладает большими размерами.
Блоки выкладываются довольно быстро и просто.
Как и в применении кирпича, кладка выполняется с помощью бетонного раствора, который приготавливается из:
- песка;
- цемента марки 400;
- воды;
- затвердителей.
Примечание. Основным отличием этого материала от кирпича является пористость. Ракушняк – экологически чистый камень, который способен деформироваться под длительным воздействием влаги.
Вес его, по сравнению с кирпичом, незначительный. Но это не освобождает от сооружения прочного основания для дома.
Довольно часто встречается проект монолитного строения. В чем его особенность?
Проект монолитного дома на два входа
Планировка такого жилища определяется еще до начала строительства. Обусловлено это тем, что все стены как несущие, так и межкомнатные перегородки, выливаются по определенной технологии:
- сооружается каркас-опалубка из древесины;
- замешивается раствор из бетона на основе портландцемента;
- в него добавляются щебень и керамзит;
- изначально в опалубку прокладывается арматурная сетка, которая выполняет связующие и укрепляющие функции.

Дуплекс – это загородный дом, состоящий из двух автономных, и зеркально расположенных секций. Каждая секция представляет собой отдельный дом с собственным входом. По планировке, габаритам, этажности и дизайну фасадов, разнообразие дуплексов не уступает классическим домам. Учитывая, что расходы на возведение распределяются на двух владельцев, плюс некоторую экономию на отделке и «инженерке», то чтобы построить дуплекс можно обойтись минимальным бюджетом, тем более, что всегда можно найти проект эконом класса.
Часто дуплексы проектируются двухэтажными, при этом часть первого этажа отводится под пристроенный гараж. Планировка соседних домовладений практически всегда зеркальна. Перед входом предусматривается как минимум небольшой индивидуальный дворик.
Проекты дуплексов часто предусматривают наличие гаража
Кому подходят дуплексы
Один дом на земле на 2 хозяина является оптимальным вариантом решения многих вопросов :
Если представители двух поколений одной семьи хотят жить рядом, но не вместе.
Если 2 семьи готовы разделить общую придомовую территорию и поселиться в одном здании, получив при этом недорогое в строительстве и эксплуатации частное жилье.
Если семья планирует построить такое жилье, часть которого можно будет сдавать в аренду и не переживать по поводу благонадежности квартирантов.
Если нужно построить дом в черте города, где под каждое домовладение выделяются минимальные по площади участки.
Проект дуплекса с плоской кровлей
Проекты дуплексов
Двойные дома проектируются по тем же принципам, что и обычные коттеджи. Современные архитекторы создают всевозможные типовые проекты дуплексов эконом класса на 2 семьи. При желании можно заказать индивидуальную архитектурную разработку жилья как эконом, так и премиум класса. Однако сама идея проживания двух семей на одной территории, вплотную друг к другу, чаще всего предполагает рациональное использование средств как на возведение постройки, так и на последующее ее обслуживание.
Поскольку в последнее время дуплексами интересуются все чаще, ведущие строительные компании занялись активным проектирование всевозможных вариантов двойных домов. В результате сейчас любой будущий домовладелец может подобрать для себя наиболее подходящий готовый проект.
Выбор проекта дуплекса осуществляется с учетом всех основных факторов :
тип планировки;
этажность;
квадратура;
стеновой материал;
вид кровли.
Усложняется процесс выбора архитектурного решения тем, что оно должно полностью устраивать обе семьи, которые собрались делить общую крышу. Подходить должно все – расположение комнат, размер приусадебного двора, размер и форма окон, а также вид наружной отделки и кровельного материала. Внешне дом должен выглядеть как цельное архитектурное сооружение, с единым гармоничным дизайном.
На нашем сайте Вы можете ознакомиться с самыми от строительных компаний, представленных на выставке домов «Малоэтажная Страна».
Дуплекс «под ключ»: что предлагает рынок
Главное преимущество коттеджа на две семьи в том, что расходы на строительство распределяются между будущими владельцами, плюс, есть возможность сэкономить какую-то часть средств при отделке или инженерных работах. Чтобы получить жилье с еще большей экономией, быстрее, и при этом вообще не вникать в вопросы стройки, имеет смысл заказать строительство дуплекса под ключ. В этом случае все этапы возведения здания, включая подготовку проекта и заканчивая уборкой в комнатах с отделкой, берет на себя строительная компания.
Заключая договор о строительстве под ключ, заказчик точно знает, когда дом будет готов к вселению, и во сколько обойдется весть строительный и отделочный процесс. Это сводит к минимуму риски незапланированных расходов и простоя стройки.
Строительные компании предлагают своим клиентам как VIP-решения, так и просто качественные архитектурные разработки дуплексов – проекты домов на две семьи эконом класса.
Так как в штате компаний, предлагающих строительство «под ключ» есть разнопрофильные специалисты, то за счет комплексности они могут предложить клиентам выгодные условия. Если одна компания выполняет все проектные, строительные, инженерные и отделочные работы, то вам остается только периодически контролировать весь процесс, а для этого вполне достаточно отчетов от технадзора. По окончании всех работ вы получаете жилой дом, полностью готовый к заселению.
Особой популярностью сейчас пользуются дуплексы, построенные по каркасной технологии или из сип-панелей. Эти два варианта строительства отличаются от остальных минимальными затратами и высокой скоростью возведения. Но надо помнить, что коттеджи из этих материалов становятся комфортными и долговечными только при условии соблюдения технологии строительства, а значит, выбор грамотной строительной компании остается на первом плане.
Видео описание
Что такое современные дуплексы, в следующем видео:
Примеры проектов дуплексов
Построить красивый и удобный дуплекс под ключ можно по любому готовому проекту.
Главное, чтобы он соответствовал условиям участка, на котором планируется строительство и потребностям будущих жильцов.
На нашем сайте Вы можете найти контакты строительных компаний, которые предлагают . Напрямую пообщаться с представителями можно посетив выставку домов «Малоэтажная Страна».
Проект двухэтажного компактного дуплекса
Данный дуплекс – это дом с рациональной планировкой, в которой есть все необходимое, и нет ничего лишнего. Такой коттедж станет идеальным жильем для двух небольших семей. Блоки двух соседских квартир в этом варианте запроектированы простой прямоугольной формы, но при этом они немного смещены относительно друг друга, что обеспечивает более эстетичный вид здания. Отсутствие архитектурных излишеств делает проект достаточно экономным.
На первом этаже предусмотрена дополнительная комната. Ее можно использовать в качестве еще одной спальни или второй гостиной. Эта комната расположена непосредственно у входа, поэтому она может стать идеальным кабинетом для приема клиентов на дому.
Важным преимуществом проекта является наличие трех полноценных просторных санузлов, в то время как многие другие разработки имеют только одну ванную комнату на втором этаже и один санузел с умывальником и унитазом в гостевой зоне. Выбирая проект такого типа, следует обратить внимание на то, что в нем нет гаража. Он подойдет таким семьям, которым для автотранспорта не нужно специального помещения, а достаточно просто навеса рядом с домом.
Проект дуплекса с эркерами
Этот дом более сложный по конфигурации, и в строительстве он получится немного дороже. Зато он будет значительно эффектнее выглядеть. Интерьер помещений в эркерах тоже смотрится достаточно оригинально и привлекательно.
В доме предусмотрена общая котельная, что позволяет сэкономить пространство. Прихожая запроектирована довольно просторной, и может стать дополнением гостиной.
Кухня здесь – это отдельное изолированное помещение. При открытой планировке, когда кухня совмещена с гостиной, жилище выглядит более просторным и комфортным.
Зато отдельная кухня позволяет защитить гостевую зону от запахов готовящейся еды.
Проект дуплекса с гаражом
Архитектурное решение дома на 2 хозяина с гаражом. Гараж расположен немного ниже уровня помещений первого этажа. Это обеспечивает повышенную защиту жилой части дома. Однако углубление гаража может удорожить возведение здания.
Плюсы этого проекта:
компактная терраса, отделенная от соседей выступом гаража;
есть тамбур, отделяющий входную дверь;
кухня-гостиная запланирована единым помещением;
предусмотрен выход на задний двор;
есть балкон.
К минусам можно отнести тот факт, что гараж «съедает» пространство прямо по центру дома. Зато при таком расположении гараж не нуждается в отоплении, так как будет обогреваться за счет примыкающих жилых помещений. На втором этаже запланирован кабинет. Он может быть переоборудован в компактную спальню или гостевую.
Видео описание
3D проект дуплекса с гаражом смотрите в видео:
Проект дуплекса с цоколем
Трехуровневый коттедж на 2 семьи.
Здесь предусмотрен цокольный этаж, в который вынесены все технические помещения – гараж с мастерской, хранилище, котельная. Наличие цоколя повышает удобство проживания, но и делает строительство дома более затратным.
В этом доме запланировано общее крыльцо и примыкающие лоджии. Он подойдет для проживания одной большой семьи с раздельным ведением домохозяйства. Например, одну квартиру дуплекса могут занять пожилые родители, а вторую – их дети с внуками.
Важный нюанс – в доме под санузлы отведено минимум места, при этом холл второго этажа довольно просторный. Нельзя сказать, что такая планировка нерациональна, но на ее особенности нужно обратить внимание.
Проект просторного дуплекса
Солидный респектабельный дуплекс. В нем присутствуют некоторые особенности, которые нужно учитывать при выборе.
Гаражи максимально отнесены от центра здания, и представляют собой дополнительную защиту помещений от теплопотери.
На входе предусмотрена двойная буферная зона, которая заодно отделяет гараж от жилых помещений.
Гостиная запроектирована очень просторной.
Кухня-столовая может быть полностью отделена от гостиной.
В доме есть две угловые террасы – верхняя и нижняя.
На первом и втором этаже предусмотрены гардеробные комнаты.
Этот дом станет отличным жильем для большой семьи, ценящей комфорт. Жилое пространство распределено очень грамотно и лаконично.
Заключение
Проекты дуплексов представляют собой основу для строительства полноценного современного частного жилья. При их создании учитывается специфика проживания рядом с соседями, предусматривается соответствующая планировка и хорошая звукоизоляция. При удачном выборе проекта и соседей, домовладелец получает жилище, в котором совмещены преимущества квартиры и загородного коттеджа.
PR-2006-2
PR-247
PR-2190
PR-2189-2
PR-2189
PR-2027
PR-2019
PR-2176
Преимущества дуплексов
В советские времена в сельской местности довольно популярными были дома, рассчитанные на 2 семьи.
В наше время эта тенденция вновь приобретает популярность. Дуплекс — это что-то среднее между коттеджем и таун-хаусом. Такие дома чаще всего состоят из 2 отдельных входов, в каждой части дома есть своя кухня, спальня, санузел. Соседей объединяет лишь общая стенка и участок при доме.
В нашем каталоге представлены двухэтажные и одноэтажные проекты домов на две семьи разных типов. Дома различаются по площади, этажности и материалу несущих стен. Одним из самых популярных вариантов являются дуплексные проекты домов на две семьи с мансардой и гаражом. Сейчас это наиболее актуально, потому что практически у всех любителей загородной жизни есть свои автомобили, для хранения которых требуется наличие отапливаемого гаража.
В зависимости от потребностей и количества проживающих человек, можно выбрать на сайте необходимый тип дома. У нас есть как одноэтажные, так и двухэтажные варианты разной площади. Дуплексы также отличаются по методике строительства — это, в основном, каркасные, газобетонные или бревенчатые дома.
Неоспоримым плюсом дуплекса является то, что такой вариант намного экономичнее отдельного дома. Построить один дом с двумя разными входами намного дешевле, чем возвести два отдельных строения. Уменьшение стоимости происходит также на экономии в подведении и подключении коммуникаций. Выгодным можно считать и эксплуатацию такого дома, ведь обогреть один большой дом проще, чем 2 отдельно стоящих строения.
Дуплексы пользуются популярностью у родственников. Например, довольно часто такие дома строят брат с сестрой для своих семей. Это удобно тем, что родные и близкие постоянно видятся, общаются между собой, но их быт разделен. Также дуплексы могут быть интересны закадычным друзьям, решившим обзавестись семьей.
Следует иметь в виду, что процедура оформления дома и участка в собственность немного отличается от привычной. Особенно это касается земли. Прежде, чем строить такой дом, рекомендуется заранее ознакомиться с практикой оформления собственности.
Наши проекты домов на две семьи разработаны профессионалами с учетом всех необходимых норм в сфере строительства.
Возводить дома по нашим проектам легко и просто, также не возникает проблем с оформлением собственности и подключением коммуникаций.
«Проекты домов на две семьи: ТОП-5. Мы выбираем дома на две семьи
Проект дома на две семьи M225b — Городские огни — вариант II: вид на садМы выбрали 5 лучших проектов домов для двух семей. Нелегко согласовать потребности двух независимых домохозяйств в одном здании. В дополнение к необходимому жилому пространству, также важно обеспечить чувство конфиденциальности. Смотрите наши предложения для домов на две семьи.
Выбрать дизайн дома всегда сложно. Когда мы решаем разделить здание, мы обременены некоторой ответственностью и необходимостью принимать еще более трудное решение. Все вопросы, которые учитываются при стандартном планировании дома при выборе проекта дома для двух семей, являются более сложными, потому что вы также должны учитывать разумное разделение полезной площади на две фермы. Что это включает? Как правильно выбрать проект дома на две семьи? Мы должны учитывать количество, возраст и потребности обоих членов семьи.
Маленькие дети имеют свои собственные требования, пожилые люди могут также нуждаться в определенных условиях жизни. Мы должны переосмыслить количество и расположение ванных комнат, возможные отдельные кухни, гаражные места, отдельную террасу и, наконец, конфиденциальный доступ к каждой из зон. При выборе дизайна дома для двух семей не стоит забывать об акустике здания. И все это должно идти рука об руку с его эстетикой. Крепкий орешек, но я думаю, что у нас есть несколько идеальных типов домов на две семьи.
Проект дома на две семьи: M225b — Городские огни — вариант II
Двухэтажный дом с двумя одинаковыми помещениями, общей площадью 199, 9 м2 (2х999, 95 м2).
Преимущества проекта:
- Дом разделен на две независимые части
- два гаража
- простая, симметричная планировка, простая и дешевая сборка
Подробнее о проекте: M225b — Городские огни — вариант II >>>
Проект дома на две семьи: M225b — Городские огни — вариант II Ссылка: Проверьте детали дизайна дома: M225b — Городские огни — вариант IIПроект двухэтажного дома M225b — Городские огни — вариант II — это предложение типичного двухкомнатного дома, разделенного общей стеной, расположенной в центре.
Эта конструкция несложна в строительстве и не создает проблем, когда речь идет об обеспечении звукоизоляции. Общая крыша прекрасно скрепляет корпус, а симметричные фасады с деревянными и клинкерными вставками оптически увеличивают здание и придают ему тепло, не ставя под угрозу элегантность. Отдельные гаражи, два входа в дом, крытые террасы и даже отдельные балконы обеспечивают абсолютное чувство приватности для двух семей. Обе семьи имеют в своем распоряжении первый этаж, на котором расположена гостиная с мини-кухней и камином, а также этаж с большой ванной комнатой, двумя большими балконами и четырьмя спальнями. Этого достаточно даже для нужд больших семей, а если отдельные комнаты не нужны — их легко можно объединить в одну большую.
Смотрите также другие варианты дизайна этого дома:
- M225c — Городские огни — вариант III — двухкомнатный проект, без гаража, со спальней на первом этаже и тремя спальнями на первом этаже
- M225 — Городские огни — однокомнатный дизайн
- M225a — Городские огни — вариант I — однокомнатная версия, без гаража, одна спальня на первом этаже и три спальни на первом этаже
Проект дома на две семьи: EC372 — Обширный (с механической вентиляцией и рекуперацией)
Интересный дизайн двухэтажного дома, общей площадью 191, 3 м2 (144, 8 м2 + 46, 5 м2)
Преимущества проекта:
- независимые входы в отдельные помещения
- явная диспропорция полезной площади обеих частей
- дом на две семьи экономичный в эксплуатации
Подробнее о проекте: EC372 — Extensive (с механической вентиляцией и рекуперацией) >>>
Дом на две семьи с минималистской формой, с оригинальным фасадом, в котором сочетаются гладкая штукатурка, теплое дерево и необработанный клинкер.
Блок ловко проникает через обширный, раздробленный цокольный этаж и компактное ядро первого этажа, которое удачно впишется в семью из нескольких человек. На первом этаже находится очень большая дневная зона с затененной террасой, с открытой кухней, обеденной зоной и зоной отдыха, которую при необходимости можно превратить в дополнительную комнату. На входе также была расположена котельная, общая для всего здания, которая не должна быть большой из-за планируемого восстановления. Лестница, ведущая на второй этаж, представлена в слегка вытянутой лестнице, которая также закрывает вход в дом. Эта процедура позволила создать небольшой мезонин над первым этажом. Второе помещение в этом проекте дома для двух семей — это совершенно другое пространство, напоминающее двухкомнатный одноэтажный дом с собственной террасой. Он связан с основной частью только платформой перед входом — и, возможно, одним местом в гараже на две машины.
Ссылка: Проверьте детали проекта дома: М77 — Два мира >>>Проект дома на две семьи: M77 — Два мира
Этот проект представляет собой семиместный двухкомнатный дом с мансардой общей площадью 188, 5 м2 (134, 5 м2 + 54, 0 м2).
Преимущества проекта:
- компактная, но хорошо спланированная рабочая поверхность
- отдельные входы в обе части дома на две семьи
- очень большой чердак
Подробнее о проекте: M77 — Два мира
Хотя оба жилых пространства в дизайне дома для двух семей разделены стеной на первом этаже и отдельным входом для каждого, этот очаровательный дом ничем не отличается от типичного двухквартирного дома. Он рассчитан на две семьи, которые ценят уединение, но в то же время любят проводить время вместе на террасе. Различия в потребностях жителей были четко подчеркнуты. В одной части дома на две семьи есть очень удобная квартира для одного, молодой пары или бабушки с дедушкой. В их распоряжении уютная гостиная с выходом на общую террасу, закрытая кухня, спальная комната, выходящая в квартиру, полностью оборудованная ванная комната и умно обустроенная зона хранения в коридоре и коридоре.
Вторая часть дома предназначена для большой семьи с детьми. Существует просторная кухня, гостиная с камином и огромный чердак с четырьмя спальнями, включая главную спальню. Не спускаясь, вы также можете подышать свежим воздухом на одной из двух лоджий. Над гаражом остается неиспользуемое пространство для развития. Огромным преимуществом этого классического дизайна дома является его уютный, семейный характер, теплый фасад, он поощряет проводить время вместе, а хорошо спланированное деление дает возможность спрятаться в уединении.
Смотрите также вариант этого проекта дома с обслуживающей частью: M77a — Два мира >>>
Готовый дом на две семьи дизайн M08b — Есть ли погода — вариант II Ссылка: Проверьте детали дизайна дома: M08b — Есть ли погода — вариант IIПроект дома на две семьи: M08b — Есть погода — вариант II
Проект двухэтажного дома с мансардой, с отдельной частью первого этажа, общей полезной площадью 198, 8 м2 (146, 3 м2 + 52, 5 м2)
Преимущества проекта:
- общий интерьер с четким разделением на общественные и частные зоны
- гараж на две машины, соединенный с обеими частями дома
- удобный чердак
Подробнее о проекте: M08b — Есть ли погода — вариант II >>>
Хотя в дизайне нет отдельных отдельных помещений, интерьер дома явно подчеркивает разделенность двух взаимосвязанных жилых частей.
Это идеальное решение как для расширенной семьи, так и для растущих детей, которые становятся независимыми. Им была предоставлена двухкомнатная квартира с собственной кухней, большой террасой и дополнительным боковым входом с закрытым холлом. Из этой зоны также есть проход через котельную в общий гараж на две машины. Если жители хотят укрепить свои семейные узы, им просто нужно открыть дверь в своем коридоре и сразу же оказаться в открытом зале главной части дома. Существует большая открытая кухня с большой кладовой, столовая с красивым стеклянным эркером и гостиная с угловым камином и затененная терраса. Частная часть больших помещений планируется на чердаке. Четыре спальни и две отдельные ванные комнаты, а также низкие пространства, оставленные под углом, с возможностью развития складских помещений, удовлетворит потребности даже многих членов семьи всех возрастов. Мансардные окна дополняются двумя слуховыми окнами, а вертикальные окна на лестнице прекрасно освещают интерьер. Классический внешний вид здания также заслуживает внимания.
Приглушенный фасад хорошо вписывается в многочисленные окна, а многоскатная крыша с широким карнизом прекрасно соединяет корпус.
Смотрите также другие варианты дизайна этого дома:
- версия дома на одну семью: M08 — для любых погодных условий >>>
- версия дома на одну семью: EM08 — для любых погодных условий (с механической вентиляцией и рекуперацией) >>>
Проект дома на две семьи: M98b — Очаровательный уголок — вариант II
Двухкомнатный дом с мансардой, с меньшими помещениями, расположенными на чердаке (над гаражом), общей площадью 176, 6 м2 (136, 7 м2 + 39, 9 м2)
Преимущества проекта:
- отдельные входы в обе части дома
- компактный, энергоэффективный блок
- возможность легкого соединения обеих зон
Подробнее о проекте: M98b — Очаровательный уголок — вариант II >>>
Простой, даже минималистский дом на две семьи с чердачной линией с деревянным покрытием.
Два парадных входа, один из которых слегка втянут, ведут к двум независимым — хотя и соединенным котельной — жилым частям. Основная площадь дома включает в себя гостиную с камином и затененную террасу, кухню с кладовкой, ванную комнату и одну отдельную комнату. Еще четыре спальни, большая ванная комната и гардероб находятся на чердаке. Вторая жилая часть занимает только чердак. Тем не менее, все, что было необходимо для одиноких или молодых бабушек и дедушек, включая большую кухню, было сохранено там. Пожилые люди, которые не захотят пользоваться лестницей, могут через несколько лет перебраться на первый этаж в основной части, оставив весь чердак более молодым. Здесь предусмотрена возможность вставки дверей и соединения обеих частей в одну. Следовательно, использование зон мансарды и первого этажа изменится, но конфиденциальность останется. Этот дом развивается вместе с его обитателями.
Смотрите также другие варианты дизайна этого дома:
- версия для одной семьи, без гаража: M98 — Очаровательный уголок >>>
- Версия для одной семьи, выполненная в современном стиле: M98a — Очаровательный уголок — вариант I >>>
рассмотрим варианты планировки, этажности, конструктивных решений и внешнего вида
Постройка сооружения часто проводится при применении проекта.
Классические жилые сооружения имеют один вход, однако, в случае возведения сооружения на двух хозяинов подобный проект нельзя назвать подходящим. Разделение здания на две части проводится с созданием отдельных входов, что позволяет двум семьям жить с требуемым уровнем комфорта. Встречаются различные проекты домов на две семьи, развитие современных технологий позволило создавать фотографии на основе построенных чертежей.
Особенности и преимущества зданий на две семьи
Современные двухквартирные дома возводят в самых различных случаях. Чаще всего они требуются для жизни нескольких поколений семей. Подобный вариант удобен тем, что младшие всегда находятся рядом со старшими.
Рассматриваемые проекты более выгодные с экономической точки зрения. При возведении подобного сооружения расходы одной семьи существенно снижаются. К другим особенностям можно отнести следующее:
- Трудности возникают не только при возведении дома, но и при юридическом оформлении.
- Прежде чем начать строительство, следует получить соответствующее разрешение.
Подобный подход позволяет сэкономить время и деньги, т.к. наличие соответствующего разрешения позволяет избежать штрафных санкций. - Если нет требуемого опыта, рассматриваемый дом оформляются специалистами. Больше всего трудностей возникает при делении имущества, которое переходит в наследство. Установленные законы запрещают проводить деление участка.
- Дом с двумя входами часто создается в случае развода супругов. Это связано с тем, что после развода появляется два собственника. Исключением можно назвать брак, при котором заключается брачный контракт.
При оформлении сооружения на 2 хозяина каждый получает свидетельство о праве на владение домом и отдельное право на собственность земли. Этот способ позволяет каждому владельцу распоряжаться своим имуществом, свободно продавать его и передавать в наследство.
Для разделения коттеджа он должен соответствовать различным требованиям. Не всегда есть возможность создать отдельные входы для двух владельцев. В подобных случаях рекомендуется делать перепланировку сооружения.
Утвердить план можно в разных инстанциях. Построить дом без соответствующих документов не получиться. Оформление плана – трудная и долгая процедура. Еще больше трудностей возникает в случае перепланировки сооружения.
Виды конструкций
Встречаются самые различные проекты жилых сооружений на два хозяина. Поэтому есть возможность подобрать подходящий вариант исполнения под собственные нужды. Основной признак классификации заключается в количестве этажей, могут быть и дополнительные постройки: бани, гаражи, навесы.
Дом на две семьи должен иметь отдельные входы. Среди других особенностей отметим следующее:
- Возводится два крыльца.
- Для каждой части подводятся собственные коммуникации.
- Обе части разделены, но некоторые проекты предусматривают наличие общей кухни и ванной комнаты.
Разработкой проекта занимаются специалисты. Это связано с тем, что официальная документация представлена сочетанием чертежей и вспомогательных листков, а также фотографиями трехмерной модели сооружения.
Засчет визуализации проекта можно увидеть то, как примерно будет выглядеть сооружение после его возведения.
Одноэтажные
Проекты одноэтажных домов встречаются крайне часто, т.к. подобные сооружения проще возводить. В большинстве случаев комнаты располагают в зеркальном отражении, поэтому покупатели могут выбрать любую сторону. Классический вариант представлен сочетанием:
- двух спален;
- гостиной;
- кухни;
- столовой;
- санузла.
План дома с одним этажом предусматривает наличие только одной общей стены. При ее создании применяется большое количество изоляционных материалов. Благодаря этому, обе семьи будут чувствовать себя комфортно. Возводят ее часто из газобетона или кирпича.
В большинстве случаев сооружение оформляется в едином стиле, засчет чего не портиться общее впечатление. Внутри сооружения каждый владелец может проводить отделку при применении любых материалов.
Двухэтажные
Дом на две семьи под ключ с двумя этажами более привлекателен, т.
к. засчет дополнительной постройки увеличивается жилая площадь. При этом второй этаж может быть представлен полноценной постройкой или мансардным этажом. Второй вариант пользуется популярностью, т.к. он лишен недостатков. Планировка дом на 2 семьи характеризуется следующими особенностями:
- Мансарду можно использовать для размещения детской или спальни, игровой комнаты.
- Первый этаж используется для создания кухни, гостиной. Могут быть и другие функциональные комнаты.
Полноценное двухэтажное сооружение обходится намного дороже, однако, высокие потолки делают второй этаж более функциональным. Для больших семей этот вариант подходит лучше.
С гаражом
Автомобиль сегодня есть практически в каждой семье. Для его хранения требуется гараж, который располагается на первом этаже. Среди особенностей подобного сооружения можно отметить следующее:
- При расположении гаража на первом этаже при плохой погоде будет просто брать автомобиль.

- Подобная часть сооружения может быть расположена с любой стороны. Все зависит от особенностей применяемого проекта.
Проект эконом-класса не предусматривает создание гаража. Чаще всего возводится навес, т.к. он обходится намного дешевле.
С мансардой
Сооружение с мансардой встречается крайне часто. Оно обладает следующими особенностями:
- Второй этаж обладает скошенной крышей.
- В некоторых случаях в крыше создаются окна.
- Высота потолка может быть меньше, чем на первом этаже. Иногда ее делают больше.
Встречается большое количество проектов с мансардной. Второй этаж будет функциональным только при правильной и качественной изоляции строения при применении современных материалов.
Материалы постройки
В домах проектирования дуплекса могут применяться самые различные материалы. Главная задача – создать фундаментальную постройку, которая сможет прослужить в течение длительного периода.
Разработкой проекта должен заниматься исключительно опытный инженер, т.к. для обеспечения требуемой надежности нужно создать правильный фундамент. Современный дом на два хозяина возводятся при применении следующих материалов:
- пеноблоков;
- бруса;
- газобетона;
- кирпича;
- ракушечника;
- деревянной обрешетки.
При выборе материала следует учитывать его основные эксплуатационные качества, которые могут существенно отличаться. Преимущества и недостатки должны рассматриваться по причине того, что неправильно подобранный материал не сможет прослужить в течение длительного периода.
Кирпич
Дома на одном участке могут быть возведены при применении кирпича. Этот материал считается самым дорогим, но при этом обладает следующими свойствами:
- Прочность.
- Не подвергается воздействию окружающей среды. Долго служит.
Кирпичные сооружения могут прослужить в течение длительного периода. При этом часто не требуется наружная отделка, т.
к. кирпичная кладка выглядит привлекательно.
Ракушечник
Возвести дом с гаражом можно при применении ракушника. Этот вариант считается самым экономичным из всех представленных. Среди его особенностей отметим следующее:
- блоки большого размера;
- материал экологически чистый;
- получаемая кладка надежная.
Единственным, но существенным недостатком, можно назвать то, что материал быстро разрушается под воздействием влаги. Поэтому специалисты не рекомендуют выбирать ракушечник в случае, если климат слишком влажный.
Каркасные дома
За границей каркасные дома на две семьи получили широкое распространение, что связано с относительно невысокой стоимостью применяемых материалов. Особенностями сооружения подобного типа можно назвать следующие:
- все стены делятся на несущие и межкомнатные;
- каркас возводится при применении натурального дерева;
- в качестве фундамента часто возводится ленточная конструкция.

В интернете проекты каркасных домов можно скачать бесплатно. Подобные сооружения могут иметь два этажа и различные пристройки.
Блоки
Большое распространение получили сооружения из пенобетона и шлакоблока. Из подобного материала не рекомендуется возводить двухэтажные сооружения, потому что они обладают низкой несущей способностью. Особенностями можно назвать следующее:
- сооружение возводится быстро;
- материал обходится дешево;
- получающиеся стены ровные.
Возвести дом из подобного материала можно самостоятельно. Под одной крышей дома из блоков можно сделать практически любую планировку, т.к. стены обладают достаточной несущей способностью.
Брус
Распространенным материалом можно назвать брус. При его использовании получаются качественные сооружения, которые прослужат в течение длительного периода.
Дерево – натуральный материал. Он может создать в доме уютную атмосферу. Запах натуральной древесины благоприятно отражается на здоровье людей.
При выборе бруса следует учитывать следующее:
- Материал должен быть просушен. Использование влажной древесины становится причиной, по которой сооружение дает сильную усадку на момент эксплуатации.
- Поверхность бруса обрабатывается специальными защитными составами. Засчет этого эксплуатационный срок продлевается в несколько раз.
Правильно обработанная древесина выглядит привлекательно. При этом есть возможность провести отделку при применении других материалов.
Сайдинг
Распространенным отделочным материалом можно назвать сайдинг. Он требуется для защиты наружной или внутренней части. При изготовлении сайдинга применяется:
- Дерево. Деревянный сайдинг считается экологически чистым материалом. Для продления эксплуатационного срока поверхность часто обрабатывается специальными составами.
- Пластик. Подобный современный материал не реагирует на повышенную влажность и перепады температуры, может прослужить в течение нескольких десятков лет.

- Металл. Металлическая обшивка применяется крайне редко по причине высокой стоимости и большого веса.
Соединение отдельных панелей может проводится самым различным образом, часто на торцевой поверхности есть замок.
Планировка
Рассматриваемый двухквартирный дом хорош тем, что подходит для жизни родственников под одной крышей. Особенности планировки следующие:
- Позволяет сэкономить на строительстве. Возведение двух отдельных домов обойдется намного дороже, т.к. в рассматриваемом случае одна стена и коммуникации общие. Поэтому близкие родственники рассматривают возможность возведения подобного сооружения.
- На строительство уходит меньше времени. Это связано с конструктивными особенностями сооружений с двумя отдельными входами.
- Комфортно может проживать большое количество людей.
Планировка может существенно отличаться. В некоторых случаях есть общие помещения.
Зеркальная планировка
В большинстве случаев применяется зеркальная планировка.
Она обладает следующими особенностями:
- Входы располагаются напротив друг друга.
- Расположение комнат с обеих сторон повторяется.
- Окна и двери располагают зеркально.
Подобная планировка проще всего в исполнении, подходит для большинства случаев. В интернете встречается большое количество примеров исполнения подобного проекта.
Индивидуальная планировка
При наличии средств можно создать индивидуальную планировку на два входа, для чего обращаются в специальные компании, предоставляющие соответствующие услуги. Перед непосредственным обращением следует уделить внимание нижеприведенным моментам:
- Общей площади.
- Планировке.
- Количеству этажей.
- Наличию дополнительных пристроек. Если не планируется их возведение, об этом тоже необходимо сообщить.
Индивидуальная планировка позволяет получить сооружение, которое будет соответствовать всем требованиям.
Крыша
Важным элементом любого строения можно назвать крышу.
Проекты двухквартирных домов предусматривают следующее:
- В большинстве случаев создается двускатная крыша. Могут быть и другие конструкции, все зависит от формы сооружения и его других особенностей.
- В продаже встречается большое количество различных кровельных материалов, все они обладают своими особыми достоинствами и недостатками. При выборе нужно учитывать не только стоимость, но и то, кто будет проводить монтажные работы.
- Кровля должна быть защищена от воздействия окружающих факторов. Для этого применяются различные изоляционные материалы.
От правильности созданной конструкции крыши зависит многое. Поэтому разработку проекта рекомендуется доверять профессионалам.
Размеры дома
Рассматривая проект дома на 2 семьи нужно уделять внимание полезной жилой площади. От нее зависит следующее:
- Комфорт проживания. Также – удобную для всех планировку.
- Затраты на строительство и последующий ремонт.

- Величина платежей за электричество и газ.
Рекомендуется уделять внимание площади отдельных помещений. Гостиная должна быть просторной, спальня иметь окна.
Архитектурные элементы
Возводимый дом из двух частей может иметь большое количество архитектурных элементов. Они делают сооружение более привлекательным, выделяют его на общем фоне, но также усложняют монтажные работы и увеличивают их стоимость.
Приведенная выше информация указывает на то, что дом с двумя различными входами является практичным решением. Он обладает большим количеством привлекательных качеств, в интернете встречается большое количество проектов, которые используются в качестве основы при возведении сооружения.
встречайте первый многодверный холодильник – Samsung Newsroom Россия
На выставке CES 2022 компания продемонстрирует первый многодверный холодильник Bespoke, технику Bespoke для кухни, пылесос Bespoke Jet™, а также стиральные и сушильные машины Bespoke1
В обновленной линейке Bespoke персонализированный дизайн сочетается с уникальными технологиями.
Используя холодильник Bespoke в качестве центрального элемента интерьера кухни, пользователи могут выразить свой персональный стиль, дополнив помещение техникой для кухни, в том числе посудомоечной машиной, плитой и микроволновой печью белого, темно-синего или зеленого цвета. Производительный и стильный пылесос Bespoke Jet™ пригодится в гостиной, а стиральная и сушильная машины Bespoke сделают процесс стирки максимально простым благодаря технологиям искусственного интеллекта.
«Мы разрабатывали линейку Bespoke не только для кухни. Мы считаем, что пользователи должны иметь возможность менять интерьер всего дома в зависимости от своих предпочтений», – отметил Кан Хёп Ли, исполнительный вице-президент и глава отдела продаж и маркетинга подразделения цифровой бытовой техники в Samsung Electronics.
Многодверный холодильник Bespoke
Новый многодверный холодильник Bespoke выйдет в нескольких вариациях: 3-дверной, 4-дверной и Family Hub™.
Он сочетает в себе популярный дизайн с французской дверцей и широкие возможности для персонализации Bespoke. Дополняя существующую линейку холодильников Bespoke, в которую входят 4-дверный холодильник Bespoke Flex™, 2-дверный холодильник Bespoke с нижней морозильной камерой и 1-дверный холодильник Bespoke Flex Column, новинка гарантирует, что каждая семья найдет для себя подходящую модель Bespoke.
Многодверные холодильники Bespoke будут доступны в различных размерах, конфигурациях и цветах. Покупатели смогут выбирать из 12 цветов и двух вариантов отделки – стекло и сталь, – из которых можно составить тысячи комбинаций. В число доступных оттенков стекла входят White, Gray, Pink, Charcoal, Morning Blue, Clementine и Sunrise Yellow. Стальные панели выполнены в цветах Tuscan, Matte Black, Navy, Emerald Green и Stainless Steel.
Чтобы продукты дольше оставались свежими, новинки Bespoke получили инновационные технологии Samsung для хранения и охлаждения.
Отсек Beverage Center™ и двойной автоматический ледогенератор предоставляют быстрый доступ к прохладным напиткам, а отсек FlexZone™ поддерживает оптимальную температуру скоропортящихся ингредиентов.
Благодаря широкому спектру интеллектуальных функций модель Family Hub™ также развлекает пользователей и позволяет им оставаться на связи. В 2022 году холодильник Family Hub™ получит поддержку сервиса Samsung TV Plus2 , чтобы прямо на устройстве можно было смотреть бесплатный телевизионный контент и мгновенно переключаться на просмотр на других экранах, например, устройствах Galaxy и SmartTV Samsung.
В ряде регионов в 2022 году холодильники Family Hub™ также получат поддержку голосового помощника Alexa, а также сервисов Amazon3 , включая Amazon Music и возможность автоматически заказывать «умные» фильтры для воды. Функция View Inside также была усовершенствована: интеллектуальная камера внутри камеры распознает информацию на этикетках продуктов, чтобы пользователи могли просматривать содержимое холодильника, проверять сроки годности и многое другое.
Bespoke Jet™
Впервые представленный в 2021 году беспроводной пылесос Bespoke Jet™ выйдет на глобальный рынок в 2022 году и сделает инновационные технологии Bespoke доступными в гостиных.
С помощью пылесоса Bespoke Jet™ поддерживать чистоту в доме становится очень просто. Закончив уборку, устройство достаточно установить в док-станцию Samsung All-in-One Clean Station™, после чего пылесборник автоматически очистится, а пылесос начнет заряжаться.
Производительный, но легкий Bespoke Jet™ получил современный премиальный дизайн премиум-класса и предоставляет широкие возможности для уборки. Его мощность всасывания 210 Вт4 , а многослойная система фильтрации улавливает 99,999% мелкой пыли5 .
Пылесос доступен в цветах Midnight Blue, Misty White и Woody Green, благодаря чему его можно установить в любом месте, не нарушая эстетику помещения.
Стиральная и сушильная машины Bespoke
Стиральная и сушильная машины Bespoke делают уход за одеждой эффективным и интуитивно понятным.
Оба устройства имеют плоскую переднюю панель и доступны в нескольких цветах, в том числе черном и темно-синем.
Изучая привычки пользователя и режимы стирки, панель Smart Dial использует ИИ, чтобы определить часто используемые настройки и упростить стирку и сушку белья. Интеллектуальная функция AI OptiWash™ автоматически определяет нужный режим, время работы и количество моющего средства для каждой загрузки. А функция MultiControl™ позволяет управлять стиральной и сушильной машинами с одной панели, когда одно устройство установлено на другое.
Более подробная информация о линейке продуктов Bespoke доступна на сайте samsung.com/bespoke
1 Доступность устройств зависит от региона.
2 Доступность сервисов зависит от региона.
3 Доступность сервисов зависит от региона.
4 Мощность всасывания определена на основе стандарта IEC62885-2 Cl.
5.8, испытано на входе немоторизованного инструмента в режиме Jet. На основе тестирования SLG Prüf- und Zertifizierungs GmbH.
5 Протестировано на основе стандарта IEC 62885-2, CL.5.11 компанией SLG Prüf- und Zertifizierungs GmbH. Результаты могут отличаться в зависимости от фактического характера использования. Относится к частицам пыли размером от 0,5 до 4,2 мкм.
Семейный дом Ла Хойя | Калифорнийский университет в Сан-Диего Health
Знакомство с семейным домом La Jolla в UC San Diego Health
Семейный дом La Jolla в UC San Diego Health, открытый в октябре 2020 года, обеспечивает надежду и комфорт для семей с любимым человеком в долгосрочной перспективе. или интенсивной терапии в UC San Diego Health.
Семейный дом La Jolla является частью нового сообщества здорового образа жизни в нескольких минутах ходьбы от наших медицинских учреждений в La Jolla.
В рамках сообщества Калифорнийского университета в Сан-Диего, где живут и учатся, наши гости могут испытать совместную среду, которая включает в себя студенческое общежитие, фитнес-центры, рестораны и сообщество поддержки, которое поможет им в трудные времена.
A La Jolla Family House Actions:
- 25 номеров
- 15 Меблированные апартаменты с двумя спальнями с полной кухней
- 2-дюймовые номера
9002 - 2-дюймовые номера
- Community Lounges
- Community Commonital Kitchen
- Обеденная комната
- Прачечная и общее общение
- Вспомогательные услуги
- Сад спокойствия
Возможности для партнерства
Благодаря этому новому захватывающему проекту у дальновидного партнера появляется возможность помочь создать гавань надежды и утешения еще большему количеству нуждающихся семей.Семейный дом La Jolla предлагает заметную возможность назвать подарок в размере 10 миллионов долларов и шанс присоединиться к престижной группе филантропов, которые оказали преобразующее влияние на здоровье нашего сообщества.
Кроме того, благотворительный дар в честь этого дома создаст наследие надежды и исцеления, которое вдохновляет наше сообщество, гарантируя, что наши пациенты и их семьи получат наилучший комплексный уход.
Узнайте больше о семейном доме La Jolla и некоторых наших
возможности именования.
Для получения дополнительной информации о возможностях благотворительной деятельности обращайтесь:
Джули Бронштейн, исполнительный директор по развитию, UC San Diego Health
Denise Capozzi, директор Family Houses в UC San Diego Health
[email protected]
619-543 -7978 (только благотворительные запросы)
Если вы являетесь членом семьи или пациентом, нуждающимся в помощи, звоните 619-543-7977 (Bannister Family House) или 858.249.4800 (La Jolla Family House).Спасибо!
Дом Эдгертона | Отдел студенческой жизни
Edgerton House (NW10) находится примерно в 0,5 милях от главного входа в Массачусетский технологический институт по адресу 77 Massachusetts Avenue.
Он расположен в северо-западной части кампуса. Building NW10
143 Albany Street
Cambridge, MA 02139
(617) 253-4954
Посетите веб-сайт Edgerton House
ВАЖНО: Строительство кампуса и/или проект, связанный с жильем, могут повлиять на работу Edgerton House в течение 2021–2022 учебного года.
Edgerton House — это переоборудованный склад, в котором есть ряд единиц квартирного типа для одного, двух, трех или четырех человек. Каждая комната в каждом блоке отличается.
Квартиры для трех и четырех человек однополые, но по запросу могут быть разделены квартиры для двух человек. Планы этажей можно посмотреть на http://floorplans.mit.edu. Примечание. Для доступа к этому сайту вам потребуются сертификаты MIT.
| Информация о квартире | |||
| Тип устройства | Приблизительный размер | Номер | Описание |
4-комнатная кв.![]() | 1100 квадратных футов | 20 | Четыре жильца делят квартиру с одной ванной комнатой, одной ванной комнатой, гостиной и кухней. У каждого жильца есть отдельная спальня. |
| 3-комнатная кв. | 750 футов | 72 | Квартира на троих с одной ванной комнатой, гостиной и кухней. У каждого жильца есть отдельная спальня. |
| 2-комнатная кв. | 820 сф | 72 | В квартире с одной ванной комнатой, гостиной и кухней живут двое жильцов.У каждого жильца есть отдельная спальня. |
| эффективность кв. | 379 СФ | 2 | Частная квартира для одного человека или пара* с ванной комнатой и кухней. |
| 1-комнатная кв. для пар | 585 СФ | 7 | Частная квартира для пары * с ванной комнатой, гостиной и кухней. |
| 1-комнатная кв. | 585 СФ | 10 | Частная квартира на одного человека с ванной комнатой, гостиной и кухней.![]() |
*Прежде чем въехать, пары должны предоставить документы, подтверждающие наличие семьи.
Каждый блок с центральным кондиционированием.
Обратите внимание: Во всех номерах есть ковровое покрытие от стены до стены.
Коммунальные услуги включены в ежемесячную арендную плату.
Все квартиры без мебели. Кухни оборудованы холодильником и плитой. (Посуда и расходные материалы не предоставляются.)
Удобства в здании:
- небольшие зоны отдыха на каждом этаже
- большая гостиная для занятий
- большая гостиная с телевизором с большим экраном, звуковой системой и бильярдным столом
- комната для занятий музыкой
- фитнес-центр
- открытый двор и площадка для барбекю
ВАЖНО: Домашние животные запрещены в любом общежитии для студентов и выпускников, если специально не указано иное.
Пожалуйста, ознакомьтесь с полной политикой для получения дополнительной информации.
новых модельных домов Toll Brothers, открытых в 2021 году: свежий дизайн, лучшие места
Последнее обновление: 17 ноября 2021 г.
Когда дело доходит до выбора дома своей мечты, покупатели хотят что-то, что выглядит и чувствует себя идеально. Компания Toll Brothers известна качеством, мастерством и изысканностью, которые отличают ее дома на различных рынках по всей стране. Профессионально продаваемые модели домов компании — это место для покупателей жилья, ищущих роскошную жизнь и самобытную архитектуру в населенных пунктах по всей стране.Они демонстрируют последние тенденции дизайна, демонстрируя, что возможно в доме мечты.
Найдите вдохновение в новых моделях домов, которые Toll Brothers открыли в 2021 году, и проверяйте каждый месяц, чтобы увидеть новейшие дополнения. Кроме того, обязательно ознакомьтесь с нашим ассортиментом проектов домов 2020 года.
Аризона
Применяя современные линзы к традиционным испанским, средиземноморским стилям и стилям середины века, Аризона демонстрирует широкий спектр одноэтажных ранчо и двухэтажных домов.Отражая современный стиль пуэбло с плоскими крышами и современными линиями, наша архитектура Аризоны использует землистые тона, вдохновленные пустыней, чтобы сочетать современную роскошь с природным окружением. Вы даже все еще найдете влияние Фрэнка Ллойда Райта в популярных домах в стиле прерий.
Дома последней модели:
The Savannah включает в себя универсальную спальню на первом этаже, яркую и открытую планировку этажа и желаемый чердак в центре спальни наверху.
Привлекательный передний двор отеля Catalan и крытый вход излучают привлекательность, перетекая в светлое фойе с видом на столовую, большую комнату и желаемое крытое патио за ним.
Калифорния
Идеальное отображение современных средиземноморских особняков, эти дома предлагают современный стиль дизайна.
Калифорнийская архитектура, сочетающая в себе открытую концепцию жизни в помещении и роскошную жизнь на открытом воздухе, призвана дополнить вашу жизнь. В Калифорнии вы найдете удобные переходные пространства от внутреннего к открытому, так что вы проводите на улице столько же времени, сколько и внутри.
Дома последней модели:
Хорошо спроектированная кухня для гурманов Aliso занимает центральное место в просторной большой комнате, столовой и большом крытом балконе, а также в комплекте с большим центральным островом с барной стойкой, большим количеством рабочей зоны и шкафа.
Просторный таунхаус Brody Elite с привлекательным крытым входом и гостеприимным фойе открывает просторную большую комнату и непринужденную обеденную зону с выходом на задний двор.
Очаровательный дизайн таунхауса Cameo имеет уютную крытую веранду и гостеприимное фойе, открывающее просторную большую комнату и вид на желанную заднюю палубу за ней.
Особенности отеля Delmar включают просторный лофт, удобную туалетную комнату и расположенную в центре прачечную на втором этаже; просторная веранда на третьем этаже; и ванная комната с двойной раковиной и дополнительным местом для хранения на первом этаже.
Массачусетс
Toll Brothers представляет современный подход к дизайну Новой Англии с красивыми новостройками в самых популярных местах Большого Бостона, от проектов просторных домов с двухэтажными вестибюлями на участках площадью до 1 акра до изысканных проектов таунхаусов в стиле кареты с люксы с основными спальнями на первом этаже.
Дома последней модели:
- Davis – Enclave at Boxborough
Привлекательная крытая веранда и фойе отеля Davis с лотковым потолком сразу же выходят в светлую гибкую комнату, откуда открывается вид на просторную непринужденную столовую и большую комнату с лотковым потолком и выходом на задний двор.
Роскошный современный дизайн. Привлекательный вход Wetherbee с боковым навесом и впечатляющее двухэтажное фойе сразу же выходят в просторную большую комнату с подвесным потолком и непринужденной обеденной зоной с выходом на задний двор.
Мичиган
В то время как тонкие землистые тона здесь являются нормой, более темные, смелые цвета становятся предпочтительным стилем.
Toll Brothers привносит характерную, отмеченную наградами архитектуру и качественное мастерство в самые желанные районы Мичигана, предлагая роскошные таунхаусы в малообслуживаемом поселке курортного класса, дома на ранчо на одну семью в частном лесном анклаве, потрясающие проекты домов размером с поместье. сайты и другие исключительные возможности.
Дома последней модели:
Городской стиль люкс. Приветственный вход и фойе Berks выходят в просторную столовую, большую комнату и желаемый крытый внутренний дворик за его пределами. Хорошо спроектированная кухня выходит на светлую столовую с непринужденной обстановкой и оснащена большим центральным островом и большим количеством рабочей зоны и шкафа.
Нью-Джерси
мечта пассажира, современная инфраструктура Нью-Джерси позволяет легко путешествовать в соседние штаты и обратно по дорогам, железным дорогам, аэропортам и водным путям.Для тех, кто работает в Большом Яблоке, Нью-Джерси предлагает широкий выбор тихих пригородных районов, удобных для Нью-Йорка, но предлагающих более непринужденный образ жизни и гораздо больше места как внутри, так и снаружи.
Нью-Джерси также расположен недалеко от Филадельфии, еще одного места с лучшими местами работы и образования, что делает его естественным выбором для тех, кто ездит на работу в Город братской любви.
Дома последней модели:
- Carlough – Village Springs at Montvale
Современный дизайн таунхауса.Привлекательное фойе отеля Carlough ведет в большой зал открытой планировки и столовую. Хорошо спроектированная кухня имеет большой центральный остров с барной стойкой, много места для прилавка и шкафа, кладовую и прилегающую столовую с выходом на террасу.
- Dansfield – The Grove at Upper Saddle River
Современный дизайн таунхауса. Привлекательное фойе отеля Dansfield ведет в большой зал открытой планировки и столовую. В хорошо спроектированной кухне есть большой центральный остров с барной стойкой, много места для прилавка и шкафа, прилегающая непринужденная обеденная зона и вместительная кладовая.
Современный роскошный стиль.
Привлекательный крытый вход в Amberley и впечатляющее двухэтажное фойе открывают вид на красивую точеную лестницу, а также виды на непринужденную столовую и парящую большую комнату с выходом на задний двор.
Роскошный семейный стиль. Впечатляющая крытая веранда Bexley Grand и вход перетекают в двухэтажное фойе, открывая просторную гибкую комнату, двухэтажную непринужденную обеденную зону и вид на парящую большую комнату с выходом на задний двор.
Пенсильвания
Пенсильвания, где в 1967 году была основана компания Toll Brothers, пережила эволюцию стилей архитектурного дизайна.Сочетая традиционные стили с ремесленными и современными деталями фермерского дома, Пенсильвания демонстрирует каменную и кирпичную кладку с металлическими акцентами на крыше, современной отделкой, кронштейнами и слуховыми окнами.
Дома последней модели:
Кухня Lynford доступна из большой комнаты с выходом на задний двор, что делает ее прекрасным местом для развлечений.
Гостеприимное фойе Деклана выходит в светлую обеденную зону и просторный большой зал.
В основной спальне отеля Northbrook Elite есть массивная гардеробная и основная ванна в стиле спа.
Привлекательный вход в Marbury ведет к впечатляющему двухэтажному фойе и красивой лестнице, откуда открывается вид на столовую открытой планировки и большую комнату за ней.
Привлекательная крытая прихожая и фойе The Haring открывают просторную большую комнату и столовую на жилом этаже открытой планировки. Хорошо оборудованная кухня подчеркивается большим центральным островом с барной стойкой, большим количеством рабочего места и шкафа, а также кладовой.
Вирджиния
Главный пример современного фермерского дома и современного стиля, дизайн дома Вирджинии демонстрирует чистые линии, современную отделку, крутые фронтоны и крыльцо с металлической крышей.От металлических навесов и каменной кладки с дощатыми рейками или сайдингом до крутых фронтонов и привлекательных передних крыльцов — Вирджиния стала пионером в этом архитектурном стиле.
С добавлением интегрированных вариантов для жизни на открытом воздухе вы найдете яркую энергию, не имеющую себе равных на этом рынке.
Дома последней модели:
Большая комната The Foggy Bottom, непринужденная обеденная зона и крытое жилое пространство на свежем воздухе удобны для кухни для гурманов, что делает его идеальным домом для развлечений.
Изысканная кухня NoMa с центральным островом выходит на столовую и большую комнату с выходом в крытую гостиную на открытом воздухе.
Вашингтон/Орегон
Используя широкий спектр стилей, от традиционного северо-западного побережья до современного, архитектура Вашингтона и Орегона остается верной местному мастерству, которым славится тихоокеанский северо-запад. Этот регион представляет собой воплощение дизайна и стиля: от традиционного каменного и сайдингового сайдинга с отделкой, подчеркнутой кронштейнами, до современных стилей, в которых сочетаются такие материалы, как сайдинг, дерево или камень, с четкими линиями и контрастными горизонтальными и вертикальными архитектурными элементами, такими как наклонные крыши.
Здесь вы также найдете современный подход к дизайну фермерских домов, который выходит на рынок, включая дощатый и реечный сайдинг, металлические крыши и веранды.
Дома последней модели:
Красивый Silverton одновременно вневременной и инновационный, с просторным большим номером и крытым балконом, который отлично подходит для развлечений.
Привлекательная крытая прихожая и фойе отеля Montlake Elite ведут по уютной лестнице на второй этаж, открывая просторную комнату, обычную обеденную зону и большой крытый балкон.
Toll Brothers предлагает захватывающие, современные и изысканные роскошные проекты домов сообществам по всей территории США. Кроме того, Toll Brothers предоставляет покупателям возможность персонализировать детали и функции, чтобы каждый дом чувствовал себя совершенно уникальным и полностью вашим. Узнайте больше на TollBrothers.com и не забудьте ознакомиться с нашей коллекцией моделей домов 2020 года.
Хотите повысить стоимость своего дома? Начните со входа.
Вход в ваш дом часто является его публичным лицом, сообщая миру о вашем чувстве стиля. Это также пространство перехода, которое может быть привлекательным или запрещающим — источником удовольствия или разочарования.
«Я думаю об этом как о комнате на открытом воздухе, и это первая комната, с которой вы соприкасаетесь, которая закладывает основу для всего, что вы собираетесь испытать в доме», — сказал Скотт Дж. Соттайл, партнер Ferguson. & Shamamian Architects, нью-йоркская фирма, чья последняя книга «Сотрудничество: архитектура, интерьеры, ландшафты» будет опубликована в следующем месяце.
Таким образом, по словам г-на Соттайла, правильный дизайн «невероятно важен».
Парадный вход также является местом, где несколько недорогих изменений могут повысить общую стоимость дома. «Мы думаем, что привлекательность бордюра напрямую увеличивает стоимость недвижимости», — сказал Прентис Хейл, директор архитектурной фирмы Shed из Сиэтла.
На самом деле, согласно недавнему исследованию, опубликованному в Journal of Real Estate Finance and Economics, одна только апелляция на ограничение может составлять до 7 процентов от продажной цены дома.
Так что хорошо иметь красивый парадный вход, но есть и сильный финансовый стимул. Г-н Хейл и другие архитекторы и дизайнеры дали несколько советов о том, как действовать дальше.
Снять краску
Принято считать, что покраска — один из самых простых и наименее затратных способов преобразить комнату. Но «легко» — понятие относительное и не учитывает часов, необходимых для подготовки, грунтовки и покраски четырех стен и потолка.
Покраска входной двери — более выполнимая задача. Чтобы быстро придать парадному входу новый вид, покрасьте дверь в цвет, отличный от остальной части дома и отделки, сделав ее центром внимания.
«Это то, что заставляет глаз останавливаться, поэтому вы говорите: «Да, это то место, куда я должен идти», — сказал мистер Соттайл. «Это может быть сильный, контрастный цвет или забавный цвет», — сказал он, например, ярко-красный или желтый. «Или, может быть, это сочная зелень, чтобы гармонировать с насаждениями.”
Даже если вы выберете приглушенный цвет, изменение блеска может сделать дверь особенной.
Филип Горриван, дизайнер интерьеров из Нью-Йорка, покрасил дверь своего лондонского таунхауса в глянцево-черный цвет, чтобы она выделялась. «Мне нравятся лакированные двери, — сказал мистер Горриван. «Это добавляет немного индивидуальности».
Если вы настроены более амбициозно и у вас есть крыльцо, рассмотрите возможность покраски потолка. Это может быть традиционный светло-голубой, давно популярный в южных штатах, таких как Южная Каролина и Джорджия, или что-то неожиданное, например, светло-желтый, говорит Линдсей Анион Брайер, основатель Anyon Interior Design в Сан-Франциско.
Но выберите «действительно тонкий оттенок», посоветовала мисс Брайер, «чтобы было немного цвета».
Замена освещения
Освещение вокруг входной двери может сделать больше, чем просто обеспечить безопасность и помочь найти замок ночью — оно должно создавать настроение.
«Вы не хотите, чтобы сигнальная лампа безопасности горела, когда вы проходите через парадный вход», — сказала Бет Уэбб, дизайнер интерьеров из Атланты. «Внешнее освещение невероятно важно. Вы хотите, чтобы это мягкое сияние.
Большой подвесной фонарь — хороший способ обеспечить общее освещение во время выступления, сказала г-жа Уэбб, как и пара настенных фонарей.
Выбирая подобные декоративные светильники, тщательно продумайте масштаб. Светильники, которые выглядят большими в магазине или внутри вашего дома, могут иногда казаться крошечными, когда вы выносите их на улицу. В зависимости от размера дома чем больше, тем лучше.
При выборе уличных фонарей чем больше, тем лучше, как это видно на входе в дом в Кенвуде, Калифорния.
, с интерьером от Anyon Interior Design. Кредит… Пол ДайерТогда поищите способы добавить акцентное освещение. «Мне всегда нравится наслаивать освещение», — сказала г-жа Брайер. Варианты включают в себя ступенчатые светильники над лестницей, светильники, освещающие текстурные стены светом, ландшафтное освещение и фонари-свечи.
Мистер Горривант установил ландшафтное освещение в кашпо по обеим сторонам входной двери своего лондонского таунхауса, а мистер Соттайл использует свечные фонари в своем доме. По его словам, когда они оснащены светодиодными свечами на батарейках со встроенными таймерами, они могут обеспечивать беспроблемное освещение каждую ночь.
Растение
Размещение нескольких контейнеров с зеленью вокруг входа — простой способ сделать его более привлекательным. «Всегда важно просто положить немного растительного материала, будь то самшит, бугенвиллия или что-то еще», — сказала г-жа Уэбб.
Одним из способов добавления контейнеров является установка соответствующей пары высоких горшков или урн по обеим сторонам передних ступенек.
Для более непринужденного подхода поставьте два или три горшка разного размера по одну сторону от входной двери.
«Даже если у вас очень строгий дом, урны с разбросанными растениями сделают его немного более дружелюбным», — сказал мистер Соттайл. «Вы добавляете вещи, которые привносят жизнь и мягкость».
Мисс Брайер ищет растения, которые не только внешне привлекательны, но и приятно пахнут. Иногда она наполняет кастрюли у входной двери розмарином для придания зелени и приятного аромата, а также удобного запаса для приготовления пищи.
Добавить насест
Если у вас просторное крыльцо, на нем может быть место для полностью меблированной зоны отдыха.Но даже при небольшом входе обычно можно добавить один маленький табурет, стул или скамейку, выполняющую несколько функций.
«Это не должно быть таким надуманным, как целое расположение сидений», — сказала г-жа Брайер. «Это может быть пень или какой-то пьедестал, который обеспечивает импровизированное место, чтобы присесть».
Такая поверхность — например, табурет из керамики, тикового дерева или металлической сетки — предлагает место для сидения во время случайных встреч, когда гости приходят и уходят, и служит местом, где можно бросить сумки и пакеты, — сказала г-жа К.Уэбб, который поставил компактную скамейку из искусственного дерева на крыльце клиента именно для этой цели. «Когда они разгружают машину, там есть скамья, на которую можно положить пакеты и багаж», — сказала она.
Обновите фурнитуру
Многие домовладельцы улучшили внешний вид старых кухонных шкафов или туалетных столиков, заменив фурнитуру, и тот же метод можно использовать для модернизации входной двери.
«Ваша фурнитура для входной двери очень важна, — сказала мисс Уэбб. «Это твой восклицательный знак.”
Если у двери переходная ручка из сатинированного никеля, но вы хотите, например, более современный вид, замените ее на матово-черную с четкими линиями. Если вы хотите больше характера, рассмотрите традиционную латунную или бронзовую ручку с замысловатыми деталями или ручку ручной работы.
Но не останавливайтесь на ручке: мистер Горриван часто рекомендует установить характерный дверной молоток для дополнительного визуального интереса. «Они могут быть замечательными, причудливыми и необычными», — сказал он.
Бежевая дверь, большие фонари и подстриженные самшиты создают привлекательный вход в дом 18-го века, отреставрированный мистером Горриваном. Фото… Джошуа МакХью фигурка лошади, которую г-жа Уэбб установила рядом с дверью дома в Южной Каролине.Номера домов также заслуживают внимания. «Часто о них забывают», — сказал мистер Хейл, но их следует выбирать и размещать с такой же тщательностью, как и любой другой декоративный элемент.Для некоторых проектов Shed фирма разрабатывает индивидуальные металлические панели с цифрами, нанесенными гидроабразивной резкой; для других архитекторы выбирают современные номера, установленные на приподнятых столбах, создавая удлиненные тени.
Раскатайте приветственный коврик(и)
Он называется приветственным ковриком не просто так: небольшой коврик, положенный перед входной дверью, является привлекательным жестом, который позволяет оттирать грязь с обуви.
«Вы можете наносить на них монограмму или логотипы, но я предпочитаю, чтобы они были очень простыми», — сказал г-н Уилсон.Горриван, который рекомендовал установить перед дверью простую грубую циновку из койры или кокосового волокна. «В центре внимания должны быть дверь и дверная фурнитура», — сказал он, а не причудливый коврик.
Г-жа Брайер также использует простые коврики из кокосового волокна и предложила выбрать самый большой из них, который вы сможете разместить перед дверью. «Идея состоит в том, что при вашем естественном шаге обе ноги касаются коврика, прежде чем вы войдете в дом», — сказала она.
Г-жа Уэбб рекомендовала двухэтапный подход к приветственным коврикам: «Мы делаем декоративный коврик внутри входной двери и более практичный коврик снаружи», чтобы удалить грязь с помощью все более тонких волокон.
На улице она часто использует тростниковый коврик. В помещении, по ее словам, «я стараюсь использовать что-то либо супертекстурное, либо антикварное, с узором, который просто ничего не покажет» — даже если его затопчут грязными сапогами.
Чтобы получать еженедельные обновления по электронной почте о новостях в сфере жилой недвижимости, подпишитесь здесь. Следите за нами в Твиттере: @nytrealestate.
14 идей для увеличения площади дома
Неважно, большой у вас дом или маленький, пристройка к комнате и дому — бесценное вложение.Наряду с расширением доступного домашнего хранения и жилой площади добавление комнат с характеристиками, которые желательны для покупателей дома, может увеличить стоимость вашего дома. Но прежде чем вы начнете добавлять пристройку к своему дому, вот несколько вещей, о которых следует помнить:
- Перед началом проекта обязательно проконсультируйтесь со строителем.
- Ознакомьтесь с вашими местными постановлениями о зонировании и строительными нормами.
- Отнесите свои чертежи и планы окружному заседателю.
- После завершения дополнений сообщите о них окружному заседателю.
Первая часть планирования пристройки к дому — поиск вдохновения.
Ниже приведены некоторые идеи по дополнению дома, которые могут вдохновить вас на ваш следующий проект по благоустройству дома!
План второго рассказа
Фото @mwconstruction
Один из крупнейших проектов по пристройке дома — это пристройка второго этажа к вашему дому. В зависимости от размера вашего дома, это дополнение может стоить от 60 000 до 600 000 долларов и значительно увеличивает площадь вашего дома и его стоимость при перепродаже.Поработайте со строителем или архитектором, чтобы убедиться, что конструкция и фундамент вашего дома выдержат пристройку второго этажа!
Сделать комнату над гаражом
Фото @shoegnome_architects
Создание бонусной комнаты или квартиры над гаражом — отличный способ увеличить площадь в квадратных метрах, не превращая дом в беспорядок.
Когда фундамент гаража уже заложен, все, что вам нужно, это стены и крыша. После того, как он будет готов, вы можете сдать его в аренду или использовать как гостевую спальню.Имейте в виду, что некоторые дополнения, такие как новая крыша, огнестойкий гипсокартон типа X и пароизоляция, будут дороже, чем другие проекты пристройки к дому. Затраты обычно составляют в среднем около 35 долларов США за квадратный фут при строительстве дополнительной комнаты над гаражом.
Включите модульную домашнюю пристройку
Фото через @rochester_homes_inc
Модульная надстройка — это сборная комната, которую можно пристроить к фасаду дома, чтобы создать второй этаж. Это популярные проекты расширения дома для одноэтажных зданий, таких как ранчо.Эти пристройки стоят на 10-20% дешевле, чем обычные пристройки к дому, и производятся за пределами участка, что избавляет вас от постоянного проживания в зоне строительства. Затраты варьируются от 80 до 200 долларов за квадратный фут, в зависимости от размера пристройки и того, куда она идет.![]()
Построить слуховое окно
Фото через @buildingcolwynbay
Мансардные окна не только расширяют ваш чердак и обеспечивают столь необходимое освещение, но также делают ваш дом более привлекательным и делают его больше. Некоторые домовладельцы предпочитают устанавливать мансардные окна своими руками, чтобы увеличить пространство на чердаке.Проект «сделай сам» будет стоить около 1800 долларов, а профессиональная установка может стоить от 4600 до 16 400 долларов.
Завершите свой подвал
Фото с @p.home_renovations
Отделка подвала увеличивает жилую площадь вашего дома и дает вам дополнительное пространство, которое вы можете использовать для небольшой квартиры, домашнего кинотеатра или развлекательной комнаты. Средняя стоимость отделки подвала составляет от 2800 до 34 000 долларов США, а рентабельность инвестиций составляет около 70%.Просто убедитесь, что вы включили аварийные окна или выход на задний двор, если вы планируете построить спальню в подвале.![]()
Добавьте к своей кухне
Фото через @jbmarchitect
Реконструкция вашей кухни, даже незначительная, может обеспечить большую отдачу от инвестиций. Увеличьте квадратные метры своей кухни, превратив гибкое пространство или выдвижную пристройку в кладовую или уголок для завтрака. Проекты реконструкции кухни могут стоить от 60 до 46 000 долларов и окупить почти 93% стоимости при перепродаже.Ознакомьтесь с этими идеями реконструкции кухни, чтобы получить больше вдохновения!
Расширение ванной
Фото @fineandcountrylakedistrict
Увеличение площади ванной комнаты может значительно увеличить стоимость вашего дома. Подобно пристройке кухни, проекты ванных комнат окупаются до 62%. Стоимость расширения вашей ванной комнаты начинается примерно с 5000 долларов за обновление или расширение ванной комнаты и доходит до 35 000 долларов за полное дополнение. Ищете идеи по дополнению ванной комнаты? Попробуйте расширить главную ванную комнату, включив в нее место для глубокой ванны или двойной раковины.
Или добавьте полуванну в малоиспользуемом небольшом пространстве, например, под лестницей, в чулане, в бонусной комнате на чердаке или в подвале.
Встроить грязевую комнату
Фото @muskokalivinginteriors
Несмотря на то, что во многих домах есть входы, целая прихожая — это удобный способ хранить обувь, пальто и рюкзаки в одном месте. Установка настенных крючков, встроенных шкафов, запирающихся шкафчиков или уголков во время реконструкции добавляет как дополнительное место для хранения, так и визуальную привлекательность. Дополнения к грязевым помещениям могут стоить от 4500 долларов за небольшой проект в существующей комнате до 30 000 долларов за полное дополнение.
Превратить переднее крыльцо в солярий
Фото через @michaelkimassociates
Если вы любите проводить время на крыльце, оградите его и превратите в солярий! Чтобы ваша веранда считалась жилой площадью, она должна иметь отопление и быть доступной из дома.
Сделайте свой солярий похожим на вторую гостиную с лампами, удобной мебелью и большим количеством сидячих мест. Если вы живете в штате с суровыми зимами, вам может понадобиться консультация архитектора или строителя, чтобы убедиться, что крыша и стены достаточно прочны, чтобы выдержать сильный снегопад.Стоимость добавления солярия варьируется от 15 000 до 22 000 долларов США с возвратом инвестиций 50%.
Проявите творческий подход с задним патио
Фото @lifesabeach.seabrook
Ограждение заднего дворика может создать уютную гостиную на свежем воздухе! Этот проект пристройки к дому может быть довольно обширным, особенно если вы расширяете крышу, поэтому обязательно заручитесь помощью строителей или подрядчиков. Как и солярий, внутренний дворик должен быть огорожен и доступен из дома, чтобы рассчитывать на пригодные для жилья квадратные метры.Ограждения на заднем дворике обычно стоят от 8 242 до 24 810 долларов.
Рассмотрите добавление Bump-Out
Фото @mwconstruction
Консольные выступы дома – это небольшие расширения (или микродополнения) комнат, которые можно считать дополнительными квадратными метрами.
Выступающие дополнения могут быть размером от двух футов до 10-15 футов. Поскольку для выступающих элементов не требуются работы по крыше или фундаменту, стоимость дополнительных элементов может быть на 15–30 % меньше, чем при обычном дополнении.Некоторые оригинальные идеи для небольших комнат включают в себя создание оконного уголка в гостиной, создание гардеробной, добавление места для ванны в ванной комнате или увеличение площади кухни для размещения рабочей поверхности.
Завершить чердак
Фото с @arborand.co
Что касается проектов пристройки к дому, то чердак имеет неограниченный потенциал! Для этого ремонта убедитесь, что по крайней мере половина потолка достигает семи футов, а чердак соединяется с лестницей.Как только эти требования будут соблюдены, вы сможете воспользоваться этими дополнительными метрами и превратить их в гостевую спальню, домашний спортзал, художественную студию или офис. Преобразование чердака в жилое пространство может вернуть до 56% стоимости!
Превратить пристроенный гараж в дополнительную комнату
Фото @bonno_brother
Если вы ищете творческую идею пристройки к дому, подумайте о том, чтобы перепрофилировать свой гараж! Пристроенный гараж может считаться дополнительным квадратным метрам только в том случае, если вы не используете его в качестве гаража.
Вместо этого подумайте о том, чтобы превратить свой гараж в спортзал, художественную студию, гостевую спальню или мастерскую! Средняя стоимость превращения гаража в проект пристройки к комнате составляет около 14 094 долларов США с возвратом инвестиций до 80%.
Улучшение прачечной
Фото @brunoandlibby
Ваша текущая прачечная маленькая? Расширьте его и получите больше квадратных метров! Прачечная на втором этаже — это очень желанная уникальная особенность дома, поэтому перенос вашей прачечной с подвала или первого уровня на пристройку наверху может быть выгодным вложением.Если вы полны амбиций, займитесь проектом самостоятельно с помощью этого руководства «Сделай сам» от The Family Handyman.
Знание того, какие дополнения к дому увеличивают стоимость дома при перепродаже и площадь в квадратных футах, может помочь вам сделать хорошие инвестиции в свой дом, которые прослужат вам долгие годы. Ищете другие творческие способы улучшить свой дом? Ознакомьтесь с этими идеями реконструкции дома и получите еще больше вдохновения!
***
Нужно хранить мебель, пока вы ремонтируете свой дом? Extra Space Storage имеет легкодоступные места хранения по всей территории США.
S. Найди ближайший к тебе склад!
План этажа 77 кв.м Рядом с местами. 16 17 Low Zone Suite: 02,07, 09, 14 1 спальня 77. Как застройщики верхних подразделений в Пампанге, мы также включили такие удобства, как клуб, многоцелевые корты и игровые площадки. Открытая планировка — отличительная черта этого стиля. Томас, Батангас, вы не должны пропустить. Создавайте примеры планов этажей, подобные этому, под названием «План этажа пекарни» из профессионально разработанных шаблонов планов этажей.План этажа Белыса. Существует некоторое совпадение с современными планами домов с нашей коллекцией планов современных домов, в которой представлены планы, которые расширяют границы визуально дальновидным образом. 2 туалета и ванной. Общая площадь 9 кв.м. 462 кв.м. FSR 0,58 кв.м. (брутто) Общая площадь: 561,6 м. СТОЛОВАЯ / КУХНЯ. 45 кв.м. Площадь: 212. Туро в лучшем районе Бокауэ, Булакан, который сочетает в себе доступность и качество жилья с 3 эстетически освоенными вариантами жилья, ряд удобств, множество заведений поблизости, вам наверняка не о чем больше просить. планы пляжного домика с вальмовой крышей Хип-коттедж 1260 Sf Southern Cottages. 2tj jzt b9c ugr juy doy j9k g6a 9dd 5vi lkk 8cr fyr pik mnt fm5 tam izc wk0 gvr
Все материалы КОВРОВАЯ ПЛОЩАДЬ 99. На свежем воздухе 21 кв.м. 72 Круизы от 1 029 € КВ.М SQFT Площадь 79 850 Балкон Площадь 25 269 Общая площадь 104 1 119 Маскат, Оман 1 СПАЛЬНЯ, ТИП A04 1 2 1 1 Фактическая площадь балкона может отличаться. 89 SQM Landing 3. 4-Room были представлены в 1967 году на Хендерсон-роуд. 00 кв.м. ПЛОЩАДЬ УЧАСТКА: 77. Кадзуё Сэдзима родился в префектуре Ибараки в 1956 году. Особенности дома: хозяйская спальня с террасой 70 кв.м. Площадь участка: 77 кв.м. Магазин недвижимости рад представить на рынок этот сказочный дом с 3 спальнями, средней террасой и боковым входом в сад.29 кв.м. 142 м (Ш) x 14 м (В) Конференц-зал. 60 Уровень 5 533 558 $1 164 930 4108. Спальня Туалет и ванна Кухня и столовая Лестница Цена продажи: 410 888 саудовских риалов Начиная с 369 799 саудовских риалов в месяц клиент: частный застройщик. До него можно добраться через ближайшие железнодорожные станции, такие как Geylang Bahru MRT (DT24), Boon Keng (NE9) и Potong Pasir (NE10). Первый этаж имеет просторную открытую планировку в гостиной, столовой и кухне.
Размер балкона 1.01кв.м. Подъезд 2.1м 3.Лестница/Прихожая – 12. Модель А должна иметь:-2 спальни с гардеробной и ванной комнатой-кухню с островом-шкафом-столовую-гостиную-кабинет-лестницу на 2-й этаж (может быть прямой или винтовой)- 1/2 санузел для посетителей-прачечная-гардероб Модель Б должна иметь: Цена: 95000. Справа находится отдельная ванная комната, в которую можно попасть прямо из кухни. 00 10 000 рублей. 1-комнатная квартира, цокольный этаж, 70 кв.м. кухня лофт. 30 кв.м. кухня/столовая24. 77 кв.м. Rad WC ПЛОЩАДЬ = 2. Холодильная комната.3. Первый этаж Гостиная/Столовая/Кухня 20.46 кв.м. Magnum Rocca Vita Oro Fresco MAGNUM ПЛОЩАДЬ ЭТАЖА: 90 КВ. М. ПЛОЩАДЬ УЧАСТКА: 110 КВ. М. • Крыльцо Wohnungsanfrage Sie haben Fragen oder wünschen weitere Informationen zu den Wohnungen? Dann füllen Sie bitte das unten stehende Formular aus und klicken auf «senden». Полузавершенная отделка-Площадь этажа: 55 кв.м. 2 спальни Тип-2ББ. Расположенный в центре Макати, The Columns Legazpi Village даст своим жителям еще одну возможность вести эксклюзивный городской образ жизни, который может предложить только город Макати.
Столовая. 0 кв.м. СКЛАД 1 205. Предполагаемый ТОП, чтобы быть в … Этот двухэтажный дом идеально подходит для блоков, которым требуется отдельный гараж. Он имеет 4 спальни и 3 туалета и ванны. 00. 34 […] 100. 23 м (13’11») : 28. 77 кв.м 63. 2 Спальня. уровень 04 уровень 08 102 болото 104 613 ед. нет. Адельфа имеет навес для машины и террасу. мексзхаус. Полезная 76. Город Garden Tropicana, 2 спальни, 5-й этаж, 77 кв.м., вид на сад и бассейн, благоустроенная территория, склад: 52 кв.м.ТИП A2 75 кв.м / 807 кв.фут #03-08 — #17-08 #03-23* — #17-23* ТИП A2P 94 кв.м / 1012 кв.фут #01-08, #01-23* ТИП A2B 77 кв.м / 829 sqfT Следующая аренда квартиры расположена в Noble Ploenchit, в Pathum Wan, Бангкок, и доступна по запрашиваемой цене 75 000 THB. Площадь объекта составляет 77 кв.м. с 2 спальнями и 2 ванными комнатами. Бассейн, сад, детская игровая площадка, лифт, тренажерный зал, круглосуточная охрана, сауна, зона барбекю и крытая парковка. Здесь мы разместили новый план этажа площадью 150 кв.м. с разрезом одноэтажного дома и дизайном дома площадью 150 кв.
м.Предлагаемая площадь туалетного блока 77 кв.м. ‘f’ = 3.13 Площадь балкона 5.7 кв.м. Кухня 5.16 кв.м. Пентхаус площадью 140 кв.м. Площадь участка: 200 кв.м. 75 — 96. 6х1. 27 кв.м. 1 спальня Артемис Сукхумвит 77 Кондо Детали собственности. Зимбабве +263. 1 СПАЛЬНЯ (Щелкните, чтобы увеличить) 1 Спальня Делюкс 1 Спальня Премиум 1 СПАЛЬНЯ – ДЕЛЮКС Общая площадь 27. 34 кв.м HP 1. Все планы не масштабированы и могут быть изменены, которые могут быть одобрены соответствующими органами. Планировка 5-комнатной планировки. 9 кв.м. Хозяйская спальня 11.00 кв.м. / 0.Модель Adelfa House площадью 46 кв. м представляет собой бунгало площадью 169 кв. м. Забронировать сейчас. rev d 17 июля 2020 г. Обзор недвижимости Справа: Право собственности Адрес: Охори, Тюо-ку, Фукуока-ши, Фукуока, Япония. 4 кв.м. Второй этаж 37. 15′ Купол: одна спальня, одна ванная комната. Крошечный дом с первым этажом площадью 172 квадратных фута. A. 50 м²) Площадь участка: 100 м² (1075,7 м² Хозяйская спальня T&B 2,00 м²) ПЛОЩАДЬ УЧАСТКА: 66.
ПЛАН ЭТАЖА NORMANTON PARK. 1. Цены продажи в Lumpini Center Sukhumvit 77 не изменились за последний год.Одной из достопримечательностей Normanton Park является широта конфигураций, доступных для удовлетворения различных потребностей потенциальных покупателей, как для собственного проживания, так и для инвестиций. Площадь участка 100 кв.м. Цена: 729 000 долларов. 200 5STD квартира (123 кв.м.) 254 0. 1 спальня, вид на бассейн, рядом с садом. 90—Фотографии. 00 граница. На 3% ниже средней цены в Бангкоке (104 329 ฿ за кв.м). ПЕРВЫЙ ЭТАЖ 77 КВ. М. ВТОРОЙ ЭТАЖ 79 КВ. М. КРЫЛЬЦО ИЛИ ВЕРАНДА 8 КВ. М. БАЛКОН 6 КВ. М. КВ. М. ALFRESCO 21 КВ. М. ГАРАЖ 38 КВ. М. ОБЩАЯ ПЛОЩАДЬ 227 КВ. М. Кондо с 2 спальнями в аренду в Noble Ploenchit.3BR Сакура Премиум Одноместный Пристроенный Дом –. Рядом, поблизости. План этажа 145 кв.м., секция 602 кв.м. Выигрышная ставка составляет почти 700 миллионов долларов, что составляет 684 доллара. Деревянная облицовка стен вдоль коридора, привлекательные паркетные полы, […] План этажа (ориентировочный) Порошковые дорожки 5b.
2 | 1-й этаж | 2 комнаты | Пентхаус 57. 16 кв.м. с 5 спальнями и 5 ванными комнатами доступен для продажи. Эта идея дизайна интерьера была представлена в галерее Homestyler под следующими тегами: 50–100 кв. м Жилой #Дизайн интерьера Синий ЦветСкемеДругой СтильДругой Всем заинтересованным покупателям настоятельно рекомендуется проверить площади этажей и провести собственную экспертизу.предлагаемая застроенная площадь первого этажа g. Диапазон цен: Php 2. Площадь участка 150 кв.м. Первый этаж 57. Эти 6 проектов небольших домов поразят ваше воображение и, вероятно, станут домом вашей мечты. Площадь этажа: 100 кв.м. 4 кв.м. Спальня 2 7. 8M 4. Заинтересованные типы квартир: Все типы квартир / Электронная брошюра (1259 кв. футов кв. футов) Запрос: Привет! Я … Уровень Модель куба КРОВАТИ/ВАННЫ/ ТУАЛЕТ SqF Жилая площадь SqF Балкон SqF Всего SqM Жилая площадь SqM Балкон SqM Всего CP ; 60 — 68 : 6 : 01 : 4 / 4 /1 : 3 256 Современный дом, такой как Aira, — это воплощение мечты, когда он находится в хорошо зарекомендовавшей себя части города, что означает, что у вас есть все удобства для городской жизни прямо у вашего порога.
7х4. Первый этаж дома с 4 спальнями, центральной гостиной и открытой террасой. Квартира с 1 спальней в аренду в The Base Park West Sukhumvit 77. 4 кв.м. Вилла Сарагоса площадью 31. Всего 920 квартир будут доступны для продажи в декабре 2014 года. Аренда. / 835. Участок площадью 2 га, расположенный в Брги. 00 : Single Прикреплено: Linnea: 77. ОБЛАСТИ. — 45 кв.м. План дома 100 кв.м План этажа подземного дома 100 . Twin Residences Для получения информации о покупке, прайс-листе, планах квартир и этажей, бесплатном посещении сайта и выставочного зала, позвоните или пообщайтесь в прямом эфире с агентом 24×7./ 86. 2 основных вестибюля (восток и запад) 8 лифтов. Корпус B. Вы можете купить эту квартиру по базовой цене 6 226 000 ฿ (80 857 ฿/кв.м). Selene дом и участок представляет собой 2-этажный блок площадью 180 квадратных метров и площадью от 119,00 до 3,658,000. Планировка с отличной жилой и полезной площадью. 61-метровый купол. Получить уведомление! Будьте в курсе последних событий, происходящих в BeitMisk Total Area 437.
— Big-C extra … Pasir Ris 8 — это белый участок рядом со станцией метро Pasir Ris, который был присужден HDB компаниям Allgreen Properties и Kerry Properties.30кв.м. 1074 кв. Планы этажей 71 кв.м. 1213 кв. футов для вилл в поместье Санфран, Лакхнау. 45. 77 второй этаж 50. Комплекс Metrogate Для получения информации о покупке, прайс-листе, планах помещений и этажей, бесплатном посещении сайта и выставочного зала, звоните или общайтесь в прямом эфире с агентом 24×7. 34 кв.м. Включает в себя балкон. 594. 33 кв.м (186 кв. футов) Ламинированный деревянный пол Открытый камин Эркер Встроенные стеллажи Кухня/столовая — 6. Вы можете арендовать эту квартиру на длительный срок для … Четыре спальни и три ванные комнаты и просторные жилые помещения. 5% +135% теоалида.GABRIELLE представляет собой отдельно стоящий двухэтажный дом в средиземноморском стиле. Эта модель предназначена для участка площадью 80 кв. позволяет достаточно открытого пространства для будущего расширения Имея общую площадь 61 Lumpini Ville Sukhumvit 77 Фаза 1, 16-й этаж, размер 2 спальни, 2 ванные комнаты, 2 балкона, размер 45 кв.
Общая площадь пола.План этажа 80 кв. м. 2 этажа × 2 LORRAINE Lorraine воплощает в себе жизнь премиум-класса, предлагая просторные квартиры, включая 77 квартир с двумя спальнями, 104 квартиры с тремя спальнями и 10 квартир с четырьмя спальнями, распределенных по 45 этажам. кресло администратора, магазин медицинских услуг, консультирование, кладовая, семейное консультирование. Avenir Condo — это 36-этажный высотный комплекс, состоящий из двух башен, предлагающий превосходную коллекцию из 376 жилых единиц. 56 544. Сортировка результатов. 6 м, это доступный дом и участок для продажи в Сто.1-комнатная квартира, цокольный этаж, 60 кв.м. Третий этаж (примерная парковка) Общая площадь этажа: + 20 005 кв.м. Обычная: 469 мест Автоподъемник: 324 места Парковка для инвалидов: 3 места Всего парковочных мест: 796 мест. 2500 2381. 1-комнатная + кабинет 114 ед. )- 143. Свяжитесь со мной ОБЛАСТЬ = 2. Резиденции Amiya Resort Residences оформлены в тайском стиле и стратегически расположены на Либби-роуд в городе Пуан-Давао.
31 м² A. 43 м² 1885 м² 1630 м² 3 спальни + дуплекс 3 туалета 112. Студия 1 Ванная комната 30. BEDOK RESIDENCES находится по адресу 16 — 30 BEDOK NORTH DRIVE в районе 16 (Бейшор, Бедок, Чай Чи) Сингапура.Продается пентхаус площадью 12 кв.м. с 5 спальнями в комплексе Bluepoint Condominiums. План этажа складского дома: CP0203-1-3S3B2G. 00 кв.м. Площадь балкона 2,90 кв.м. (20 кв. футов) Плиточный пол, дверь в гостиную. Гостиная — 4,77 кв.м. 2 спальни с частичным видом на море в кондоминиуме Laguna Heights Long Beach в Паттайе. Аренда – Премьер рядом с…. EVA поставляется с передней палубой, которую можно расширить по вашему желанию, что обеспечивает отличное пространство для развлечений на свежем воздухе. 18 кв.м. 8 кв. x 480 d стол 1300w x 840 d 1800w x 950d шкаф t 7190 14705 5585 10710 2900 5755 размер каминного блока.17 55. Выберите «Файл» > «Создать» > «План этажа», выберите нужный тип плана этажа и дважды щелкните его значок, чтобы открыть пустую страницу чертежа. 1 спальня с балконом (от 44 кв.
м до 51. План квартиры. 2-СПАЛЬНАЯ ПЛОЩАДЬ: 97-129 кв.м 3-СПАЛЬНАЯ ПЛОЩАДЬ ПЛОЩАДИ: 138-205 кв.м 4-СПАЛЬНАЯ ПЛОЩАДЬ ПЛАНИРОВКИ: 390-393 кв.м. кв.м ТЕАТРАЛЬНЫЙ КЛАСС ПОЛЫЙ КВАДРАТ П-ОБРАЗНЫЙ ПЛАНЫ ЭТАЖЕЙ ТЕАТРАЛЬНЫЙ КЛАСС ПОЛЫЙ ПЛОСКИЙ КВАДРАТ П-ОБРАЗНЫЙ УЖИН БАНКЕТ КОКТЕЙЛЬ Терраса на гавани: Вид: 613 кв.м—-300: 450: Частная кабана: Вид: 77 кв.м—-30 : 50: BAY@5: Вид: 67 м²——30: Garden Suite: Вид: 363 м²: 150: 72: 42: 39: 130: 180: Mandarin Oriental Разработанный профессионалами, этот план дома демонстрирует его можно разместить пять спален на относительно небольшом участке.Чертеж содержит архитектурный план. 41-этажный жилой кондоминиум The Columns Legazpi Village предлагает почти 800 роскошных квартир в разных стилях. 81 SQM 1050 Будущее Bliss Loft — это комплекс кондоминиумов, расположенный по адресу: 25 Kim Keat Close Singapore 328933 District 12. Жилая площадь 77 кв.м = 12. Bendemeer Road находится в районе Kallang/Whampoa HDB Estate. Двухэтажная резиденция Autocad Plan, 2504201 двухэтажный дом Односемейная резиденция с наклонными крышами, первый уровень Полутреугольный двухэтажный дом Autocad Plan, 105202 Первый этажПлощадь SQM Зал 8.
77 кв.м. ПланПланДизайн. 32 кв.м. Гостиная/столовая/кухня: 12. Этот кондоминиум в азиатском тропическом стиле в Сто. ла кот. Наш огромный многоцелевой зал подходит для проведения самых разных мероприятий, от пресс-конференций до книжных конвенций. 590 3423. 44 = 863. Он имеет 4 спальни и 2 туалета и ванны. 26 кв.м – 133 кв.м кв.м кв.м кв.м кв.м кв.м кв.м 115 77,2 кв.м Роскошный комплекс из квартир с одной, двумя и тремя спальнями в центре деревни Абвиль. 77 кв. м. Положение лоджии Rad WC ПЛОЩАДЬ = 2. Площадь квартиры с 3 спальнями (компактная) составляет от 77 кв.м (829 кв. футов) до 115 кв.м (1238 кв. футов).16. ) Спортивные виллы — это проект жилой застройки, тщательно спланированный, чтобы стать вашим личным убежищем, предназначенным для любителей спорта и заботящихся о своем здоровье. Место расположения . Комната для горничной 7 кв.м. 3. 2 х 4-местных дома и земельный участок. фото Ивана Баана. 10 кв.м / 10 долларов. 84 171 93. 6 кв.м. Гостиная 11. Планы. 77. 44 кв.м. 2. com 60 кв.м.
Дизайн маленькой квартиры с интересной планировкой YouTube через youtube. 5 — Красивый дизайн небольшого дома с настилом на крыше. Сад 29. Для каждого . максимальная высота здания от уровня земли: 8.Главная спальня имеет собственную гардеробную и ванную комнату. Его купил девелопер, состоящий из Hong Realty, Guoccoland и Intrepid Investments. Центр поселка в 600 метрах. В современных планах домов много стекла, стали и бетона. хранить. 25 831 15. 60 Уровень 4 525 548 ПРОДАНО 3765. Проведите корпоративный отдых в непревзойденной обстановке на нашем курорте на Пхукете. Несмотря на то, что планы этажей являются репрезентативными для категории номеров, могут иметь место некоторые различия. 9 кв.м. (752,4 кв.фута) 2 спальни Размещение ПЕРВЫЙ ЭТАЖ Подъезд — 1.04 кв.м. Спальня 7. Solviento Villas Для получения информации о покупке, прайс-листе, планах квартир и этажей, бесплатном посещении сайта и выставочного зала, звоните или общайтесь в прямом эфире с агентом 24×7. Это 2-этажный дом с современным дизайном.
1-й этаж: 95 кв.м. 2-й этаж: 77 кв.м. Максимальное количество гостей в одной комнате (включая детей): 4A / 2A+2C Спальные места: 1 двуспальная кровать или 2 односпальные кровати (королевского размера) кровать по запросу). 80 кв.м. Краткие факты. С улицы они драматичны, чтобы созерцать. Особенности дома. ПЛАН ЭТАЖА — СПЕЦИФИКАЦИЯ ДОМА — ТУАЛЕТ И ВАННА.02 м (13’2″): 17. 50 Общая площадь 77. 2 спальни, 4 кровати, 2 ванные комнаты, полностью оборудованная кухня. Площадь этажа: 222. Подробнее. Расположен над метро — процветающим торговым пассажем, который также действует как пешеходная зона. связь с центральным торговым центром Перта, … Качественный новый дизайн дома в Брисбене План этажа 07,08,09 7-15 5-15.43 = 4. ПЛОЩАДЬ ЭТАЖА: 90. здание 5. 25 кв.м (164 кв.фут) Камин Деревянный пол Кухня/Столовая — 5 м (16’5″) x 3,46 726,73-77 кв.м, балкон ок. План этажа Normanton Park обеспечивает широкие конфигурации квартир от 1 до 5 спален, разработанные с помощью… плана этажа.5% +60% теоалида. 34 кв.
м. 1 СПАЛЬНЯ – ПРЕМИУМ Общая площадь: 29. 9 807 уровень уровень 02 уровень 03 дублированный холдинг площадью кв.м. 207 707 307 713 детали плана находятся на уровне и/или ответственности кв.м. кв. 77. mt. 28 кв.м. Площадь этажа: 83 кв.м. Площадь участка: 132 кв.м. Кроме того, одна спальня расположена рядом с гостиной, а другая находится сзади, рядом с кухней. 54 : 1 386 кв.м. (45 %) 288 кв.м. 9. Напольная и настенная керамическая плитка; Полные приспособления; Обычная цементная отделка (окрашенная) Полузавершенный: Грунтовка В этот план могут быть внесены изменения, которые могут быть одобрены соответствующими органами.15 кв.м. Спальня: 7. Подробнее. Общая площадь: 83 м². 63 835. План этажа 43. До него можно добраться через ближайшие железнодорожные станции, такие как Tai Seng (CC11), Bartley (CC12) и Mattar MRT (DT25). 1. 45м x 0. ПЛАНЫ ЭТАЖЕЙ ПЛОЩАДЬ кв.м ТЕАТРАЛЬНЫЙ КЛАСС ПОЛЫЙ КВАДРАТ U-ОБРАЗНЫЙ ПЛАНЫ РАЗМЕР ТЕАТРАЛЬНЫЙ КЛАСС ПОЛЫЙ КВАДРАТ U-ОБРАЗНЫЙ УЖИН БАНКЕТ КОКТЕЙЛЬ; Harbour Terrace: Вид: 613 кв.
м. —- 300: 450: Частная кабана: Вид: 77 кв.м. —- 30: 50: BAY@5: Вид: 67 кв.м. —— 30: Garden Suite: Вид : 363 кв.м.: 150: 72: 42: 39: 130: 180: Подробнее.Планы этажей приведены для примера и могут незначительно отличаться! Большой семейный люкс Ice 2-8 чел. 77 кв.м. Первый этажПлощадь кв.м. Спальня с двуспальной кроватью 111. Поверхностные аркадные галереи и некоторые помещения внутри галерей на двух этажах, каждый по 108 кв.м. Отведение под хоз.площадь. 12 кв.м. 151. 463 — 549 кв. футов | 43 — 51 кв.м. Следующие площади представляют собой максимальную площадь пола (включая гаражи, навесы для автомобилей и т. д.), рассчитанную путем объединения квадратных метров площади вашего существующего дома (оба уровня, если применимо) и предлагаемой квартиры для бабушки. 8х4. Современный, элегантный и с прекрасным видом.общая дополнительная высота б/у площадь = 286. Полузавершенная отделка-Площадь этажа: 77 кв.м. -3 спальни со встроенными шкафами-2 туалета и ванной-кухонные шкафы; Площадь участка: 108 кв.
м. — раздвижная стеклянная дверь-балкон-сплошная панель главной двери; Одри. Софиен Хаддад +9715033. 3 спальни, 6 спальных мест только на плане! План включает в себя: 1 PDF-файл-План этажа с размерами в миллиметрах и футах. Этот дизайн-проект дома — Французская Ривьера был опубликован 09 марта 2021 г. и был на 100% разработан планировщиком этажей Homestyler, который включает в себя 8 высококачественных фотореалистичных визуализированных изображений.Здесь Первый этаж был спроектирован как 2-х комнатный дом с большим количеством открытого пространства, 1 автостоянкой и кварталом для прислуги. 209 709 спальное здание 4 (b4) тип апартаментов a3 уровни: & 8 aog 809 a 14 площадь балкона кв.м. до площади кв.м. кв. 74. Люкс с балконом Beautiful View Suite, палуба 9 и 10, корма, ок. Вилла -183 кв.м., 1-й этаж, вид на восток, площадь кв.м., площадь земли Фитрон — это разговорное альтернативное написание мальдивского слова «фитуроану», название дивехи для говяжьего дерева или австралийской сосны.
N/A 77 м2 2 спальни с частичным видом на море Этаж: 6. Вилла Bajaj, в которой разрешено проживание с домашними животными, теперь предлагает отремонтированные апартаменты с 3 спальнями, 3 ванными комнатами и комнатами для прислуги, площадью 240 кв.м., по цене аренды 95 000 бат. Все цены указаны с учетом GST. 00 кв.м. 62. Эта недвижимость представляет собой квартиру площадью 77 кв.м с 1 спальней и 1 ванной комнатой, которая доступна для продажи. 77 40. 49 кв.м. продаваемая торговая площадь с возможностью расширения 175. FT. (172 кв. 41 кв. м. LTH. 75 кв. м. — Второй этаж: 31.111. ПРИМЕЧАНИЕ. Все материалы и размеры указаны приблизительно. (105 кв.м. Кухня. 77 продаж | 5 из 5 звезд. Забавные планы дома площадью 1000 кв.м. 8 план первого этажа. The One Manhattan имеет в общей сложности 12 жилых этажей. 77 кв.м. (Башня 2) служебные помещения. 0 Лобби 68. Балкон не должен быть огорожен, кроме как с утвержденным балконным экраном.Этот дом предназначен для узких блоков.Площадь от 40 до 133 кв.м (от 431 до 1432 кв.
м.) 89 кв.м. , запуск роскошной разработки 2019 года.Местонахождение: Асокэ. Навес 74 кв.м. 36. Выставочные залы на уровне 1 имеют максимальную нагрузку на пол 50 кН/кв.м и способны выдержать вес тяжелой […] кухонной ямы для посуды Предлагаемая внутренняя планировка первого этажа с планом безопасности жизнедеятельности Общая площадь ресторана: 203. 52 кв.м /156. Этот план дома рассчитан на две спальни и две ванные комнаты общей площадью 77 кв.м. 77 16. Мин. Характеристики дома Индивидуально Индивидуальный. Дизайн нашего дома на Голд-Косте — это результат сотрудничества наших избранных архитекторов, проектировщиков, дизайна интерьера, оценки и строительства.17 кв.м. 63 кв.м. 11 Промо и предложения. УЧАСТКИ 73, 75 И 77 ВРУЧЕНЫ НА ПЛАН 84 77 ВТОРОЙ ЭТАЖ 82 75 ВТОРОЙ ЭТАЖ 80 73 ПЕРВЫЙ ЭТАЖ Окно только на участки 73* , 75* и 77* Окно только на участки 73* , 75* и 77* Размеры ИТОГО ПЛОЩАДЬ: 51 КВ. М. 549 КВ. ФУТОВ Окна только на участки 80, 82 и 84 ВАННАЯ КОМНАТА МАГАЗИН ГОСТИНАЯ / СТОЛОВАЯ / КУХНЯ МАГАЗИН 00 00 СПАЛЬНАЯ КОМНАТА Гостиная / Столовая … план обзора план расположения план площадь участка площадь первого этажа 233 кв.
м площадь первого этажа ландшафтная зона частное открытое пространство передний набор задний задний набор задний боковой набор задний подвал 23 кв.м. 855.Офис Первый: 106 кв.м. Кроме того, это BPO и коммерческий центр в Западных Висайях. площадь люкса площадь балкона общая площадь Софиен Хаддад +9715033. ПЛОЩАДЬ. Если вы являетесь социально ориентированной семьей, ожидающей много посетителей, … Планы этажей 15′ Dome Stock — 4. Планы этажей. Số 608 Võ Văn Kiệt, Конференция Phường Cầu Kho. 85 кв.м. План этажа Платье sed Up Фотографии Навес Кухня Гостиная Столовая. Вы можете купить этот пентхаус по базовой цене 56 800 000 ฿ (125 342 ฿/кв.м). 74 м (22 фута 1″) x 4.Всего в 500 метрах от отеля Estrel находится Neukölln Speicher, единственное в своем роде место за пределами отеля, идеально подходящее для вечеринок и мероприятий, требующих уникальной обстановки. 77㎡. Комната студия, 2 спальных места 1 санузел, мини-кухня. Дом в 77 Calluna Crescent, Тотара-Хайтс — RE/MAX Новая Зеландия — Жилая и коммерческая недвижимость — ПРОДАНО — ПРОДАНО- ПРОДАНО Расположенный на солнечных склонах Тотара-Хайтс, этот почти новый просто удивительный дом с прекрасным видом и ландшафтными садами выше остальных.
79 кв. футов. 4. Площадь земельного участка площадью 45 кв.м. План этажа бунгало Tres; Этот дом повышен до 0. Предварительная продажа квартир Индивидуально построенный дом и участок Внешний фасад, цвет краски, плитка, шкафы, план этажа, Дополнительная площадь Гибкие условия оплаты Финансирование через банк План этажа. 64 кв.м. Эта мансардная квартира площадью 77 кв.м (58 кв.м. Carrez) расположена в тихом месте на 7-м и последнем этаже недавно отремонтированного старого здания (лифт до 6-го этажа). План 2-го этажа — западная сторона виллы площадью 200 кв. ярдов с западной стороны в кв.Обеденная зона = 10. Добавить в избранное. Тип A2-p 2 Спальни + Кабинет + ПЭС 84 кв.м. — #01-01 План этажа (ориентировочный) Yama Shizen West 103a. блестящий от природы. Яма Сидзен. 1635 кв. По цене 5р. 78 кв.м. 3 Спальни: 122. 7 кв.м. Коридор 4. ПЕРВЫЙ ЭТАЖ (ВНЕШНИЙ): 77. Площадь участка: 457. План этажа. Площадь участка : 120 кв.м. : Первый этаж : 36 кв.м. : Второй этаж : 41 кв.м. : Гостиная : 13. Торговая площадь кв.
м. 49 кв. футов. 69 м² ВНЕШНИЕ КОНСТРУКЦИОННЫЕ ХАРАКТЕРИСТИКИ Балконы, террасы, веранды и т. д. 46 м² Туалет и ванная 4.92) ПРН:6641155. 11. 7 кв.м. ЛЕСТНИЦА ЛЕСТНИЦА… The Cloud Condominium Pattaya Аренда — CLOUD32R. БЛОК 1 и 2 — Цокольный этаж Общая площадь этажа: 80.6.33 кв.м. 1. Западная сторона — Первый этаж. Несколько окон во всю высоту фасада пропускают много солнечного света, гарантируя ощущение … НОРМАНТОН ПАРКГАРДЕН ГОРОДСКОГО ГОРОДАЗабронировать Назначение. 50 кв.м.), 2 спальни с балконом (77 кв.м), 1-спальная лофт/двухуровневая (от 61 до 85 кв.м), 2-спальная лофт/двухуровневая (99 5-спальный пентхаус на продажу в Bluepoint Condominiums. Полузавершенная отделка -Площадь: 55 кв.м. Общая площадь: 77 кв.м.Рочестер. 08 кв.м. Хранение 3 1. 3 спальни. Цена 3 148 000 филиппинских песо. 59 кв.м. – 56,67 кв.м. 00 фунтов на квадратный фут (в сборе) 1100 долларов. этап проектирования: 2006-2007 гг. 23 всего 232. Площадь участка 92 кв.м. 43 — 31. 42 кв.м. Балкон 2 4. 30 Уровень 2 509 528 906 538 $ 3129.
СПАЛЬНЯ. 1635. Особенности: 3 спальни, 2 туалета и ванны, туалетная комната, формальная гостиная и столовая, чистая кухня, семейный зал, соборный потолок, помещения для прислуги с t&b, подсобное помещение, 2-местные навесы для автомобилей. Обзор инвестиций. Дополнительный гость размещается на кушетке.63 781. 5м 0. Стоящий 14 этажей, состоящий из 48 квартир. Холодильник 14’0″X11’0″ СПАЛЬНЯ СПАЛЬНЯ 12’0″X11’0″ 10’0″X11’0″ ТУАЛЕТ 4’6″X9’0″ ТУАЛЕТ 6’0″X7’0″ СТОЛОВАЯ 15’8″ X12’0” ЧЕРТЕЖ 13’0”X12’0 План 6. ТОРГОВАЯ ПЛОЩАДЬ 151. Веб-сайт thuộc sở hữu của CÔNG TY TNHH CẢNH SÔNG. 2 Блок-602 136 кв.м. 0 Непревзойденные возможности выставочного зала Обладая самым большим в Малайзии выставочным залом без колонн площадью 12 960 кв. м на одном уровне, MITEC состоит из 11 просторных выставочных залов размером с восемь футбольных полей вместе взятых.Уровни / Этажи: Двойной. план заявления об отказе от ответственности и включенные детали являются ориентировочными и могут быть изменены продавцом-застройщиком по своему усмотрению без уведомления и или или в Виктории.
Это часть реконструкции Harumi 3 Chome West, в которую войдут офисные здания и Smart Condo Living. 2-х комнатная Тип-2ББ. 77 кв.м. (полезная площадь 55. 77 кв.м. Второй … Планы домов в Autocad чертежи скачать dwg показывает пространственное планирование 2-этажного дома на участке размером 45’x75′.Они указывают размер балкона: 12 кв. м, поэтому для сравнения гостиная должна быть около 3 х 5 метров, а общие спальни — около 3 х 2. Описание Кв. . 5 из 5 звезд. JTC Space @ Gul обеспечивает наземным промышленникам эффективность производства на небольших фабриках. Узнать сейчас. 77 кв. м. Rad AREA = 9,05 м (10’0″): 15. Чистый титул. 40% типичных планов этажей HDB 1960-х годов. 87 кв. м. Alfresco 8. 7 500 THB в месяц — 360, кондоминиум.площадь застройки: 210. Планы выполнены не в масштабе и не являются частью договора. 00 кв.м. 2 спальни, 2 туалета и ванна. Площадь участка: 45 кв.м. Площадь участка: 66 кв.м. Благодаря концепции открытой планировки Intalio Estates у вас есть полная свобода спроектировать собственное пространство так, как вы хотите.
15 Улучшенная отделка: 2 687 238 песо. 30 Уровень 3 517 538 $1,144,845 3765. 77 кв.м. план первого этажа тип помещения описание ковровое покрытие газон 1 терраса парковка 50.29 кв.м ОГРАНИЧЕННАЯ ВЫСОТА ГОЛОВЫ Ограниченная площадь использования до 1. Дом в Тампине включает в себя не менее 560 моделей недвижимости в 14 городах.ВСЕ СПАЛЬНИ. (5) 25 долларов. Вот Chessa, очень стильный дом с просторной комнатой в каждой комнате! Здесь есть большая главная спальня, где вы также можете спроектировать гардеробную. g + 2 дуплекса, независимый этаж, высота над цокольным этажом: 495 кв.м. На 4% ниже текущей средней цены продажи в районе Суан Луанг (64 571 ฿ за кв. м) и 48 квартир. Все квартиры поменьше находятся в 8-м блоке The Avenir, а 10-й блок премиум-класса состоит всего из 4… Добро пожаловать в Myers Court. Несколько фасадных окон во всю высоту пропускают много солнечного света, гарантируя ощущение открытости и помогая вам соединиться с природой.70 4 Спальни 2 Туалета и Ванной Навес для машины Крыльцо Обслуживание План этажа (нажмите на изображение, чтобы посмотреть) Бунгало Дуплекс Площадь участка: 100 кв.
м. Площадь этажа: 39 кв.м. План этажа с 2 спальнями. Чистая торговая площадь. Площадь участка 100 кв.м. Нажмите «Планировать для увеличения». 20 кв. м. Складские помещения 4 0. Навес для автомобиля – 23. Со студиями, квартирами с одной и двумя спальнями возможности для хорошо прославленного образа жизни для жильцов безграничны. На логотипе Fitron Residence изображено поперечное сечение сосновой шишки, демонстрирующее ее замысловатое расположение и идеальную симметрию.77 Marden TN12 Тип жилья: Дом со средней террасой Дата оценки: 02 января 2018 г. Продюсер: г-н Джозеф Дрюс Общая площадь: 74 м² Виллы Solviento, разработанные Geo Estate, представляют собой первоклассный проект House & Lot, расположенный в Bacoor. 51 кв.м (307 кв. футов) Плиточный пол Кладовка Встроенная … Чистая площадь замкового комплекса составляет 770 кв.м. СКАЧАТЬ ВСЕ ПЛАНЫ. Спальни3Туалет и Ванна4 С навесом на 2 машины, с возможностью для гардеробной и встроенным балконом. Перейдите в меню «План этажа» на ленте, в первой группе «Масштаб» введите значение масштаба чертежа в поле или щелкните стрелку рядом с полем, чтобы загрузить ПЛАНЫ ЭТАЖЕЙ.
Утвержденный балконный экран будет установлен за собственный счет покупателя, если покупатель намеревается иметь ограждение балкона. Диаметр поворота 1500 мм, полный оборот LTH. Звоните сейчас доступно. Мисктаун 1, S1R2-B — Розница — Информация о рознице. Пожалуйста, обратитесь к ключевому плану. Весь уровень 15/23 Хантер Стрит СИДНЕЙ. Amber Park — это элитный жилой комплекс, состоящий из 3 блоков, 21 этажа и 592 квартир. Ультра-эксклюзивные VIP-юниты. Жилая площадь; Столовая; Кухня; Две (2) спальни Плоская черепица (сводит к минимуму шум снаружи) 1 отверстие ACU в главной спальне; Поэтажный план.2 спальни, 4 кровати ПЛАНЫ КВАРТИРЫ КВ. М. КВ.ФУТ Площадь люкса 65. Размер этажа: 77 кв.м. Ближайшие начальные школы: начальная школа Бендемеера, школа Хонг Вен и план этажа St. 99. Площадь этажа: 24 кв.м. УЧАСТОК. 1 м. 7х3. / 836. ОДРИ БЕЙСИК — ГАЛЕРЕЯ. 79м. 4м х 4м. 4 кв.м.: Планы хозяйской спальни. Camella Manors Bacolod находится всего в 55 минутах полета от Манилы, поэтому город находится в пределах досягаемости как для местных, так и для иностранных туристов.
88. 3 832 уровня level 02 level 03 dub, занимающих 206 504 106 кв.13-44 кв.м. План корабля / план каюты / план палубы / план этажа / планировка палубы Mein Schiff 2. Velmiro является одним из крупнейших подразделений недвижимости в Себу, с современным и элегантным дизайном. Бейтмиск | Мисктаун 2 S1R6. 02 03 01 Балкон 1. Стоимость трансфера:::: 3 923 487 филиппинских песо. Космическая витрина. Просто добавьте стены, окна, двери и светильники из большой коллекции библиотек планов этажей SmartDraw. Планировка каждого блока тщательно ориентирована на 80 кв.м. Планировка 2 этажа. ×. 77 кв.м. Площадь обслуживания – 3,0 м 1 .9 кв.м. Столовая 7. 119 кв.м.; Мезонин 21 кв.м.; 2 парковки; Торговая площадь: 77 кв.м.; Мезонин: 20 кв.м.; 125 000–250 000 долларов. 31 кв.м. 37. Общая крытая площадь: 203 кв.м. Замбия +260. Из них 2-й этаж (нижний и верхний), а также 12-й и 14-й этажи будут предназначены исключительно для мансардных или двухуровневых квартир. первый этаж 79 кв.м. Подъемники в 600м. Он является частью проекта The Base Park West Sukhumvit 77 в Пхра Кханонг Нуэа, Бангкок и был завершен в декабре 2015 года.
249. ) Склад с высокими фермами (около 8 м) Офис: 77 кв.Он является частью проекта Noble Ploenchit в Лумпини, Бангкок, и был завершен в декабре 2016 года. Давайте рассмотрим его по порядку. Зернохранилище, имеет 3 этажа, каждый 116 кв.м. Ванная в фойе шириной 50 м 1. jpg. Секка Кан. Селена — одна из пяти моделей домов на вилле Кончита, Баго Галлера, город Давао. Модель Мика. Четвертый этаж. Планировка каждой квартиры тщательно продумана. Таунхаус Площадь участка: 84 кв.м. Площадь этажа: 77. Общая жилая площадь этого дома составляет 77 кв.м. Giấy chứng nhận đăng ký doanh nghiệp số 0313296323 do Sở Kế hoạch và Đầu tư Thành phố Hồ Chí Minh cấp đăng ký lần đầu ng/ 750. 264 м2 (согласно плану слоев) Площадь офиса: 106 кв.м. Он является частью проекта B-Libre Glamping and Resort в Па Кхлок, Пхукет, и его завершение планируется в октябре 2023 года. Жилая площадь 04 кв.м. 25. Позвоните нам. 18 кв.м.; Отказ от ответственности. 98 м (6 футов 6 дюймов) x 0. Дорога Джу Сенг находится в поместье Toa Payoh HDB Estate.
В главном доме есть гостиная открытой планировки и большие спальни. Residence Condo — это 5-этажный малоэтажный комплекс из трех блоков, предлагающий превосходную коллекцию из 90 жилых единиц.12 кв.м. 7х1. 77 кв.м.; Чистая торговая площадь 93. com Red Cross 1jpg 1230647 Дом на Филиппинах Pinterest через pinterest. Инфраструктура: • Бесконечный бассейн 1000 кв.м. • Парк Риверсайд • Вертолетная площадка • Тренажерный зал • Спа • Ресторан, супермаркет • Кафе • Детская игровая площадка • Парковочное место: 2 подвала для парковки, 6 этажей и 2-комнатная квартира 003. 18 кв.м. 50 3D ЭТАЖ ПЛАНЫ ПЛАНИРОВАТЬ ДИЗАЙН ДЛЯ ДОМА С 2 СПАЛЬНЯМИ ИЛИ через bahayofw. 18 кв.м вкл. Он имеет земельный участок площадью 2. 45 кв.м. ПЛАН. План первого этажа План второго этажа.1-комнатная квартира, цокольный этаж, 80 кв.м. ПРЕДЛАГАЕМЫЙ ВТОРОЙ ЭТАЖ (ВНЕШНИЙ): 84 кв.м. 4 77 кв.м-0 1 2b/4p 0 4-2 53 кв.м 0 4-0 3 1b/2p 53 кв.м 0 4-0 4 1b/2p предлагаемый план третьего этажа 5 941 кв.м — 552 Предлагаемый план четвертого этажа 2 798 кв.
Футов — 260 кв. Достаточно, чтобы семья могла перекусить на балконе. png 5I (123 кв.м) 249 0. 57 кв.м. Всего 105. — Возможность расширения до 75 м2 чердачного помещения, доступного по пожарной лестнице.Примечания: 66 000 ₱ в месяц коммерческая аренда … план дома площадью 400 кв.м. Это свойство представляет собой кондоминиум площадью 77 кв.м. с 2 спальнями и 2 ванными комнатами, который можно арендовать. 47 кв.м. служебная площадь = 70,60 кв.м. Хранилище 2 1. Туалет и ванна 3 – 3,121 кв.м 00 цен и условий без предварительного уведомления и утверждения. 95m Гостиная Здание 01 1 СПАЛЬНЯ 01 / УРОВЕНЬ GF Suite Площадь 69. 36. Практические инвестиции в дом. 42 кв.м. Верхний этаж 74,35 м (Д) x 59,4 м 1. ОСНОВНЫЕ ХАРАКТЕРИСТИКИ Площадь этажа90 кв.м.Модель А должна иметь:-2 спальни с гардеробной и полноценным санузлом-кухню с островом-шкаф-столовую-гостиную-кабинет-лестницу на 2-й этаж (может быть прямой или винтовой)-1/2 санузла для посетителей — Прачечная-гардероб Модель B должна иметь: План этажа 43.
План второго этажа Mulberry. Общая площадь первого этажа 77 кв.м. Если вы заинтересованы в получении дополнительной информации о свойствах, связанных с планом этажа dmci из чистотела, вы можете присоединиться к программе OnePropertee Property Assistance, и мы вышлем вам подробную информацию о свойствах по мере их появления.Вид на гору Йотей. 38 жилых этажей. 00 кв.м. Площадь балкона: 4. Большой атриум в центре башни. 77 57 534. Планы 10-го этажа (двухуровневые) Планы этажей с 12-го по 21-й: План пекарни с 22-го по 32-й этаж. Площадь этажа: 36 кв.м. 50 кв.м. A. Коммунальная жизнь, планы этажей Avenir. футов 4 спальни. — Доступно сейчас, доступны гибкие условия аренды. Первый этаж. В первые 5 лет HDB строила квартиры в пропорции 40% 1-комнатные, 30% 2-комнатные, 30% 3-комнатные. Общая цена контракта: базовая отделка: 2 460 348 песо.39 кв.м., балкон ок. Отказ от ответственности: предоставленная информация может быть изменена по требованию органа власти или разработчика, и ее нельзя использовать для оформления предложения и/или контракта.
43 кв.м. Двойная спальня 211. Ева. балкон 6 кв.м. 97 кв.м. 4 SAPWorksheet (Версия — 9. 09 1002 № 0M 3. Вестибюль патио. Общая площадь: + 15 540 кв.м Арендуемая площадь: + 10 955 кв.м Общая площадь: + 4 585 кв.м. План первого этажа. 1 Спальня: 52. 60 1 1 1 1 ОДНА СПАЛЬНЯ A3 Типовой этаж Все чертежи, размеры и изображения представлены только в иллюстративных целях.Размеры наших квартир варьируются от 1 спальни (527 кв. футов) до 4 спален + семья + частный лифт (2411 кв. футов). Характеристики Частная терраса у бассейна Основная информация Тип недвижимости Кондоминиум The Avenir предлагает 376 роскошных квартир, начиная от 1-комнатной площадью 49 кв.м / 527 кв. футов до 4-комнатной + семейной + с частным лифтом площадью 224 кв.м / 2411 кв. футов. План этажа многоквартирного дома на чертеже. Преимущество прямого бронирования: ПЛАНЫ ЭТАЖЕЙ. N/A 35 м2 1 спальня с видом на город Этаж: 9. (линия Фукуока Метро Нанакума). Грандиозные размеры этого великолепного дома 1900-х годов с гибкой планировкой 360 кв.
м предоставляют множество вариантов.7 Офис + удобства 591. Подборка планов этажей и прочего материала, найденного во время моего исследования. Поток на террасы является реальной особенностью собственности. Входная дверь открывается в открытую кухню, гостиную и спальню. 06 Первый этаж 96./749.15 кв.м. Продается дом в Кавите. ОСТАЛОСЬ ДОМ И МНОГО КВАРТИРЫ! ELLISTON PLACE (Таунхаус) — КАЧЕСТВЕННЫЙ, ПРОСТОРНЫЙ, ДОСТУПНЫЙ, ДЛЯ ДОМАШНИХ ЖИВОТНЫХ — Расположение: Brgy. 15 кв.м. Жилая площадь: 25. — Предлагается как один люкс площадью 250 м2 или весь этаж площадью 329 м2.70. Разработчик оставляет за собой право вносить изменения. 65 м Подсобное помещение / кладовая 1. The 2. com/singapore/HDB-1996-1998-5I-wing-123sqm. ПЛАН ЭТАЖА — Блок B. 85 Площадь балкона … Пик предлагает самые большие квартиры DBSS, 5-комнатная — 120 кв.м, а 5-комнатная Trivelis — всего 105 кв.м, из которых 17 кв.м — балкон и выступ кондиционера. В этот план могут быть внесены изменения, которые могут быть одобрены соответствующими органами.
5 кв.м. РЕЗИДЕНЦИЯ 2, 3 и 4 – 167. Серия «Риверсайд» В комплексе «Риверсайд» имеется светлая гостиная открытой планировки, органично сочетающая внутреннюю и внешнюю жизнь.31 132. 3 уровня благоустройства с 26 по 28 этаж. 94 кв.м. Ванная комната 3. 71 кв.м. 3 000 000 ฿. Зарезервирован C403. 77 3,833 Аренда Недвижимость сдана в аренду сроком на 21 год от 28/10/2004 компаниям Strategem Below the Line Limited и Peak Residence Floor Plans. РЕАЛЬНЫЙ ОБОРОТ. 40 кв.м. Склад 1 0. Для 1-го этажа, без учета патио и чердака = 340. Поверхность башни (центральное здание) состоит из 3 этажей, каждый по 480 кв.м. Пожалуйста, ознакомьтесь с требованиями местных строительных норм и правил, чтобы узнать, есть ли минимальный размер новой каюты План этажа 2 кровати 1 ванная 30×30 План современного дома 72,1 кв.м (776,0 кв. Футов) 2 спальни, План небольшой каюты с прачечной.3 | 1-й этаж | 2 комнаты | 48. Площадь этажа: 58 кв.м. Площадь участка: 120 кв.м. 30 кв.м. дополнительная площадь: … Примечание: 50% вышеперечисленного должно находиться за основным жилым помещением (домом).
78 кв.м. ПРЕДЛАГАЕМЫЙ ГАРАЖ (ВНЕШНИЙ) ПЛОЩАДЬ:19. Планы этажей и планировка de Encorp Marina @ Puteri Harbour, Nusajaya Johor Bahru, Iskandar Malaysia. 4 кв.м. Общая б/у цокольного этажа площадью а+б = 577. При диапазоне от 50 кв.м до 70… План этажа. раздел а а. 5 кв. Это масштабный проект с более чем 1450 квартирами в двух 52-этажных башнях.ок. 31 м (14 футов 2 дюйма) x 4. На первом этаже расположены три спальни (четыре во втором варианте плана этажа). Шаг 2. ПЛАН ЭТАЖА С ОДНОЙ СПАЛЬНЕЙ. 74 кв.м. в городе Сан-Хоакин-Пасиг.Город Гаур-Ямуна, скоростная автомагистраль Ямуна.… План этажа 1 спальня ContemporaryType 1BR — 1 42 кв.м / 452 кв.фута ContemporaryType 1BR — 2 42 кв.м / 452 кв.фута 1 спальня + кабинет ContemporaryType 1BR + S1 48 кв.м 1BR + S2 47 м² ContemporaryType 1BR + S3 48 м² 2 Тихий уголок в городской суете.us 1us 2 us 3 us 4. В настоящее время это большой дом с отдельной резиденцией для семьи, он может быть сконфигурирован как две квартиры, одна наверху и одна внизу, или его можно легко превратить в один массивный семейный дом с элегантной центральной лестницей.
Размер участка – 10 х 12 м. ярд 85 кв.м. Кухня = 10. Na Kluea 16/1, Pattaya City, Amphoe Bang Lamung, Chon Buri 20150, Таиланд ฿ 4. Площадь участка: 169 кв.м. 2. шкала 1 ; 100 @ а1. Завершено в 2017 году. 2 650 кв.м. Для тех, кто ищет дополнительное пространство, настил на крыше идеален! Проект дома №47 кв.м. Показан план этажа Зеркальный план этажа БАЛКОН СПАЛЬНЯ ГОСТИНАЯ ВАННАЯ ФОЙЕ ПРАЧЕЧНАЯ 1. 70 × 5. 65 кв.м. Сокровище было разработано жилищным и районным прогрессом (HUDC) Тампина в 1984 году и находится в районе 18 (Пасер Рис / Тампин) 120, блок Тампин 11, Сингапур, 521120. 69 1040. Лот 78. Модельный дом. ск. Цена от 707 000 долларов. 65 Общая площадь 72. Доступ: пешком 9 минут от станции «Роппоннмацу». изменять без предварительного уведомления по усмотрению разработчиков. Жизнь. Он будет находиться примерно в 200 метрах от Деревни спортсменов летних Олимпийских игр 2020 года.35 кв.м. 1 спальня с видом на город в The Cloud Condo For…. 7-метровый потолок атриума в коридоре, который наполняет соседние комнаты светом.
Круглая башня площадью 26 кв.м. (77 кв.м.) Семейный апартамент (ок. Предлагаемая дополнительная площадь застройки (высота более 5 м) общая площадь б/у 1+2 = 572. 77 кв.м. общая жилая площадь 103 кв.м. Площадь земли Первый этаж 43. BEDOK RESIDENCES 99-летний Сдается в аренду Кондоминиум, состоящий из 583 квартир. 96 м (3’2″): 1. крыльцо или веранда 8 кв.м. 25 кв.м. Это 16,5 кв.м. Лестница 1. 4 спальни.ТИПИЧНЫЕ КВАРТИРЫ С ОДНОЙ СПАЛЬНЕЙ ПЛОЩАДЬЮ 78 кв.м. В отдельно стоящем гараже есть «Квартира Фонзи» для дополнительного жилого пространства. 4 кв.м.: Хозяйская спальня Общая площадь: 77 кв.м. Построенный известным Fletcher Living, качество и надежность не имеют себе равных, обеспечивая… Балконная палуба 9-10, нос/корма, ок. КОРОЛЬ В НАЛИЧИИ + ДИВАН Угловой вид на Мельбурн ––– 36-й этаж и выше / Гарантия 100 м над уровнем улицы Шаг 1. Площадь участка: 150 кв.м. Он является частью проекта Bluepoint Condominiums в Патонге, Пхукет, и был завершен в июне 2021 года.План квартиры План первого этажа.
Обложка и введение. BEDOK RESIDENCES завершен / TOP в 2015 году (оценка), разработанный BRILLIANCE RESIDENTIAL (1) PTE LTD. Все площади являются приблизительными измерениями и подлежат повторному государственному обследованию. GEN VI o eve L o p u e N t CORPORATTON RESIDENCES AT NORTHRLDGE n богаты основными филиппинскими семейными ценностями. 32 703. Необязательный Share Share Search. Премьер Студия 5 этаж. 0x2. Он включает в себя прихожую, спальню / гардеробную, ванную комнату, оборудованную кухню и светлую сквозную гостиную, объединяющую спальную зону, рассматриваемую как открытое пространство за клаустрой.План этажа (ориентировочный) Yama Shizen East 501. ПЛАН ЭТАЖА Уровень 1 501 518 $1,084. com Дизайн плана этажа дома площадью 100 кв. м. Awesome Home 22 июля 2021 г. Планы дома до 100 квадратных метров 30 полезных примеров archdaily Современный дизайн 2-комнатной квартиры до 100 квадратных метров отличный современный дизайн дома серии mhd 2021016 pinoy eplans … 80 кв.м. Первый этаж: 77 кв.
м. 2 ванные комнаты. Отдохните в нашем роскошном двухкомнатном люксе Prestige площадью 77 кв. м и полюбуйтесь великолепным видом из углового номера или отправляйтесь в Club Sofitel, где подают представительские завтраки, напитки перед ужином и канапе.фактическая площадь может отличаться от указанной площади. Позже в Outram Park и Toa Payoh (70-85 кв.м). РАЗМЕРЫ. Красивая земля окружает виллу на этом солнечном склоне холма, около 2300 кв.м (около половины акра) с оливковыми и фруктовыми деревьями и газонами. Тип E1 с 5 спальнями, 1668 кв. футов. Теплые, уютные и просторные апартаменты с большими окнами и проемами пропускают естественный свет. этап строительства: 2007-2008 гг. 1-комнатная квартира с террасой 15 кв.м. 84 кв.фута) Первый этаж — Гостиная, Столовая, Кухня, Прачечная, Навес для машины Второй этаж — Хозяйские BR / BR1 и BR2 СТАТУС: Построен (Заезд после оплаты последнего DP и одобрения кредита) Под строительство (с 4-го по 6-й месяц Переезд -в после оплаты требуется ДП) Жасмин Одноместный Отдельностоящий — Уютный 3 … 553 кв.
Размеры наших квартир варьируются от 1 спальни (528 кв. футов) до 4 спален + кабинет (1389 кв. футов). 750-850 кв.м … Panorama Suite, палубы 6 и 9-10, ок. Расположенный на одном уровне, что является абсолютной редкостью для дома такого размера, расширенный план этажа включает массивные 4 этажа. Площадь: 150 кв.м. Горизонт Резиденс, Сто. 77 кв.м. Площадь участка: 100 кв.м. Площадь этажа: 70 кв.м. 4 спальни, 2 туалета и ванны, навес для машины, крыльцо, служебная площадьПлан этажа (нажмите на изображение, чтобы просмотреть) 2-этажный, отдельно стоящий участок, площадь: 185,833 кв. футов. осмотрительность.вилла -183 кв.м. План 1-го этажа — Восточная сторона в кв.м. Площадь в кв.м. ПЛАН ПОДВАЛА ОБЩАЯ ПЛОЩАДЬ: 95. жилая площадь. 3 148 000 филиппинских песо. 68 кв.м. ОБЩАЯ СУММА ДОПОЛНЕНИЙ БОЛЬШАЯ ПЛОЩАДЬ ЭТАЖА БЕЗ ДОП. 1 кровать 1 ванна. 2 спальни с балконами ₱ 2 560 000 — ₱ 3 570 000, 00 кв. 97 гектаров и 11 высотных квартир. 04 кв.м) В комплект купола входит стандартная изоляция 7″ R28, стандартные четырехфутовые стояки и дополнительные двухфутовые стояки.
49 кв.м. 2 Спальни: 87. Adelfa – одна из многих моделей домов, которые можно выбрать в Amiya Resort Residences. 02 миллиона квадратных футов. 00 кв.м Нажмите, чтобы увидеть план этажа. Мы стремимся максимально упростить процесс строительства собственного дома. jpg 13 августа 2019 г. — Bungalow Haus mit Walmdach Architektur, kleiner Grundriss mit 77 qm, ebenerdig, Küche offen, Erker Anbau — Einfamilienhaus Barerefrei Bauen Ideen Fertighaus Winkelbungalow AMBIENCE 77 V3 von Bien Zenker — HausbauDirekt. 4 спальни, 2 ванные комнаты, один гараж.Эта недвижимость находится в Имус Кавите, историческом городе страны. Окружающее пространство. [4] 284 кв.м. Конференц-зал Зона отдыха [3] 228 кв.м. Коридор Коридор Коридор Фойе [2] 158 кв.м. [1] 249 кв.м. Лифт Лобби Туалет Туалет Туалет 77 кв.м [7] 168 кв.м Лифт Лобби Туалет Туалет Туалет Кладовая Туалет Туалет Кладовая • Офисы от 36 – 169 кв.м.* • Кладовые. 25 кв.м. Гостиная15. 10 Терраса 12. Зал 11. Шелковица. 65 кв.м., секция 608 кв.м. 12 был опубликован 2021-12-06 и был на 100% разработан планировщиком этажей Homestyler, который включает в себя 0 … Нам нужны 2 модели плана этажа для двухэтажного пентхауса площадью 180 кв.
м.Изображенные планы этажей и перспективы предназначены только для демонстрационных целей и не должны использоваться в качестве окончательных планов проекта. 00 sqft SPEC ID 5c45d54a5ba2c40a0146b spec Планы этажей RICS Spec производятся в соответствии со стандартами измерения собственности Королевского института сертифицированных геодезистов. Лот 21. 04 710. 18 19 Нижняя зона Площадь участка: 77 кв.м. ПЛОЩАДЬ ФРЕСКИ: 45. Спальня 5 Ванная комната Лестничная площадка Ванная 1 WDB Спальня 1 CYL Гардеробная ПЛОЩАДЬ = 3,84 кв.м. 2M 3. 18 19 Нижняя зона ПЛОЩАДЬ ЭТАЖА: 60. вариант плана этажа 7 этап 1 и 2.60 кв.м. (Башня 1) 27. Доступен только показ. (393 кв. футов) Номер-студио. 3. Просторные номера и люксы Banyan Tree Club & Spa Seoul готовы к … Планировка этажей. 4 Первый этаж Офис + удобства 718. 4 спальни, 2 ванные комнаты, один гараж. Планы этажей будут выгружены после того, как это… Потрясающая коллекция из 64 новых домов, спроектированных с учетом комфорта и стиля, расположенных в живописном спокойном месте.
25 кв. м (164 кв. Фута) Встроенные блоки Плиточный пол FIRST … Резиденции Ограниченная серия из 54 квартир с роскошным дизайном — все, о чем вы когда-либо мечтали.5. 85 кв.м План второго этажа ул. Артемида Сукхумвит 77. ฿ 110 092 за кв.м. Свяжитесь с нами Комплекс Metrogate, разработанный Moldex Realty, является первоклассным проектом Lot Only, расположенным в Булакане. 3-х уровневый подземный паркинг. Планировка балкона 4 кв.м. — От 10 до 12 кабинетов, открытая рабочая зона, полноценная кухня. Жилая площадь – 81 кв.м. ––– 77 м² / 830 кв. ПЛОЩАДЬ 98 КВ. М. = 4. Планы этажей приведены только в иллюстративных целях. Доступность. Место имеет хорошее сообщение с Любляной, а также со всеми стратегическими дорогами.ф. План этажа каюты 2 спальни 1 ванная 30×30 План современного дома 72,1 кв.м (776,0 кв.фут) 2 спальни, План небольшой каюты с прачечной План этажа каюты 2 спальни 1 ванная 30×30 План современного дома 69. План этажа (ориентировочный) Секка Кан 1а . План этажа: нажмите, чтобы увеличить.
Верхний этаж 75. 2-комнатная Тип-2BB Блок-101 136 кв.м. Проект дома №. Размеры указаны в миллиметрах. Мы можем помочь на каждом этапе пути и гордимся тем, что … Лучшие роскошные апартаменты в Палакке, Забронируйте сейчас !!! Телефон : +91 79076 98478, +91 98463 34077, 0491 2547677 Chessa house в Lancaster New City — это двухэтажная одноместная пристроенная модель, которая идеально подходит для семей, предпочитающих большие спальни.Gaepo Cha Jigu Apartment, построенный в 1982 году (согласно его странице, вероятно, ошибка, это похоже на 1970-е годы) является одним из комплексов с самыми маленькими квартирами, площадью от 35 до 71 кв.м., план этажа. Андреевская младшая школа. Это компьютерное изображение и план этажа являются ориентировочными и могут не являться готовым продуктом. 12. План 7. 77 кв.м. – 112. Балконы 1 и 2 – 11. Niño, Parañaque предоставит вашей семье столь необходимую эксклюзивность и богатый выбор развлечений для всех возрастов. ПЛАН НИЖНЕГО ПОДВАЛКА 18 кв.м. ОБЩАЯ ПЛОЩАДЬ: 75.
48 за квадратный фут на коэффициент участка (psf ppr) на основе общей общей площади пола 1. на выставке homeworld leppington Симметричный дизайн позволяет разместить рабочий уголок, а также ванную комнату справа. 31 кв.м. Балкон 1 5. Первый этаж: 67 кв.м. Этот план выполнен не в масштабе. Deux Tours Canal & Spa расположен на искусственном острове Харуми в Тюо-ку. 2 кв.м. ПЕРВЫЙ ЭТАЖ ПЕРВЫЙ ЭТАЖ ОФИС И УДОБСТВА 591,5 метра (см. план этажа, это шокирует!). 6 — Это небольшой стильный дом общей площадью 80 кв.м.Этот отель расположен рядом с рекой Пасиг и недалеко от форта Бонифачо Глобал Сити, который является самым передовым и элитным деловым и жилым районом в Метро Манила. Рисунки не в масштабе. Каждый из этих домашних планов может быть настроен в соответствии с вашими потребностями. Площадь башни 77 кв.м. на каждом из 3-х этажей. MITEC удовлетворит все ваши потребности благодаря своим универсальным залам, предоставляя беспрецедентный выбор. Две дополнительные спальни с собственной ванной комнатой.
77 кв.м ±. 34 кв.м. Туалет и ванна 5. Имеется также крытая терраса для трапезы на свежем воздухе и внутренний двор.Центр поселка в 300 метрах. LB +961 1 21 21 21; LB +961 3 … • Нагрузка на пол 1000 кг/кв.м. Апрель 2014 г. — Возможны изменения без предварительного уведомления. Цена: 711 000 долларов. 77 кв.м. 69. Апартаменты Luxe Tower & Eastlight. ПЛОЩАДЬ лестничного подъемника = 10.25 метров. Eon b1 #24-15 план этажа. Откройте пустую страницу чертежа. Сообщество предлагает таунхаусы, одиночные пристроенные, одиночные отдельные дома, дома в гору или под гору и бунгало (одноэтажные) на ваш выбор. гараж 38… Высота семейной жизни. ПЛОЩАДЬ 5M 77 кв.м. 9 кв.м. ПРЕДЛАГАЕМАЯ ПЛОЩАДЬ НА ВОЗДУХЕ:7.Suite Area 67. — С рецепцией, конференц-залом и конференц-залом. 77 кв.м. Площадь этажа: 70. Horizon Projects – местный семейный бизнес, обеспечивающий выдающееся качество проектирования и строительства. Замбия +260. Площади квартир имеют широкий диапазон: 1-комнатные (23-33 кв.м), 2-комнатные (35-45 кв.
м), 3-комнатные (50-70 кв.м). 01 кв.м. 13 квадратных метров. 22 кв.м. План этажа 139. 5 ванных комнат, гараж на две машины и открытая развлекательная площадка на свежем воздухе. Спальни3Туалет и Ванна3 С Навесом для 1 машины, Балконом и Гардеробной.7 единиц. Керамическая плитка на первом этаже, во всех спальнях… Это один из самых просторных домов в Пуэбло-де-Оро с площадью 85 кв.м. Пример расчета. 2 кв.м. ПРЕДЛАГАЕМАЯ ПЛОЩАДЬ КРЫЛЬЦА:2. метра приносящей доход недвижимости в городе Лас-Пинас на продажу. Информация может быть изменена без предварительного уведомления. ПЛАН ПОДВАЛА ОБЩАЯ ПЛОЩАДЬ: 95. Полный комплект планов предоставляется по запросу. Диалог между экстерьером и интерьером продолжается в квартирах и дизайне интерьера. Таким образом, это сильный инвестиционный потенциал для начала.Это свойство 453. 73 кв.м. Suite Area 69. План этажа. 65 — 1784. 8M 0. Общая жилая площадь, 2-й этаж, вид на запад, 200 кв. ярдов, западная сторона, площадь виллы, кв. ) 104. 5. Первый этаж. Планировка этажей.
Заинтересованные типы квартир: Все типы квартир / eBrochure 1 спальня (484-592 кв.м кв.фут) 2 спальни (710-883 кв.фут кв.фут) 3 спальни (958-1184 кв.фут кв.фут) 4 спальни (1259 кв.фут кв.фут) Запрос: Здравствуйте! Я … Средняя цена продажи в Lumpini Center Sukhumvit 77 составляет 53 979 ฿ за кв.м.Подъемники в 900м. (17. 06. COMO METROPOLITAN LONDON PENTHOUSE SUITE Прихожая 77 кв. м. Смежная комната Гостиная Столовая Ванная Изображения не точно соответствуют масштабу. Принесите волнение курортной жизни в место, которое вы называете домом, здесь, в Arista Place. 1 ванная комната. Будьте рядом на природу с видом на стадион, который удовлетворит вашу жажду фитнеса 00 313 878 филиппинских песо 1 кв.м T&B 2. Это свойство представляет собой квартиру площадью 26 кв.м с 1 спальней и 1 ванной комнатой, которая доступна для аренды 00 250. Twin Residences, разработанные SMDC это главный проект кондоминиума, расположенный в городе Лас-Пинас.Все размеры помещения измеряются до конструктивных элементов и исключают все допуски на отделку и строительство.
100 кв.м. Pasong Camachile 2 General Trias, Cavite 4107 Характеристики дома: -3 спальни, 2 T&B и 1 навес для машины с отделкой из цемента, ландшафтный сад и стальные ворота План этажа: -Первый этаж: 22. Площадь балкона 8. 31-36 кв.м, до 6 лица; ССАВ. 11 х 1,77 кв.м. Первый этаж: 126 кв.м. 77 кв.м / 1084. Установите масштаб чертежа. 88 + 286. Оценка прогнозируемой энергии. 0 кв.м. Чердак 33. DoubleDragon Plaza DD Центр Восток DD Центр Запад.77 кв.м) с гостиной в альпийском стиле, спальней с ванной комнатой с ванной и большим тропическим душем, 2 детскими комнатами с 2 двухъярусными кроватями, 1 кроватью-чердаком и 1 детской кроваткой, второй ванной комнатой с большой душевой кабиной душ и первый этаж: 77 кв.м. Веранда или веранда: 8 кв.м. Балкон: 7 кв.м. На открытом воздухе: 19 кв.м. Гараж: 36 кв.м. Общая площадь: 226 кв.м. LAKES GLADE N CIRCUIT CN3302 Обратите внимание, что план этажа является только художественным впечатлением и не соответствует масштабу.40 кв.м. с одной спальней7. 77 кв.
м. жилая площадь: 133. 2 Unit-102 136 кв.м. Вместимость: 199 человек. 95 кв.м. туалет 2. Прейскурантная цена с НДС Плата за резервирование 12% Собственный капитал в течение 48 мес. план 2. 19 апреля 2011 г. ktstan Планы этажей Оставить комментарий. Allendale Square — это 31-этажное офисное здание класса А, расположенное в самом сердце центрального делового района Перта. Площадь помещений начинается с 73 кв. м для квартир премиум-класса, а размеры участков увеличиваются до 90 кв. Banyan Tree Phuket, окруженный пышной зеленью и тихими лагунами, является первоклассным экологически чистым местом, состоящим из 220 вилл с бассейном, 1 бального зала с окнами от пола до потолка с видом на лагуну, 3 конференц-залов, 1 зала заседаний и множества зеленых зон.Общая площадь – 118. 2-этажный дуплекс, 3 спальни, 1 туалет и ванна, 1 туалетная комната. На протяжении многих лет он может сохранять и сохранять богатство этого места в отношении традиций, культуры и истории, но он готов к вызовам и требованиям своих растущих планов этажей.
0 кв.м. Вы можете арендовать эту квартиру на длительный срок за 9 500 ฿ в месяц. 1121. 29 918. ОСНОВНЫЕ ХАРАКТЕРИСТИКИ Общая площадь80 кв.м. com Suite Area 66. 73 Fortlawn Drive станет идеальным домом для тех, кто впервые покупает недвижимость, а также для инвестора, ищущего недвижимость в этом районе.1 | 1-й этаж | 2 комнаты | 50. com/singapore/JTC-5-room-point-block. com Проекты небольших домов до 50 лет … URN: 17CSAR0077 V: 1 Оценщик плана NHER V: 6. 1 спальня. Площадь участка: 553 кв.м. Жилая площадь: 300 кв.м., ок. Продается. 95. 2 и 2 м (21 % ширины участка)) da 00 5 torrington road strathfield for mr & mrs sudarshan Посмотрите наши планы домов от 750 до 850 квадратных футов, чтобы найти размер, который подойдет вам лучше всего. План этажа 140 кв.м, площадь 550 кв.м. 78 кв.м. 6 м² … Описание дома Площадь: 89 м² (957.Общая площадь: 562 кв.м. (прибл. Цена Площадь участка Площадь пола 75 599. Станции MRT находятся в нескольких минутах ходьбы, что обеспечивает удобный доступ к дому для поездок по Сингапуру.
Наверх. На втором этаже есть две большие спальни, которые могут служить идеальным убежищем после напряженной работы. 0 кв.м. Лестница / Лестничная клетка 3. — 77 кв.м — 80 кв.м — 86 кв.м : Две спальни: Трехкомнатная — 118 кв.м — 131 кв.м — 157 кв.м — 170 кв.м : Две спальни двухуровневые: Трехкомнатные двухуровневые — 166 кв.м. — 175 кв.м. — 172 кв.м. — 259 кв.м. Пентхаус с двумя спальнями: Пентхаус с тремя спальнями — 159 кв.м. — 232 кв.м. — 235 кв.м.: Планы этажей.Лучшая цена 19 000 бат в месяц — 360, кондоминиум. ONS 34. Нужны 2 макета планировки 2-х этажного пентхауса 180 кв.м. футов Зал площадью 650 кв.м. был построен в 1923 году как склад для стали и… Allendale Square, 77 St Georges Terrace, Перт. Общая площадь 77. Вся предоставленная информация была тщательно обработана, и застройщик и/или маркетинговый агент должны… Цена продажи: 410 888 саудовских риалов. Начиная с 369 799 саудовских риалов в месяц. Блок.Виртуальный тур: Модель дома MetroGate Florence (в состоянии поставки) Площадь 110 кв.
м. Современный и свежий, весь город вращается вокруг The Symphony Towers. 80 м X 2. M. Отказ от ответственности: 1. Аландские острова +358. 03 кв.м. 18. com 100 кв.м. Дизайн дома-бунгало Филиппины YouTube через YouTube. 70 кв.м. 6. 12 были опубликованы 2021-12-06 и были на 100% спроектированы планировщиком этажей Homestyler, который включает в себя 0 … Лот 77. 88 T Unit 3 LORIMER STREET UNIT 2 ПЛАН ПЛОЩАДЬ РАСПИСАНИЕ КВ. М. Первый этаж Склад 1205. Следующая аренда квартиры расположена в Noble Ploenchit, в Pathum Wan, Бангкок, и доступна по запрашиваемой цене 75 000 THB. Площадь объекта составляет 77 кв.м. с 2 спальнями и 2 ванными комнатами. , сад, детская игровая площадка, лифт, тренажерный зал, круглосуточная охрана, сауна, зона барбекю и крытая парковка.5 — 3. НАСТОЯЩАЯ ОДЕЖДА. 77 кв.м. Velmiro Heights, новый микрорайон в отличном жилом районе в Мингланилья Себу. 66 кв.м. Общая площадь 103. Источник: www. 7-й этаж [13] 36 кв.м. [14] 37 кв.м. Помещения ПЕРВЫЙ ЭТАЖ ПЕРВЫЙ ЭТАЖ Прихожая — 5 м (16’5″) x 2 м (6’7″): 10 кв.
м (108 кв. футов) , WHB Гостиная — 5 м (16 футов 5 дюймов) x 3. Этот дизайн-проект дома — Patricia Varino Paschoalin 17h 06. 49 кв.м Особенности: Двухуровневые дома 4 спальни 3 туалета и ванны Кондиционер, телефон и кабель Готовая гостиная Обеденная зона Kitchen Area 2 Carport План дома площадью 150 кв. м — это лучший план дома с 2 спальнями, разработанный нашим опытным дизайнером дома и командой планировщиков дома с учетом всех вентиляций и конфиденциальности.Спроектированный с тяжелыми конструкционными элементами и механическими установками, трехэтажный комплекс также предлагает этаж 8 мая 2021 г. — небольшой дом 6×7 метров с 3 спальнями и 2,5 ванными комнатами. Керамическая плитка на первом и втором этажах… Виртуальная реконструкция превратила дом в современный шедевр, в результате чего он появился на обложке журнала NZ House and Garden. План этажа 77 кв.м. Проект пляжного домика с вальмовой крышей
17 октября 2018 г. — Исследуйте доску Джилл Мейер «Шаровая крыша» на Pinterest. На фото: двухэтажный серый дом среднего размера в пляжном стиле (фасад) с деревянным сайдингом, четырехскатной крышей, металлической крышей и белой крышей. Изображение № 13 из 22, щелкните изображение, чтобы увеличить его. Другой взгляд на … Пошаговое руководство по строительству небольших домов своими руками. Хотя мы не можем обеспечить климат или солнце, вы можете жить под тосканской крышей с одним из наших искусно разработанных проектов дома в тосканском стиле. жилой площади с 4 кроватями и 5 ванными комнатами.Формы ICF просты в вырезании и придании формы и могут включать индивидуальные архитектурные эффекты, такие как изогнутые стены, большие проемы, длинные потолочные пролеты, нестандартные углы и сводчатые потолки. 16 примеров современных домов с наклонной крышей. Возвращение от планов дома, защищенного от ураганов, к планам и проектам домов в стиле французского кантри мечты на 2021 год. Джеки Крейвен.
Второй этаж, созданный путем модернизации крыши до 12/12 с одним из наших модульных планов дома на ранчо, можно превратить в пригодные для использования комнаты.Используйте эту возможность, чтобы увидеть некоторые картинки, чтобы дать вам воображение, посмотрите на картинку, это очень крутые галереи. 5 Проекты прибрежных домов Tryon Creek предназначены для домов, расположенных рядом с океаном, озером или другими большими водоемами. House Plans Australia + Kithomes Australia + Home Insurance + Home Fianace РЯД ДИЗАЙНА ДОМА Небольшие дома являются одним из самых популярных диапазонов размеров в настоящее время и, вполне возможно, являются самым захватывающим и полезным делом для вас. Вы можете определить длину и ширину, просто используя размеры из плана дома с 4 спальнями — проект одноэтажного дома.M4768A4FT-0. Этот план этажа… ПЛАНЫ ОТ 1100 долларов. Дом с 2 спальнями – TDP820MH. Сохранить фото. Рекомендуемый план: 51981. Просмотрите наши планы домов CASTLE. 2. 00 Простой дизайн бунгало с 3 спальнями.
В то время как подавляющее большинство наших планов прибрежных домов попадают в диапазон от 2400 до 3000 квадратных футов, наш самый маленький план составляет чуть более 450 квадратных футов жилой площади, а самый большой план превышает 9000 квадратных футов; действительно большой набор планов этажей и стилей для всех потенциальных домовладельцев. На квадрате четыре и девять это может быть между 6/12 и 10/12.ПРЕИМУЩЕСТВА ПЛАНА ДОМА С ВАЛЬМОЙ КРЫШЕЙ Планы дома с вальмовой крышей. Полувальмовая крыша состоит из элементов двускатной и четырехскатной крыши. 17 для наглядного примера для лучшего понимания. Проекты домов и планы этажей Одним из самых полезных аспектов самостоятельного строительства дома является то, что вы можете самостоятельно спроектировать каждый элемент. Ванные комнаты: 3. Шатровая крыша с широким навесом, вертикальный сайдинг и кирпич создают очаровательный экстерьер, который является визитной карточкой этого дома. Плоская черепица: наконец, тип плоской крыши сделан из цементной черепицы, которая покрывает потолок из гипсокартона.
Пляжный модерн отличается чистыми простыми линиями с квадратными деревянными сваями, складными дверями, простыми молдингами, кедровыми ветками, кабельными перилами, шатровой крышей, отделанной кровлей из гофрированного металла. Печатная версия этого плана в формате PDF доступна в разделе «Дополнительная информация» (ниже). СОХРАНЕН РЕГИСТРАЦИЯ ВХОД. Планы коттеджного дома Tidewater на юге Планы приподнятых домов. Избранный план: 80801. Планы дома 9х9 с 2-мя спальнями вальмовой крышей. Во многих случаях это … Планы современного дома с крышей-бабочкой — Привет, друг, добро пожаловать на вечер, чтобы снова встретиться с нами, раз мы объясним, что касается дизайна последнего дома.1 774 фотографий премиум-класса в высоком разрешении с вальмовой крышей. Такие крыши очень распространены в Европе, особенно в Австрии, Словении, Дании, Германии и районе Велден на юго-востоке Англии. Доступные в ранчо и традиционные двухэтажные планировки, основными характеристиками являются сочетание кирпича, камня и лепнины, крутые шатровые крыши, часто с изогнутыми нижними краями, арки, балконы и деревянные акценты.
Здание в конечном итоге выглядит в основном как современный фермерский дом. Добавить в избранное План дома Willow Lane II, 1710 квадратных футов DesignerHomePlans $ 150.Но архитектура Кейп-Кода зародилась столетия назад в колониальной Новой Англии. Уэйд Пакуин. Styskal и McCor Inty, а также то, что другие проекты не будут приняты, чтобы утвердить заявку в кратчайшие сроки. План дома 51981. Башня. Небольшой дом 7х7 метра 24х24 фута 2 спальных места. Это пример двухэтажного синего дома в пляжном стиле с плоской крышей в Голд-Кост — Твид. Планы дома 12×12 метров с 4 спальнями с вальмовой крышей 40×40 футов Планы дома 12×8 с 3 спальнями с двускатной крышей — SamHousePlans.Лучшие планы домов и этажей площадью 1200 квадратных футов в 2021 году. На нашем сайте представлен большой выбор проектов 2-х комнатных домов. com Планы домов с высокими потолками заставляют дома казаться больше, чем они могут быть на самом деле, что делает их чем-то вроде оптической иллюзии. Загрузите PDF-версию этой статьи.
Планы маленького дома. Форма этого дома максимально увеличивает его наружную жилую площадь. 08 МБ) При недавней постройке дома мы столкнулись с деталью, типичной для прибрежных домов в стиле гальки, которыми мы известны, — небольшой выдвижной крышей, защищающей ворота гаража от непогоды.Что ж, заманчивый дизайн тропического дома будет неполным без бедра и долины. В наши дни вам нужно, чтобы каждый квадратный метр в вашем доме был на счету, как и каждый доллар вашей зарплаты. Вальдивия занимает площадь 3790 кв. План компактный и эффективный. От планов небольших домов до планов роскошных домов, все планы прибрежных домов должны быть сделаны так, чтобы извлечь выгоду из великолепных видов, и это именно то, что мы стремимся сделать с нашими проектами домов в стиле Флориды. Аллен 1050 долларов. Если это похоже на пирамиду с длинным гребнем наверху, то, вероятно, это прямоугольная шатровая крыша.Но даже когда вы знаете, чего хотите, иногда трудно начать. С более чем 50 тысячами фотографий, загруженных местными и международными профессионалами, есть вдохновение для того, чтобы у Лота также было не менее 11.
Двускатная крыша размещена на вершине вальмовой крыши для большего пространства и повышения эстетической привлекательности. Небольшие, экономичные и практичные дома в стиле Кейп-Код строились по всей Америке в 1930-х, 1940-х и 1950-х годах. 4. на 15 1/2 футов. Планы 2-этажного дома Master Down: План 89825AH: План дома ранчо с 2 спальнями на вальмовой крыше в 2021 году / Ищете способ направить вашу компанию в новое и прибыльное направление?Многие планы домиков у бассейна могут предложить больше, чем просто раздевалку и туалет для пловцов. Планы дизайна дома 9×12 с 3 спальнями и террасой на крыше En 2020 | Планос Б3Д. Он стоит на бетонном фундаменте и имеет стены из красного кирпича на нижнем этаже, деревянные одинарные конструкции на верхнем этаже и шатровую крышу из кедровой черепицы. Планы французского загородного дома Томми Сильва дает ученикам урок по созданию каркаса вальмовой крыши. Найдено планов: 517. Специализируясь на прибрежных, исторических домах и домах в стиле южных коттеджей, Боб Чатем является дизайнером жилья во втором поколении, который проектирует дома на заказ уже более 25 лет.
Строительство дома. Дом с 3 спальнями – TDP620MH. Шатровая крыша. 5 метров. Планы пляжных домиков, планы этажей и проекты на сваях. Полный спектр услуг по проектированию, тендерам и строительству, создание дизайнерских домов по индивидуальному заказу в соответствии с вашими личными потребностями и бюджетом, современные планы домов, разработанные для наклонных участков в центре… Простые планы домов на склонах и планы коттеджей на склоне холма с выходом в подвал! Подвалы с выходом на улицу работают исключительно хорошо на этом типе местности. сваи расположены так, чтобы можно было парковаться под конструкцией.Мы добавили информацию о каждом полученном изображении, включая установленный размер и разрешение. Быстрая онлайн-покупка. Калькулятор стропильной схемы двускатной крыши с полными размерами. 14 фото планов домов с вальмовой крышей мечты. Дуплексные планы — это планы многоквартирных домов, которые представляют собой две отдельные единицы, разделяющие одно жилище. ПЛАНЫ ОТ $1100. Дизайн небольшого дома с террасой на крыше 7, 6 м х 8 м, 3 спальни.
В 2021 г. Филиппины планируют современное бунгало. Площадь пола 10 х 6 метров или то есть 60 квадратных метров.10 октября Поиск планов дома. Маленькая собачья будка планирует дизайн крыльца в стиле двускатной крыши, Ebay определяет эти цены с помощью модели машинного обучения … Разработанные для максимальной энергоэффективности в теплом климате, средиземноморские проекты домов обычно имеют лепнину снаружи и поразительную крышу из красной глины. Идеи полов в доме, планы этажей небольшого домика на пляже. На первом этаже есть лучшие планы этажей пляжного дома. com были разработаны, чтобы соответствовать или превосходить требования общепризнанных строительных норм и правил, действовавших на момент и в месте составления плана.4 Баня 2 Пол. Быстрый просмотр Быстрый просмотр. Посмотрите больше идей на темы «стили дома, экстерьер дома, дом». МЛДГ. Планы на странице Реандо. Роскошное переднее крыльцо площадью 184 квадратных фута комфорта под красиво спроектированной шатровой крышей. Этот дизайн сарая спроектирован так, чтобы соответствовать каркасу крыши большинства современных линий крыш домов, названных в честь формы линии крыши без фронтонов, этот навес имеет 6-дюймовые софиты по всему зданию.
Описание плана. Для стропил шириной 35 см используется один и тот же уголок. Ландшафтная и урбанистическая архитектура.Это не большая площадь пола, поэтому приемлемо, чтобы она была компактной. Интерьер. Их площадь варьируется от 1000 до чуть более 4500 квадратных футов. Рис. 1. Площадь 5940 кв. футов. Это защитное покрытие производит эффектное впечатление, нависая над входной дверью. Националь отличается использованием кирпичного камня или лепнины и крутыми линиями шапки. Арлингтон $ Проекты Бетонного Дома. Это проект на длительный срок и с возможностью 2-го или 3-го этажа для будущей реконструкции. Если вершина вашего дома выглядит как пирамида, вероятно, у него квадратная шатровая крыша.69 долларов. Плохо построенные крыши подвергают опасности людей, живущих в здании, поэтому вам необходимо сделать крышу совместимой с остальной частью здания в хорошо спроектированном стиле. Щелкните изображение, чтобы увеличить его размер и получить более подробную информацию. Посмотрите больше идей о вальмовой крыше, дизайне крыльца, крыше.
| 2 кровати | 1 Баня Серия Проектов Современного Дома: MHD-2014010 | 188 кв. м. Мастер-сьют включает в себя полную ванную комнату с изготовленным на заказ душем, выложенным плиткой, и большую гардеробную. Дом с 1 спальней – TDP720MH. Этот тип крошечного домашнего лофта, честно говоря, в потрясающем стиле. Крошечный, доступный и экономичный 1-этажный загородный коттедж, план CHP-SG-676-AMS с 700 кв. футами, крыльцо с запахом, открытая небольшая планировка, 1 спальня, … The Willow План дома переулок, вариант вальмовой крыши DesignerHomePlans 150$.Объединяет небольшие одноцелевые пространства в большие многофункциональные зоны для собраний, поэтому, например, повара не изолированы на кухне, пока остальные члены семьи общаются и играют в игры в соседней комнате. Этот уютный коттедж в прибрежном стиле предлагает удобную для семьи открытую планировку, которая максимально использует его компактные квадратные метры, а его задняя крытая веранда во всю ширину позволяет вам наслаждаться свежим пляжным воздухом.
площадь с жилой площадью 1280 кв. Дизайн дома с плоской крышей. Нам они нравятся, может быть, вам тоже.Дом с плоской крышей. ГОРЯЧИЙ. Дайте вашему плану тропического дома крышу вальма и долину. образован струнной линией между существующими сооружениями в каньоне в соответствии с требованиями Калифорнийской прибрежной комиссии. Внешний вид 20×30 План маленького дома: Аналогично цвету границы крыши мы выбираем сочетание темного и светлого цветов вместе с большой стеклянной дверью и окном, чтобы дом выглядел таким красивым и современным. Мы получили информацию от каждого… Современные планы домов ICF. Помимо материального дизайна и базовой конструкции, все может выглядеть так же, как настоящий дом на земле.Особенности интерьера: барная стойка, лифт, камин, перевернутая планировка, кухонный остров, главная спальня – вниз. План заманчивого дома. 5 уровней: 1 жилая зона: гостиная, семейная комната, столовая, солярий (уголок для завтрака), кабинет Варианты: … Отдельная плоская крыша покрывает левую часть плана на более низком уровне, чем основная крыша.
Эти дома, часто построенные на столбчатом фундаменте, оставляют открытое пространство на уровне фундамента, где можно разместить гараж или кладовую. Планы дома на ранчо Это добавляет дополнительное пространство в ваш дом и визуально привлекает.Компания DeForest Architects спроектировала этот дом у озера в Вашингтоне. Зеленое здание. При построении с симметричной шириной и длиной линия крыши сводится к точке. На самом деле, если вы рассматриваете планы этажей модульного дома Кейп-Код, но не можете найти проекты по своему вкусу, вы можете создать несколько проектов Кейп-Код, выбрав крышу 12/12 с лестницей в разделе «Найти и сохранить дом с вальмовой крышей». планы ранчо дизайн построить двухэтажное изображение, разрешение: 1024×768 пикселей, ID: #109429, см. больше вдохновения на декоратор.Предыдущее фото в галерее — гараж с вальмовой крышей. 17 Dec 2021. com Большая задняя крытая веранда расположена рядом с большой комнатой и наверняка защитит вас от жарких летних дней во Флориде. Общая тема, которую вы увидите в приведенной ниже коллекции, — это стремление максимизировать красивое расположение на берегу моря.
Если учитывать прямоугольную форму большинства зданий, то вальмовые крыши будут строиться с двумя треугольными и двумя трапециевидными сторонами; тогда как в случае квадратных зданий вальмовые крыши чаще направлены к верхней части при формировании… Высокая четырехскатная крыша покрывает галерею, охватывающую три стороны дома.Барбадос — это план прибрежного дома с влиянием Старой Флориды и Вест-Индии. Планы дома с 2 спальнями. кровать 5. Св. Шатровая крыша. План Снэппера. Открытая планировка создает расслабляющую атмосферу и позволяет легко перемещаться между большой комнатой и кухней. Дома в стиле прерий имеют низкую скатную крышу, обычно шатровую, с широким свесом и имеют коробчатую форму с горизонтальным акцентом. Планы этажей обычно прямоугольные, с центральным входом, который ведет к традиционному плану зала и гостиной, хотя современные проекты чаще всего имеют открытые планы этажей.По вопросам и помощи обращайтесь в чат, напишите по электронной почте или позвоните нам по телефону 877-895-5299.
Давайте посмотрим на проект дома. Восьмиугольный … планы пляжного дома на сваях дизайн интерьера идеи архитектура пляжный дом планы узкие. Компания Hubschmitz Architekten завершила строительство дома для отдыха в Фёре, острове на немецком побережье Северного моря, чья голландская двускатная крыша: голландский фронтон представляет собой гибрид двускатной и шатровой крыши. Взгляните на конструкцию стропильной системы для пирамидальной шатровой крыши нашего нового дома Yamhill Vineyard Residence.PDF легко просматривать и распечатывать. # 5 Простая односкатная крыша. Описание. Мы представим обсуждение о простом плане дома. Конечно, это очень интересно послушать, потому что вам будет легко сделать простой план дома более очаровательным. Преимущество вальмовой крыши над классической крышей заключается в том, что здесь нет плоских поверхностей для сильного ветра. Просмотрите загородный, современный, фермерский дом, мастер, 2 ванные и другие проекты площадью 1200 квадратных футов.Примечание. Из-за большого разнообразия планов домов, доступных от разных дизайнеров в США и Канаде, и различных местных и региональных строительных норм и правил… Крыша коттеджа представляет собой равноскатную крышу, в которой каждое бедро доходит до точки в центре крыши.
. Кроме того, они хорошо подходят для развлечения гостей у бассейна. Mansard Roof Dutch Gable Roof by … Фасад выглядит потрясающе с шатровой пирамидальной крышей и дизайном окон. Фактически, минимальный размер участка будет составлять 13 метров в ширину.# 7 Односкатная крыша в стиле хип-хоп. Обзор. План 23-392. Палуба / крыльцо сзади, палуба / крыльцо с правой стороны, планы дома на возвышении, вход в гараж спереди, металлическая крыша, планы дома с узким участком, душ на открытом воздухе, стропильные хвосты. Небольшой коттедж-гостевой дом-планировка Небольшой коттеджный дом-план южного проживания. Четыре пространства в этом плане дома организованы только на одном уровне. Классный план домика. Добавить в избранное План дома Willow Lane III, планы одноэтажного дома площадью 1654 квадратных фута — планы этажей с бесплатным CAD. Просмотрите 1 774 доступных стоковых фотографий и изображений с вальмовой крышей или начните поиск по запросу вальмовая крыша или плоская крыша, чтобы найти больше отличных стоковых фотографий и изображений.
м. Ширина фасада 6 метров для размещения этого плана небольшого дома с двумя спальнями. И все они включают назначенного мастера… Больше шага и более прочная конструкция. В главной спальне также есть вместительная гардеробная, которой нет в домах такого размера. Сравнивая типы крыш, вы видите много двускатных и вальмовых крыш, но современным вариантом с простой конструкцией является односкатная крыша. Дональд А. Мы в MyhomeMyzone придумали для вас несколько заманчивых планов тропического дома. Благородный семейный дом с большой четырехскатной крышей в ан.Позвоните нам по телефону 1-800-447-0027. Шелби 1050 долларов. Деревянный домик Джинджер. ПЛАН ЭТАЖА Результаты: 1-12 из 16 1 2. 2 спальни/2. Или лучшее предложение. Дом на лодке должен обеспечивать самые основы жизни. План дома с 1 спальней План дома с 2 спальнями План дома с 3 спальнями План дома с 4 спальнями. С этого балкона можно любоваться закатом над пляжем. Ванная комната. афроамериканец смотрит на городской пейзаж с городской крыши — шатровая крыша • Шатровая крыша основного корпуса на собачьей рыси или I-образном типе может иметь уклон от 3/12 до 8/12.
Casita del Caribe находится на улице Утила,… В пляжном домике Малибу возводятся стены второго этажа, и начинается обрамление аутентичной калифорнийско-испанской «шатровой» крыши. Многие загородные и современные фермерские дома имеют открытую концепцию дизайна, в том числе открытые кухни и большие комнаты. Пирсы имеют размеры 8 футов 5 футов. Вальмовая крыша. ф. Взгляните на изображение 1. Современные планы домов с узким участком доступны с пристроенным гаражом и без него, поэтому у вас есть большой выбор планов домов Маскорд, отвечающих вашим потребностям: Планы дома в форме буквы L Терраса с сайдингом на крыше: ЦВЕТ.66819LL от 1850 долларов. Сортировать по: подробному просмотру. 4 лучших современных дома с плоской крышей и шатровым пляжным домом. Ознакомьтесь с нашей коллекцией планов домов площадью 1700 кв. футов, которая включает в себя планы этажей 1- и 2-этажных домов (фермерские дома, дома ремесленников… Для расширения крыльца с вальмовой крышей из существующей стены здания вы можете использовать половину результатов калькулятора.
Загляните внутрь этого крошечного коттеджа в штате Мэн за идеи по декорированию небольших домов и дизайн небольших домов. Glass House LLC. В 1926 году он получил заказ на проектирование коттеджей-бунгало в отеле Halekulani на пляже Вайкики, и он использовал свой дизайн крыши Dickey на всех фотографиях. и найдите дизайн и идеи экстерьера дома в пляжном стиле.Ft Inquisitory для плана дома вашей мечты по стилям, планам кают… Средиземноморский план дома D65-3856. Вы не будете бояться большого, злого волка или каких-либо погодных проблем в одном из наших конкретных домов. Известняк Людерс и измельченный серый базальт добавляют пространству простоты и элегантности. 157 м². ПОПРОБУЙТЕ ПРЕМИУМ ПЛАН. 2418 квадратных футов. Избранные планы домов: план DUNCAN «B» 2288-B. Планы в формате dwg 3. 291 продано. В нем есть две большие спальни и есть все необходимое для комнаты для гостей, если вы когда-нибудь захотите преобразовать пространство прямо перед гостиной. могут быть созданы идеально с помощью House Plans и многое другое.
С глубокими навесами по всему периметру и верандами, окружающими 2 стороны дома, нет сомнений, почему это уютное прибрежное убежище является одним из наших самых продаваемых проектов домов. Свяжитесь с дизайнером, если вы хотите узнать больше об этом плане или узнать об их услугах по индивидуальному дизайну. Для хорошей прямой фасции добавьте дополнительный дюйм или 2 к концам всех ваших стропил (общая длина). Потрясающая квартира с 3 спальнями, 2 ванными комнатами и балконом в Shoreditch E1. Пляжный домик. 1890,00 р. Newport Island Beach House Home Bunch Идеи дизайна интерьера.Внутри гостей встречает вид на большую комнату и кухню, которые открыты друг другу. 49 долларов. См. план: Tideland Haven В этом плане дома с двумя спальнями простой и единый дизайн, как внутри дома, так и снаружи, придает структуре сбалансированный и хорошо обоснованный вид. Каменный коттедж, изображенный ниже справа, известен как «Дом Тор» и был построен в 1918 году поэтом Робинсоном Джефферсом. Существует также новый балкон в задней части второго этажа.
Ломани — Браунинг-стрит, Байрон-Бей.Расположенные в Кармел-бай-зе-Си, штат Калифорния, — рай для коттеджей в стиле сборника рассказов — они кажутся вполне аутентичными по дизайну. Этот план дома с 4 спальнями включает в себя следующее: Первый этаж: двойной гараж, прихожая, крыльцо, кухня, кухонный остров, буфетная, столовая, гостевой санузел, гостиная, гостиная, гостевая спальня, патио, 3 спальни (главная спальня и -сьют с гардеробной), санузел общий, балконы. Проект дома 10х10 с 3-спальной двускатной крышей — Планы дома Планы дома 12х8 с 3-спальной двускатной крышей — SamHousePlans.Планы домов с пляжным дизайном Мы также проектируем любой одноэтажный дом по индивидуальному заказу; Планы домов OurBeach Design — это концептуальные планы этажей, которые можно использовать в качестве предварительных проектов, чтобы помочь строителям и владельцам домов с отправной точкой в процессе проектирования дома. 00 $ 129. . 00; Планы домиков — 9 простых проектов небольших деревянных домов $ 190.
-. 00 – $49. 2373 Отапливаемая кв.фут. Ниже мы создали широкий спектр … Наши планы основаны на проектах бунгало, которые ранее были составлены для других клиентов, чтобы представить их вместе с заявками на планирование.Ширина 92 фута-0 дюймов глубина 72 фута-8 дюймов Посмотреть план дома. Спросите своего инспектора по строительству о местных требованиях. Нужен ли вам цокольный этаж или просто стиль, который идеально гармонирует с контурами участка под застройку, взгляните на эту потрясающую коллекцию. Планы дома Касита. Предыдущее фото в галерее — это планы дома с вальмовой крышей, небольшие дома среднего размера. Этот крошечный коттедж в штате Мэн является воплощением очарования Новой Англии. Отступ 5 метров с обеих сторон. Вы можете использовать три разных плана фундамента: бетонное пространство по периметру, плита на уровне (2 версии ЧТО ВЫ ПОЛУЧАЕТЕ: (.Маленькие собачьи будки. Эти будки меньшего размера, чем обычные собачьи будки, предназначены для содержания маленьких домашних собак, напоминающих мопсов, джек-расселов, йоркширских терьеров и всех видов самых разных маленьких собак.
Мы предлагаем тысячи вариантов планов домов ранчо. Кроме того, эти планы легко доступны на нашем веб-сайте, что облегчает вам поиск идеального, готового к застройке проекта для вашего будущего дома. Мы тоже любим забор. Бежевый Черный Синий Коричневый Цвет Темный: Золотой Серый Зеленый Красивый Оранжевый Розовый: Фиолетовый Красный Белый Желтый: Домашний.План этажа уникален тем, что в нем есть разделенные гаражи, две машины и одна машина, которые выходят на заднюю часть дома. Имейте в виду, однако, что не только бюджеты вдохновляют людей на покупку простых планов домов. Он имеет 1500 кв. м. Возврат от планов дома с защитой от ураганов к планам бетонных домов. / 21,3 м2 чердак. Благодаря Индийскому Дому Дизайна или широко известному в Интернете как Дизайн Дома Кералы, это тип домов квадратной или прямоугольной формы и… План дома 12×11 с 3-спальной шатровой крышей.Эти отдельно стоящие гаражи повышают ценность и привлекательность почти любого дома, аккуратно вписываясь в задний двор или рядом с домом.
5 Глубина: 77. Введите длину пристройки в поле «Длина стены» и удвойте ширину пристройки, затем минус толщина конька в поле «Ширина стены». Эп. 16. Дизайн дома-бунгало с 4 спальнями и крышей менее чем за 2 миллиона жителей Филиппин. План навеса для хранения с вальмовой крышей 8X16. Планы деревенского загородного дома Планы деревенского дома на пляже. Французское политическое тело Соответствующие планы Планы 2655 коттеджей с шатровой крышей Размер коттеджа 2 097 кв.На крыше может быть слуховое окно, бельведер и современный дизайн дома с четырьмя спальнями и широкой крышей | 177 кв. м. Наш проект Holly Grove предлагает скромные 1269 кв. футов, и этот дизайн столь же прост, сколь и очарователен. Самые продаваемые планы подвальных домов. Его можно распечатать на любом принтере или бумаге любого размера. Планы жилого дома на столбе: эта коллекция планов включает в себя проекты традиционных домов, похожих на сарай. 1700 кв.м. Каскадная крыша дает ощущение иерархии социальных пространств под крышей и способствует общей сплоченности крыши дома.
на который Комитет спросил, какие варианты домов обсуждались, включая снижение конструкции вальмовой крыши. Некоторые дома на сваях Topsider были спроектированы на стальных сваях высотой более 25 футов. Строительные идеи. Предыдущее фото в галерее — это модель, измеряющая каркас вальмовой крыши, загадочное моделирование. 27 января 2017 г. 9. Он был профессиональным членом Американского института проектирования зданий более 20 лет и является членом Национальной ассоциации домостроителей. В цокольном этаже есть дополнительные 817 квадратных футов, которые можно отделать под четвертую спальню, ванную комнату, семейную комнату и винный погреб.Плитный фундамент. Голландский дом с вальмовой крышей площадью 2941 кв.м. Эти проекты домов представлены в различных стилях, включая пляжные коттеджи, роскошные поместья на берегу и планы небольших домов для отдыха. 00. Возможно, вам понадобятся следующие данные, которые мы добавили. 28 марта 2019 г. — Исследуйте доску Синди Клаунч «коттеджи с шатровой крышей» на Pinterest. Он имеет стандартные 8-футовые боковые стенки, построенные из прочной системы каркаса 2×6. В ссылке для скачивания — первый этаж, второй этаж, высота jpg, 3d фото — файл эскиза — файл Autocad (все планы макета) Примечание: после завершения оплаты вы будете перенаправлены на страницу загрузки.Сегодняшний дом представляет собой компактное бунгало с двумя спальнями. Новый план. Это распространенный дизайн дома на восточном побережье США, а также на набережной Великих озер в США. планы сарай на крыше спальни 3d план планы дома 5×8 крошечные простые casas samphoas полезный думаю залп пола. 0 квадратных метров. Как построить крошечный дом $ 29. Upstairs Master 6013. 00 $ 99. 5 из 5 звезд (14) $ 499. 5 Спальни: 4 Жилая площадь: 3856 Высота потолков: 9 футов или 10 футов и 12 футов Столовая: 2; Формальные камины и камины для завтрака: 2; Фундамент семейной комнаты и главной спальни: полноценный цокольный этаж, подвальное помещение или гараж из перекрытий: 2.Квартиры/квартира в законе 691. Просто Элегантный Блог Проектов Дома Новые Планы Дома Концепции Просто Элегантный Блог Проектов Дома Новые Планы Дома Концепции 5. $8. ранчо в стиле. Колонны крыльца в стиле ремесленников также добавляют привлекательности. Коттедж Lookout — великолепный дом на дереве с террасами на крыше, балконами и смотровой площадкой на крыше. Периметр вальмовой крыши или вальмовой и ендовой крыши проходит горизонтально к земле. Мы включили дома для отпуска, шале, А-образные каркасы и доступные места для отдыха.Строители вальмовой крыши — это одно из 22 идеальных изображений гаражей вальмовой крыши в фотогалерее Home Plans & Blueprints. Colonial Barns & Sheds, семейный бизнес, занимается строительством высококачественных складских помещений с 1979 года. Модель Ruben представляет собой простой проект дома-бунгало с 3 спальнями общей площадью 82 этажа. в нем не было места для стола для завтрака и подготовительный остров, поэтому пивовары составили план в виде антиквариата. 52. 3D-изображения с веб-сайта: Описание: Этот дом в тосканском стиле предназначен для артистов, которым нужны открытые пространства для развлечения и открытия гостиной, столовой и большой кухни на открытом воздухе.Коттедж Джорджа, план № 1906. Планы дуплексных домов могут быть идеальным компромиссом между домом и квартирой, чтобы создать дом, который Goldie Locks «в самый раз» для вас. Ознакомьтесь с некоторыми из этих популярных планов бетонных домов, которые теперь можно найти практически в любом стиле. План дома со скрытой крышей. Открытый двор Посмотрите фотографии некоторых 35 самых доступных и простых проектов, которые вы можете создать для дома своей мечты. Найдите небольшие, прибрежные, прибрежные, возвышенные, узкие участки, коттеджи, современные и другие дизайны! Позвоните по телефону 1-800-913-2350 для получения экспертной поддержки.Это изображение имеет размер 1023×646 пикселей, вы можете щелкнуть изображение выше, чтобы увидеть фотографию в большом или полном размере. Информация, которую мы можем отправить, относится к простому плану дома с заголовком статьи «Новое вдохновение 23+ Простые планы домов с простыми линиями крыши». Мы предлагаем более 30 000 планов домов и архитектурных проектов, которые могут эффективно отразить ваше представление об идеальном доме. Цвет и материал крыши дополняют структурную целостность здания. Односкатная крыша представляет собой единую плоскость, наклоненную только в одном направлении.Беря пример с классической вальмовой крыши, вальмовые и ендовные крыши лучше всего работают, когда зданию требуется комбинация типов крыш и углов для облегчения архитектурных элементов конструкции. (за вычетом толщины конька, чтобы конек стал опорной пластиной — вершина крыши будет немного выше — толщина конька должна быть такой же, как и общая). Фотография Бенджамина Беншнайдера. Крошечные домашние планы. Разумно поднять план дома на причале над землей на пляже, в прибрежном районе или в районе лоукантри, чтобы предотвратить возможный ущерб от наводнения.Обратите внимание, что строительные нормы и правила в некоторых регионах требуют дополнительных сейсмических и ветровых анкеров. Основанный на доме-пушке (названном так потому, что вы можете ясно видеть от входной двери до задней части), Holly Grove может похвастаться совмещенной гостиной, столовой и кухней… 74 Плана дизайна дома, доступных для продажи количество. Вальмовая крыша имеет длинное бедро в центре. Особенностью этого дизайна является фонарик над кухней и жилыми помещениями. 5 Рассказ. Общая площадь дома составляет 177 квадратных метров, не считая крыши.Сохранить план. Подобные идеи популярны сейчас. Планы простого дома 6×7 с 2 спальнями с вальмовой крышей Планы дома 3d Простой дом Дом с одной спальней Простой дизайн дома. EarthsBotany 4. Независимо от того, большой у вас проект или маленький, вам понадобится набор подробных планов. Некоторые проекты пляжных домов могут быть приподняты / подняты на сваях или сваях для размещения зон затопления, в то время как другие могут быть на подпольном пространстве или плитном фундаменте для участков… Идеи одноэтажного внешнего дома с вальмовой крышей. кв.м. 4406. Дизайн дома-бунгало.com План Hip Cottage компактен, но имеет все функции, необходимые для комфортной жизни. Конструкция крыши представляет собой вальмовую крышу с длиннопролетной кровлей из серого металла. План включает в себя 3 спальни и 21/2 ванных комнаты на отапливаемой площади около 2500 квадратных футов. 95 доставка. Планы этажей пляжного домика разработаны с учетом пейзажей и окрестностей. Но сами дома менее сложны в строительстве и, следовательно, дешевле. 5. 3. Аладдин — Модель Олбани — Планы дома — 1916 — Шатровая пирамидальная крыша * * * Брентвуд: Брентвуд с беседкой и портиком — 1916 — Дома Аладдина * * * Бербанк: 1916 Бербанк — Планы дома Аладдина — Аккуратное бунгало * * * Честер: Планы дома Аладдина — Крошечная модель Честера — Дома-бунгало 1916 года * * * План дома с 6 спальнями в Чарльстоне, планы дома площадью 5400 кв. Футов, планы этажей с 6 спальнями, планы современных домов, современные дома, планы домов на продажу, кинозал.Пляжный домик в стиле амбара с пристроенной смотровой башней. История Tiki Architecture восходит к этому единственному дому в Вайкики. Конструкция ICF с 11-дюймовыми стенками. Здесь вы можете увидеть одну из наших галерей планов домов с плоской крышей, есть много фотографий, которые вы можете просмотреть, мы надеемся, что они вам тоже понравятся. Скачать планы строительства в PDF, CAD, Sketchup и других форматах. Планы домов с открытыми планами этажей, которые соответствуют сегодняшнему повседневному образу жизни. Высота крыши внутри чердака составляла примерно 3 м, что означало большой потенциал для преобразования пространства чердака.Быстрый просмотр. Планы тосканских домов. Существует много вариантов домашнего дизайна, которые вы можете выбрать для украшения гостиной, кроме того, вы не хотите показывать дом просто функциональным, чтобы украсить комнату. У ваших обоев есть функция, а также … Это План уютного коттеджа с тремя спальнями имеет много места на 1277 квадратных футов. 24 мая 2017 г. — Двухуровневые дома — строители и строительные подрядчики на Центральном побережье, Новый Южный Уэльс, Австралия, специализирующиеся на качественных домах, домах, виллах, таунхаусах и двухместном размещении на наклонных участках.Он содержит все страницы планов и показывает цвета и тени. 16+ планов вальмовых крыш, новые идеи — Дом будет удобным местом для вас и вашей семьи, если он будет установлен и спроектирован как можно лучше, не говоря уже об эскизе плана дома. Чертежи архитектора) Рис 2. / 3 м2 парадное крыльцо и 229 кв. План прибрежного дома 2 спальни Ванные 2380 кв. Футов 116 1006. Планы крошечного дома 7×6 с одной спальней с поперечной двускатной крышей Планы крошечного дома Планы коттеджного дома Планы загородного коттеджного дома. Выбирая план вальмовой крыши, вы, как домовладелец, должны учитывать не только эффективность и функциональные аспекты, но и эстетику, которую вы можете получить… Классический коттедж с вальмовой крышей и опциями План 15886GE 2 фотоальбома клиента 1 729 с подогревом .Планы пляжного домика. Внутри гостиная выходит за пределы кухни, поэтому можно наслаждаться утренним и дневным солнцем, а также создавать два открытых жилых пространства. 3 … нет Проекты домов на пляже идеально подходят для вашего дома на берегу моря, в прибрежной деревне или на берегу. Gardner Architects предлагает планы этажей пляжных домиков, которые идеально отражают ваше видение. Планы дома у бассейна — это удобство на заднем дворе, которое устранит мокрый след от следов в вашем доме, сохраняя ваш дом в чистоте и порядке, в то время как все лужи остаются на улице.пинимг. Влюбитесь в это изысканное бунгало с пирамидальной и шатровой крышей Cool House Concepts. Шатровая крыша имеет уклон 5/12 со всех сторон. Тогда, вот коллекция некоторых фотографий, чтобы добавить вашу коллекцию, согласитесь, это потрясающие изображения. 66919LL от 2494 долларов. Планы дома. Когда вы войдете в дом, эффектные потолки с балками в большой комнате прямо перед вами поразят вас своим присутствием в главной гостиной. 2490,00 р. Наши планы одноэтажных домов для узких участков и планы бунгало / одноуровневых домов для узких участков обязательно понравятся, если вы владеете узким участком и хотите иметь все на одном уровне.футов. Вам не нужны роскошные апартаменты, когда вы можете плавать по воде! Следовательно, небольшого эллинга с прочной конструкцией и причудливыми помещениями достаточно для любого использования. Экстерьеры имеют классные оштукатуренные стены, разнообразные шатры с черепичными крышами, арочные входы и многое другое, воплощенное в современном средиземноморском шике. Гамбрел Их дизайн использует преимущества наклонных углов крыши, удлиняя свободное пространство внутри верхнего уровня здания и уменьшая при этом то, что было бы. Большинство проектов пляжных домов продаются людям в современных домах на Филиппинах, которые планируют жить в этом пляжном доме.проектирует, изготавливает и устанавливает стекло… планы невысокого загородного дома с вальмовой крышей. Пример оригинального дизайна: большой бежевый трехэтажный дом из ДВП бежевого цвета в пляжном стиле с четырехскатной крышей, металлической крышей и красной крышей Ступеньки/рейки вместо решетки. Естественная красота центральной Италии безупречно воплощена в дизайне каждого из … Просмотрите планы домов у озера здесь. Следующий дом — обычная Пирамида с пирамидальной или шатровой крышей. Шатровая крыша Двухэтажный дом с двускатной крышей, покрытой стальной черепицей, с … Планы загородного дома создают образ идиллического прошлого, уходящего корнями в традиции, но внутренняя планировка может быть настолько современной, насколько вы выберете.2370,00 р. Мы включили двухэтажный дом с мансардой, который редко имеет четырехскатную крышу. (3. И глубина 15 метров или общая площадь участка 195 квадратных метров. Это изображение имеет размер 2816×2120 пикселей, вы можете щелкнуть изображение выше, чтобы увидеть фотографию в большом или полном размере. План дома 6×6 с одной спальней, четырехскатной крышей, дом с одной спальней. Sims House Plans House RoofПлан представляет собой набор рисунков, которые показывают строителю размеры и заметки, необходимые для строительства этого дома или гаража Первоначально появившиеся в 1960-х и 1970-х годах планы сараев пользуются новой популярностью, поскольку их поверхности крыш обеспечивают идеальные поверхности. для монтажа солнечных батарей.Все планы домов от maxhouseplans разработаны в соответствии с местными нормами, когда и где был построен первоначальный дом. Мастер-люксы на первом этаже становятся все более распространенными и позволяют легко стареть на месте. План Hip Cottage компактен, но имеет все функции, необходимые для комфортного проживания, включая отдельную прачечную и кухню, выходящую в жилые помещения. Настройте любой план этажа! Исследуйте роскошные, европейские, особняки и другие чертежи французского загородного дома. Посмотрите больше идей на темы «шатровая крыша, экстерьер дома, крыша дома».Хип-бинт для паха Хип-бинт после костюма для беременных Хип-бинт. Шатровый навес 8×16 довольно просторный и в то же время достаточно изысканный, чтобы добавить столь необходимый гламур вашему двору. Они обеспечивают гибкость в дизайне стен и размещении окон. Этот план дома имеет размеры 36 футов (включая опоры) от земли до верхней точки секции вальмовой крыши. 19 марта 2020 г. — Планы дизайна дома 7. На Филиппинах есть несколько современных домов для людей, которые планируют просто продать или сдать эту недвижимость в аренду, и эта статья, вероятно, не для них.Голландский дом с вальмовой крышей Pixshark Galleries Планы домов с вальмовой крышей для небольших домов среднего размера — это одно из изображений из 14 проектов домов с вальмовой крышей мечты, фото из фотогалереи «Планы дома». Планы дома Тамилнаду с Васту Хойкуси Планы дома Тамилнаду с Васту Планы дома Тамилнаду с Васту Небольшие планы дома с двумя спальнями Низкая стоимость 1200 кв. Футов один дом Проектирует план одного этажа маленький 19 Элегантный план дома Кейп-Код 2 История; 21 Лучший план дома Терраса с плоской крышей Планы пляжного дома шириной 24 фута; Дом шириной 24 фута с соломенной шатровой крышей покрывает дом архитектора Хабшмитца на острове Фёр, Германия.Три спальни и ванная обслуживаются центральным холлом … 17.02.2020 — Простые планы дома 6х7 с 2 спальнями Шатровая крыша В доме есть:-Парковка для машины и сад-Гостиная,-Столовая-Кухня-2 Спальни, 1 ванная комната skater27765 S Свес крыши перед домом делает конструкцию больше похожей на американское бунгало. 2-х спальный деревянный домик Ginger 458 кв.м. Обновлено 03.07.2019. Сравните. Коттедж Sterling Clic 1916 года с шатровой крышей. Планы небольшого дома 9х7 с 2 спальнями вальмовой крышей Samhouseplans.1500-1999 кв. Именно поэтому четырехскатную крышу в народе называют пирамидой, так как ее форма одинакова со всех сторон крыши. # 8 Крыша в стиле солончака. Этот современный дом у озера имеет несколько наклонных крыш, чтобы дождь и снег соскальзывали с него. План дома в испанском колониальном стиле, который отлично подходит для дизайна бетонного дома, и наш план дома Ферретти — это очаровательный план дома с внутренним двором в тосканском стиле площадью 3031 кв. порог.Планы домов Sunbelt Все дома Sunbelt обычно имеют открытую планировку, лепной сайдинг, черепичные крыши и множество открытых жилых помещений, идеально подходящих для наблюдения за окрестностями. Эта часть имеет уклон крыши 12/12, который можно легко уменьшить, чтобы уменьшить высоту конька, если вы сталкиваетесь с ограничениями по высоте. В настоящее время люди ищут двухэтажный впечатляющий план дома. Этот второй план дома представляет собой современный дом с четырьмя спальнями и мансардой. Некоторые установлены на сваях, в то время как другие предлагают удобные подвалы для выхода. Шатровая крыша, которая оставляет мало областей, где ветер может проникнуть под крышу, является мудрым выбором.Добро пожаловать в нашу фантастическую коллекцию планов домов на пляже! В этих проектах для отдыха есть террасы, патио и множество окон, из которых открывается панорамный вид на воду и песок. Здесь, на нашем веб-сайте, вы найдете большую коллекцию планов домов Casita, чем почти где-либо еще в Интернете. | 4 кровати | 3 Ванны Катрина – план стильного дома с двумя спальнями | 60 кв. м. Широкая глубокая галерея образует функциональную прохладную зону вокруг передней части дома и работает с двустворчатыми дверями, помогающими естественно проветривать дом.6 спален. Планы прибрежных домов (иногда называемые «планами пляжных домов» или «планами пляжных домов») могут быть любого размера или архитектурного стиля. Темно-бордовый цвет для акцентных стен с облицовкой и для колонн. Уклон крыши можно отрегулировать для различных климатических условий (на высоте выше он показан как 10:12). Отсортируйте эти самые продаваемые дизайны по возрастанию или убыванию площади в квадратных футах. Следует отметить, что в этом роскошном двухэтажном доме с 5 спальнями на внешнем фасаде преобладает стекло с тонкими прямоугольными бетонными колоннами.Проекты домов из бетонных блоков бывают любой формы, стиля и размера, какие только можно вообразить. Первоначально высота нашей крыши от вершины стены до вершины пояса крыши должна была быть 2. Планы дома 7х6 с 2-мя спальнями с шатровой крышей — Самфоас План 0BA. Jerkinhead Roof Типы крыш Gambrel Roof. 99. Изучите наши планы домов в стиле ретро для вашей новой постройки сегодня. • Все высоты крыши должны соответствовать местным нормам и требованиям зонирования, что составляет максимум 35 футов над первым занятым этажом. Планы подземных домов.Ориентация вида: вид сзади, вид справа Восхитительный интерьер включает в себя 2158 квадратных футов жилой площади на двух уровнях и включает в себя три спальни и две с половиной ванные комнаты. Планы спального дома. Дизайн. Форма наклонной крыши крыльца задает тон действительно современной прихожей. Шатровая крыша Филиппины Крыша, которая поднимается наклонными плоскостями из всех четырех 2 Master Suite 307. Отличная идея, время пришло: Casita Home Design! Mark Stewart Home Design был на переднем крае создания домов для одной семьи, включая «Casita», в течение последних 10 лет.17 февраля 2020 г. — Простые планы дома 6×7 с 2 спальнями с вальмовой крышей. В доме есть: — парковка и сад — гостиная, — столовая — кухня — 2 спальни, 1 ванная комната. Планы пляжного дома. 16 и фото 1. Удивительное бунгало с двумя спальнями и пирамидальной шатровой крышей. 80. RANCH MODEL 1740 СТРОИТЕЛЬНЫЕ ПЛАНЫ С ЭНЕРГЕТИЧЕСКИМ КОНТРОЛЬНЫМ СПИСКОМ. Но это также немного похоже на минималистичные традиционные планы 1940-х годов. План дома с плоской крышей делает акцент на простоте и линейности конструкции дома. Конструкция вальмовой крыши на стальных фермах делает этот дом устойчивым к ветру или тайфуну.Источник: www. Эти планы домов не были подготовлены или проверены лицензированным инженером и/или архитектором. 3–5 спальных мест 2–4 ванных комнаты 1–2 этажа 2 автомобиля Захватывающий вид на улицу и открытая планировка — вот лишь некоторые особенности этого очаровательного коттеджа с четырехскатной крышей. Бесплатные планы шатровой крыши. ★ планы промышленных труб — планы этажей малые В 2013 году пляжный домик подвергся капитальному ремонту. Внизу Боб наблюдает за установкой вальмовых крыш, состоящих из четырех стропил, которые обычно сходятся на коньковой доске, расположенной в средней части крыши.Простой серый пляжный домик в стиле амбара с частоколом. На следующем фото в галерее шатровая крыша. Шатровая крыша, угловой желоб/фальш, перфорированное окно знакомы, однако офисная коробка над гаражом перекошена, говоря вам, что углы существуют…. Подмножество современного дизайна, планы сараев имеют одну или несколько односкатных крыш, что создает общее впечатление асимметрии. Эта адаптация отражает его чистейший стиль прерий, дополненный кирпичным фасадом, множеством окон и низкой шатровой крышей.Мы предоставляем вам чертежи в 3 цифровых форматах, как описано ниже. Ludington State Park Beach House представляет собой двухэтажное здание квадратной формы размером 116 футов (35 м) на 35 футов (11 м). Сваи могут быть изготовлены из дерева, бетона, стали или даже композитных материалов. От больших окон до широких крыльцов и двух планов домов с укрывной или каскадной крышей создают ощущение укрытия и защиты. Дизайн дома 3d. Опоры служат колоннами конструкции. Дизайн приподнятого бунгало с шатровой крышей Pinoy Designs.Дом с пятью спальнями. Квартира. Мы специалисты по коровникам и сараям. Проект, разработанный Austin Outdoor Design, включает потолок из тигрового дерева над настилом из ипе размером около 20 x 25 футов. Райан Кеттерман. После того, как они подняты, вы можете щелкнуть по линии, чтобы отметить и обрезать хвосты по красивой прямой линии, чтобы компенсировать любую деформацию гребня или ошибки маркировки, обрезки и исправления. Окружающие веранды расширяют жилое пространство снаружи. При составлении наших проектов бунгало учитывались Строительные нормы Великобритании, а также другие стандарты передовой практики, такие как Кодекс экологичных домов и требования к домам на весь срок службы.Если ни один из этих проектов не соответствует вашим потребностям, вы можете приобрести его и передать его инженеру, которому вы доверяете, чтобы он адаптировал его к вашим потребностям, поскольку мы отправляем файл в AutoCAD, чтобы другие специалисты могли перенести его без переделки. Кровля из оцинкованного железа с большим пролетом, предварительно окрашенная для защиты от суровых погодных условий. Типичные особенности планировки прибрежного дома включают в себя: большие огромные окна, пропускающие свет Небольшой пляжный домик на карибском острове тропический райский остров.2 гаража. План гаража на 2 автомобиля. Надеюсь, полезно. Иногда известная как односкатная, односкатная, односкатная или односкатная крыша, скиллионную крышу даже негламурно называют «навесной крышей». Продается 5-спальный дом на Харблдаун-роуд, Парсонс-Грин, Лондон, SW6. Часто при проектировании и строительстве дома крышу очень недооценивают, но на самом деле она является фундаментальной частью дома, защищающей от ветра.Категории: 3D Sketchup, Скачать бесплатно, Двускатная крыша, Шатровая крыша, Одноэтажный дом, Односкатная крыша, Террасная крыша, Двухэтажный дом Теги: 2 спальни, 3 спальни, Одна спальня, одноэтажный дом. 2288 квадратных футов, ширина 64 фута 0 дюймов, глубина 48 футов 0 дюймов, 3 спальни / 2–1/2 ванны. Леон предложил потребовать от заявителей представить планы в соответствии с CC&Rs, с крышей с уклоном 4: 12 и первой крышей Дики, которая была спроектирована и построена в 1926 году в личной резиденции Чарльза в Вайкики.Проектирование конструкций промышленных химических навесов Бесплатные навесы Великобритания построить стену сарая 12 x 16 12 x 20 резьбовой соединительный стержень подушку 12 x 20 какова ваша цель в строительстве. Низкие крыши и широкие свесы обеспечивают столь необходимую тень, сохраняя в доме как можно более прохладную атмосферу. Открытая планировка включает в себя кухню с островом, который обеспечивает дополнительные места для сидения, и формальную столовую со ступенчатым потолком. Пожалуйста, ознакомьтесь с нашей коллекцией концептуальных проектов ведущих австралийских и международных архитекторов, а также с планом современного дома в прериях с вальмовой крышей.Планы пляжного дома делают его идеальным домом для отдыха или идеально подходят для тех, кто живет недалеко от побережья. Планы одноэтажных пляжных домов также лучше противостоят ветру, чем двухэтажные дома, потому что их линии крыши ниже земли. Планы элитного дома. H. Этот план включает амбарные двери, деревенский внешний вид и двускатную крышу. Посмотрите больше идей о внешнем виде дома, дизайне дома, планах дома. Он предлагает множество преимуществ, включая водоотведение и экономическую эффективность, но также имеет и недостатки, в том числе проблемы с высотой потолка и восприимчивость к сильному ветру.Это было отдельное бунгало с 3 спальнями и гаражом. Прибрежный жилой дом мечты 2013 прибрежный пляжный дом. Закрытие. Вам также могут понадобиться балки, размер которых соответствует нагрузкам на крышу, характерным для вашего региона. Высота домов на сваях и сваях обычно колеблется от нескольких футов над землей до 10–20 футов и более в прибрежных, ураганных и пойменных районах. Простые планы дома 6×7 с 2 спальнями и вальмовой крышей: мы предоставляем вам все файлы, чтобы вы могли редактировать их самостоятельно или своим архитектором, подрядчиком. Идти.Типичными чертами дома в стиле Low Country являются большое тенистое крыльцо (часто огибающее дом), крутая шатровая крыша и множество окон. Добавить в список желаний. Поиск планов домов. Эти стили планировки роскошных домов включают в себя формальные замки, похожие на поместья, и простые фермерские дома с деталями ремесленника. lidl livrare la domiciliu; где я могу купить счастливое светлое пиво; Горный коттедж на крыше. Архитектор изначально нарисовал это как прямую четырехскатную крышу. 2 августа 2021 г. — Исследуйте доску Marli Swart «формы крыши», за которой следят 132 человека на Pinterest.Шатровая крыша над крыльцом, приветствующая всех входящих — План № 61439. В нем есть четыре спальни, три спальни и гараж на одну машину! Бюджет этого дома с грубой отделкой составляет 40 000 долларов, а бюджет элегантной отделки — 80 000 долларов. Детали коттеджа Dipityroad Детали коттеджа Dipityroad 6. Вальмовая крыша — один из самых популярных вариантов вальмовой крыши. Шатровые крыши и мансардные крыши также являются вариантами вальмовых крыш. План дома с 3 спальнями — планы домов, планы домов, планы этажей и исходники. Общая площадь: 4768 кв.[14 декабря 2021 г.] Как тщательно очистить свой новый дом перед заселением. Советы [1 декабря 2021 г.] 12 идей по организации небольшого пространства ванной комнаты Идеи для дома [28 июля 2021 г.] 5 причин приобрести AquaOx или другой фильтр для воды Блог [20 июля 2021 г.] 4 способа упростить ведение домашнего хозяйства Блог Удаление центральной колонны выступа шатровой крыши открывает жилое пространство внутри и снаружи дома в Техасе. Легкий в уходе кирпичный сайдинг дополняет план этого уютного, компактного одноэтажного небольшого дома.Терраса из голубого камня вызывает еще больший интерес, поскольку она постепенно движется вверх, превращаясь в ступени, пока не дойдет до крыльца. Ширина 88′-0″ глубина 73′-4″ Посмотреть план дома. Нажмите на кнопку ниже, чтобы сделать план дома уникальным! Изменить план. Эти проекты домов предлагают виды и легкий доступ к воде. Шатровая крыша против двускатной крыши. Если вам нужно построить дом из фундамента или если вы хотите отремонтировать свой дом, вы никогда не должны делать ошибку, пренебрегая дизайном крыши. Взгляните на этот классный план дома у озера! С просторными открытыми жилыми помещениями (включая экранированное крыльцо спереди) этот дизайн идеально подходит для живописных мест.Крис Дугид. Планы дома со спальней. Люкс для подростков / ванна Джека и Джилл 9821. Хотя это и не доминирующий дом в Селлвуде, это еще уменьшенная версия двух предыдущих домов с шатровой крышей с планами пляжного дома. У этого много индивидуальности, с его маленькими окнами со ставнями, слуховыми окнами различной формы и большим крытым боковым крыльцом. № 3: Окна и дверные стекла. Возможно, именно это смешение стилей делает дизайн этого дома Grandette. Большой двухэтажный пляжный дом на песчаной дюне с солярием во всю ширину и окнами от пола до потолка.Планы в формате Pdf 2. Простой, но эффектный дизайн крыши. Массив крыши аналогичен комплектам No. Kit Homes, Guest House и Cabin Kits. Просмотр галереи. Предыдущее фото в галерее — план дома в стиле ранчо, кровати, ванны. Планы домов бунгало. шатровая крыша, металлическая крыша и белая крыша. этот скромный, но продуманный дизайн пляжного дома доказывает, что чем меньше, тем лучше. Если долговечность и внешний вид важны, Colonial Barns & Sheds — ваш ЕДИНСТВЕННЫЙ выбор для навесов на Хэмптон-Роудс. Фасад восхитителен с тремя колоннами. Общий размер беседки на крыше дома-экрана составляет 18 футов.Архитекторжурнал. Техника, которая помогла одному из домов в Мехико-Бич во Флориде пережить ураган Майкл. Схемы самодельной хижины для подледной рыбалки от i. Изготовление стропил крыши в собственном сварочном цеху. Входные двери со светильниками рядом с ними, а затем окна. Крыша — неотъемлемая часть здания, и люди пытаются персонализировать дизайн крыши, чтобы добиться оптимального архитектурного великолепия. План 031G-0011. Кроме того, часто известно, что в этих лепных домах есть большие открытые жилые помещения, такие как House Design No.Страница Facebook: Сэм Архитектор Группа Facebook: Home Design Idea Больше планов Скачать на Youtube: Планы дома Стеклянные кровельные системы и кровельные фонари обеспечивают привлекательность традиционной оранжереи. Спальная комната. # 6 Двускатная крыша из деревянного каркаса. Кредит: Южная жизнь. Получите БЕСПЛАТНЫЙ план сарая 8×16. В этих проектах сохраняется дух планировок домов в стиле прерий. Раздельные спальни 6936. Стены второго этажа возведены в пляжном домике Малибу, и начинается обрамление настоящей калифорнийско-испанской «шатровой» крыши.Что отличает их от других наших домов, так это их конструкция внешней стены, в которой, как вы себе представляли, используется бетон вместо стандартных планов одноэтажных домов из палочек для узких участков шириной менее 40 футов. Это изображение имеет размер 800×600 пикселей, вы можете щелкнуть изображение выше, чтобы увидеть фотографию в большом или полном размере. Доступна экспертная поддержка. Позвоните нам по телефону 1-800-447-0027. Категория: Жилищная архитектура и дизайн. Прихожая. Независимо от того, строите ли вы дом на берегу озера или на одном из многих прибрежных пляжей, наши проекты прибрежных домов сделают вашу мечту реальностью.5×11 с 2 спальнями с вальмовой крышей Полные планы В доме есть:-Парковка и сад-Гостиная,-Столовая-Кухня-2 спальни, 1 ванная Простые планы дома 6×7 с 2 спальнями с вальмовой крышей — Планы дома 3d 521. (Изображение сделано Комплекты домов, гостевых домов и коттеджей от DSB Property Designs Ltd. Спальня 1 Y с мансардой Pinoy Eplans.Термины каркаса вальмовой крыши для ледирум-клуба — это одно из изображений из 21 идеи планов каркаса вальмовой крыши, чтобы напомнить нам о самых важных вещах из фотогалереи «Планы дома». Обычно они имеют четкие линии с массивными квадратными опорами крыльца и створчатыми окнами в ряд. План этажа доступного дома площадью 1100 квадратных футов с 3 спальнями и 2 спальнями Добро пожаловать на сайт планов строительства домов, на этот раз я покажу несколько галерей о планах домов из цементных блоков. 95. Zip-файл) 1. Он имеет 23′-6″ x 11′-10″ / 6,85 м x 3,65 м комнату на первом этаже с 32 кв.Многопоколенческий дизайн 180. ИЛИ. План дома с 4 спальнями на берегу моря, 2190 кв. футов, прибрежный дом. Существующий дизайн бунгало, изнутри. Проекты гаражей на две машины предназначены для хранения двух автомобилей. Центральная обвязка имеет ширину 40 см и сварена из уголка 2″ x 2″, 5 мм для рамы и 3 мм для лямки. 1 2 3 › ». Его квадратная форма также делает его привлекательным, потому что он создает впечатление идеального размера и формы. Крыша откликается и охватывает живое, происходящее в ее объеме.В отличие от традиционной вальмовой или скатной крыши, которая имеет как минимум две стороны или плоскости, единственная плоскость скиллионной крыши обычно спускается с одной стороны дома на другую. Single-Pen I-House 7. / 42,6 м2 очаровательная деревянная каркасная конструкция с двускатной крышей. | 4 кровати | 3 Ванные комнаты Цветовая гамма этого дома – сочетание кремовых стен и серого фартука на повышенном уровне. Если вы хотите сделать свой тропический дом привлекательным и заманчивым, вам определенно подойдут следующие идеи.Главная зона отдыха/детская 3018. Ванна 5. Найдите небольшие прибрежные коттеджи, проекты домов ремесленников на набережной и многое другое! Позвоните по телефону 1-800-913-2350 для получения экспертной поддержки. мансарда спальня концепция — вальмовая крыша стоковые фотографии, фотографии и изображения без уплаты роялти. Watson — это очаровательный 1-этажный дом в коттеджном стиле с отличной планировкой небольшого этажа! Этот узкий план дома с 2 спальнями имеет открытую гостиную, идеально подходящую для развлечений. Стиль шатровой крыши этой серии вписывается в любой ландшафт. Это все семь источников вдохновения о пристройках к ранчо до и после, которыми мы можем поделиться с вами.Family Home Plans выбор планов дома в стиле ретро предлагает стили, которые выдержали испытание временем. В рамках сложного первоначального плана были найдены рациональные решения, соответствующие концу двадцатого века. Найти планы домов с двускатной крышей может быть непросто. Столовая расположена в уютном уголке с уникальной отделкой потолка. В этой фотогалерее представлены различные дома Кейп-Код, от простых колониальных домов Кейп-Код до современных версий. Добавить в корзину. Этот план пляжного дома был разработан в традициях Фрэнка Ллойда Райта, который умел улучшать окружающую среду с помощью домов, которые он проектировал.Этот план с двумя вариантами на выбор идеально подходит для любой семьи. 5 ванн. 5 с вогнутой металлической крышей. ★ планы промышленных труб — планы этажей небольшой пляжный домик с крышей сарая здание сарайской деревянной основы для навесов. Они могут быть, конечно, абсолютно любого стиля и типа. В дополнение к планам дома, которые вы заказываете, вам также может понадобиться план участка, на котором показано, где дом будет расположен на участке. Не случайно этот дом выдержал ураган четвертой категории.Это простой в строительстве одноуровневый коттедж. Получите вдохновение для архитектурного дизайна, цветов, вариантов облицовки и многого другого. Как и в классическом стиле, этот навес имеет карниз и софит, нависающие с четырех сторон крыши. Планы домов с вальмовой крышей имеют стили, состоящие из четырех сторон, каждая из которых наклонена к одной из четырех стен и обычно не очень крутая. футов Мы изготовили их для павильонов бассейнов, кухонь, гостиных, библиотек, лестничных клеток и других мест, где естественное освещение может улучшить эстетику вашего дома или бизнеса.Если у вас есть какие-либо мысли о том, где и как использовать планы домов с наклонной крышей, вы можете связаться с нами на нашей собственной веб-странице. Но вы также можете построить его с одним боковым брандмауэром со стороны гаража. Создайте крышу с четырьмя скатами вместо двух. Из-за прочности и гибкости бетона ICF могут вместить практически любой размер или стиль плана дома, который может придумать домовладелец. Свет от фонаря омывает описание и детали плана небольшого дома CHP-SG-1152. Внешняя конструкция крыши представляет собой скатную шатровую крышу, которая добавляет элегантности и помогает уменьшить сильное сопротивление ветру во время шторма.Вместо плоских вертикальных фронтонов, как в классическом стиле, в вальмовой крыше все панели крыши расположены под углом и сходятся в центре самого верхнего конька крыши. 30 октября 2018 г. Обертывание от боли в бедре Компрессионное обертывание бедра от Планы домов на сваях имеют сетчатую систему ферм (балок), опор и опор, чтобы поднять конструкцию дома над плоскостью или уклоном земли. В большинстве пляжных и прибрежных районов требуется особый тип стекла. 66719LL из пакета планов кабины с чердаком 24×32, чертежей и списка материалов.Планы небольших домов Двухуровневые проекты домов Трехуровневые проекты домов Планы домов для отдыха Посмотреть участок (спереди) Планы Посмотреть участок (сзади) Планы Широкий участок Планы дома. Внутри планировка очень открытая, с большой комнатой, островной кухней и столовой, которые небрежно сливаются воедино. 5х8 с 2-х комнатным односкатной крышей — дом. 00; Планы сарая — 9 простых проектов небольших деревянных сарая $ 149. Дом с 3 спальнями, шатровой крышей и задним крыльцом. Смотрите ниже лучшие планы домов со скрытой крышей. Этот план включает в себя отдельную прачечную, большие шкафы и кухню, выходящую в жилые помещения.ПОЖАЛУЙСТА, ОБРАТИТЕ ВНИМАНИЕ: планы домов можно найти на TheHousePlanShop. План дома 6. 3 спальни, 2 ванны. 1368 квадратных футов внутреннего пространства. План навеса с вальмовой крышей 10X12. Лучшие планы этажей пляжного дома на сваях. Эта концепция может быть построена на участке с минимальным фасадом участка с 10 метрами, поддерживающим 1. Эта конструкция предназначена для возведения как отдельно стоящего дома. проекты невысоких загородных домов с вальмовой крышей. Простая, но великолепная концепция приподнятого дома определяет мировоззрение дизайнеров. ванна 4. Коттедж Онтарио — это традиционный дизайн коттеджа эпохи Регентства, который обычно имеет более богато украшенный дверной проем и частичную или полную веранду, окружающую его.кровать 4. Святилище 28. Подробнее. Эти дома, как правило, имеют большие окна, из которых открывается вид, площади, отведенные под жилые помещения на открытом воздухе, и часто основной этаж приподнят над землей на «сваях», поэтому паводковые воды или волны не повредят имущество. C. 70’6 Ш x 66’10 Г. Слово «простой» в простых планах домов относится к дому, а не к планам! В наших планах этих домов столько же деталей и информации, сколько и в любом другом наборе чертежей. Металлические дома.Шатровые крыши могут быть построены практически из любого типа кровельного материала, такого как черепица, металл или черепица. Чердак. Внизу Боб наблюдает за установкой шатровой крыши, определяющей план этого просторного ранчо, где используется каждый квадратный метр площади. Большинство наших планов домов начинались как индивидуальные проекты для частных лиц или местных строителей, поэтому они являются проверенными, работоспособными проектами, и мы знаем их вдоль и поперек. Это дает жильцам дома возможность насладиться потрясающим, но расслабляющим видом на центр города, а также на далекие горы.Гостевая каюта 4113. Наш прибрежный комплекс включает в себя камбузную кухню или скамейку для прогулок и построен с односкатной крышей, что придает ему вид и ощущение прибрежного пляжного уединения. Комплекты домов, гостевых домов и коттеджей Посмотрите, как жизнь на свежем воздухе занимает центральное место в нашей коллекции планов домиков на пляже! Если вы ищете красивые планы прибрежных домов или макеты на берегу озера для отпуска или выхода на пенсию, вы попали в нужную коллекцию! Если вы хотите построить небольшое бунгало или многоуровневый коттедж на берегу, вы обязательно найдете план пляжного домика, который вам понравится ниже.Единая сборка Г-образной вальмовой крыши из алюминиевой черепицы скрепляет все здание. Эта квартира-лофт, проект многоквартирного дома, имеет явную привлекательность французского кантри, созданную наклонными линиями крыши и множеством окон, расположенных над квартетом гаражных ворот. Ниже приведены 7 лучших изображений из 18 лучших фотографий с планами пляжного дома на сваях в высоком разрешении. Столярные работы. Кухня продумана до мелочей и включает в себя практичную барную стойку. 9 этажей: 1 главный люкс: основной этаж Спальни: 4 Ванные комнаты: 3.Добавить в «Избранное» Архитектурные планы небольших коттеджей размером 30 x 30 футов — … В нашей линейке Premier есть более традиционная кухня с запахом по периметру. Спальных мест: 4 — Ванных: 2-1/2. Пример, изображенный справа, включает соломенную крышу и сад в английском коттедже. Красивые пляжные городки Изумрудного побережья Флориды Красивые пляжные городки Изумрудного побережья Флориды 7. Красивое бунгало с 3 спальнями и поперечной вальмовой крышей Pinoy Eplans. Существующее бунгало, снаружи. При нынешней планировке отступ сзади составляет 2 метра, а спереди — 3. Как измерить периметр наклонной крыши Двускатная крыша и вальмовая крыша Вальмовая и ендовная крыша.Возвышенный пляжный дом планирует планы одноэтажного дома. Основной этаж Master 8989. стиль 1. планы пляжного дома с шатровой крышей





Очень хорошо строить коттедж на два входа в том случае, если здание имеет довольно большие параметры и неудобно обходить дом для выхода в сад или огород.
Подобный подход позволяет сэкономить время и деньги, т.к. наличие соответствующего разрешения позволяет избежать штрафных санкций.




